20 razy więcej ogłoszeń od właścicieli

Zbieramy ogłoszenia z największych portali

Pośrednika odróżniamy od właściciela po numerze telefonu

Pokazujemy jak zmieniła się cena

Usuwamy zduplikowane ogłoszenia

2 pok., balkon, piwnica, morze

ul. Morska, Działki Leśne, Gdynia, pomorskie
  • Obiekt PL-1357043723
  • dodany:
  • zaktualizowany:
zdjęcie - 2 pok., balkon, piwnica, morze zdjęcie - 2 pok., balkon, piwnica, morze
  • W pełny rozmiar
  • Wyszukać podobne
zdjęcie - 2 pok., balkon, piwnica, morze zdjęcie - 2 pok., balkon, piwnica, morze

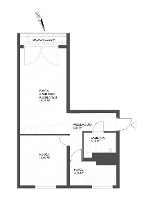
Na sprzedaż jasne i funkcjonalne, 2-pokojowe mieszkanie o powierzchni ok. 51 m², położone na 6. piętrze w 10-piętrowym budynku z windą, zlokalizowane w samym sercu Gdyni przy ulicy Morskiej. To doskonała propozycja dla osób szukających mieszkania w świetnie skomunikowanej części miasta, z pełną infrastrukturą w zasięgu kilku minut spacerem. Mieszkanie składa się z przestronnego salonu z wyjściem na balkon, osobnej i bardzo funkcjonalnej kuchni z oknem, ustawnej sypialni oraz łazienki wyposażonej w kabinę prysznicową. Układ mieszkania jest wygodny i praktyczny, a duże okna zapewniają bardzo dobre doświetlenie wnętrz. Do mieszkania przynależy także piwnica, co zwiększa komfort przechowywania. Budynek jest zadbany z dostępem do pełnej infrastruktury miejskiej. W bezpośrednim sąsiedztwie znajdują się sklepy, restauracje, punkty usługowe, komunikacja miejska, szkoły oraz tereny rekreacyjne. Lokalizacja pozwala cieszyć się wszystkimi udogodnieniami Śródmieścia, plaża miejska i bulwar nadmorski są w zasięgu krótkiego spaceru. Mieszkanie idealne zarówno do zamieszkania, jak i jako świetna inwestycja pod wynajem dzięki lokalizacji zawsze cieszy się dużym zainteresowaniem najemców.

Lokalizacja na mapie, ciekawe miejsca i trasy

Obiekty w pobliżu

ul. adm. Józefa Unruga, Obłuże, Gdynia, pomorskie
dodać do ulubionych Nowoczesne 3 pokoje po remoncie, 2. piętro - gotowe do zamieszkania!
  • 619 000 zł
  • 54 m²
ul. adm. Józefa Unruga, Obłuże, Gdynia, pomorskie
ul. Tadeusza Wendy, Śródmieście, Gdynia, pomorskie
dodać do ulubionych Promocja! Kawalerka w sercu Gdyni
  • 677 655 zł
  • 36 m²
ul. Tadeusza Wendy, Śródmieście, Gdynia, pomorskie
Chwarzno-Wiczlino, Gdynia, pomorskie
dodać do ulubionych ZAraz gotowe 4pokoje 18min od plażyDni otwarte na weekendGaraż!
  • 597 129 zł
  • 61 m²
Chwarzno-Wiczlino, Gdynia, pomorskie
ul. Komandorska, Grabówek, Gdynia, pomorskie
dodać do ulubionych Funkcjonalne mieszkanie - Gdynia ul. Komandorska
  • 565 000 zł
  • 45 m²
ul. Komandorska, Grabówek, Gdynia, pomorskie