20 razy więcej ogłoszeń od właścicieli

Zbieramy ogłoszenia z największych portali

Pośrednika odróżniamy od właściciela po numerze telefonu

Pokazujemy jak zmieniła się cena

Usuwamy zduplikowane ogłoszenia

Szczecin ul. Nad Odrą 119/7

ul. Nad Odrą, Stołczyn, Północ, Szczecin, zachodniopomorskie
  • Obiekt PL-1342881785
  • dodany:
  • zaktualizowany:
zdjęcie - Szczecin ul. Nad Odrą 119/7 zdjęcie - Szczecin ul. Nad Odrą 119/7
  • W pełny rozmiar
  • Wyszukać podobne
zdjęcie - Szczecin ul. Nad Odrą 119/7 zdjęcie - Szczecin ul. Nad Odrą 119/7

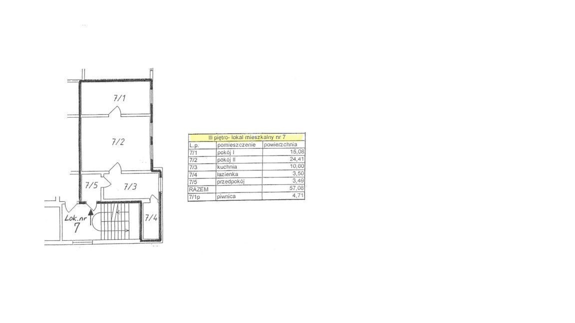
Lokal mieszkalny nr 7 o powierzchni użytkowej 57,08 m2, składa się z 2 pokoi, kuchni, łazienki i przedpokoju, położony na III piętrze budynku mieszkalnego w Szczecinie przy ul. Nad Odra 119. Do lokalu przynależny piwnica. W mieszkaniu okna drewniane, ogrzewanie centralne wodne z instalacją miedzianą oraz kotłem grzewczym na paliwo stałe w kuchni, grzejniki żeliwne.

Lokalizacja na mapie, ciekawe miejsca i trasy

Obiekty w pobliżu

ul. Szczecińska, Warszewo, Północ, Szczecin, zachodniopomorskie
dodać do ulubionych Szczecińska 20 | mieszkanie 2-pok. | 217
  • do negocjacji
  • 60 m²
ul. Szczecińska, Warszewo, Północ, Szczecin, zachodniopomorskie
Żelechowa, Północ, Szczecin, zachodniopomorskie
dodać do ulubionych Kawalerka Z Widokiem Na Odrę
  • 255 000 zł
  • 36 m²
Żelechowa, Północ, Szczecin, zachodniopomorskie
ul. Nad Odrą, Stołczyn, Północ, Szczecin, zachodniopomorskie
dodać do ulubionych Przestronne 2-pokojowe mieszkanie z balkonem
  • 205 000 zł
  • 40 m²
ul. Nad Odrą, Stołczyn, Północ, Szczecin, zachodniopomorskie
ul. Nad Odrą, Stołczyn, Północ, Szczecin, zachodniopomorskie
dodać do ulubionych Na sprzedaż mieszkanie 2 pokojowe w klimatycznej kamienicy!
  • 260 000 zł
  • 56 m²
ul. Nad Odrą, Stołczyn, Północ, Szczecin, zachodniopomorskie