126 obiektów

Dom wolnostojący na widokowej działce 1,09ha
Dom wolnostojący na widokowej działce 1,09ha Handzlówka, Łańcut, łańcucki, podkarpackie
329 000 zł
2 742 zł za m²
3-pok 120 m²

Tylko u nas! Na sprzedaż murowany dom wolnostojący w Handzlówce (gm. Łańcut) o powierzchni użytkowej ok. 120m2, usytuowany na działce o powierzchni 1,09ha. Dom zadbany i dobrze utrzymany na poziomie parteru. pod całym budynkiem przedpokój, hol, łazienka z wc i wanną, jasna kuchnia z jadalnią, duży pokój z piecem kaflowym i sypialnia, wyjście na poddasze i zejście do piwnicy.

Dom wolnostojący z budynkiem gospodarczym
Dom wolnostojący z budynkiem gospodarczym Budy Łańcuckie, Białobrzegi, łańcucki, podkarpackie
380 000 zł
3 689 zł za m²
4-pok 103 m²

Dom wolnostojący o powierzchni 103 m² na działce 8,6 ar położony w miejscowości Budy Łańcuckie, w otoczeniu lasów i stawów. To idealna propozycja dla osób ceniących ciszę, spokój i kontakt z naturą. Pomagamy w uzyskaniu finansowania nieruchomości. Kupując nieruchomość z Biurem Nieruchomości Klucz, otrzymasz: - Kompleksową obsługę transakcji od prezentacji nieruchomości po bezpieczne przekazanie kluczy po akcie notarialnym. - Bezpieczeństwo transakcji - dbamy o każdy szczegół, abyś mógł cieszyć się nową nieruchomością bez stresu. - Doradztwo kredytowe - pomożemy Ci znaleźć najlepszą ofertę kredytową. Standardy pracy: - Opis nieruchomości został przygotowany na podstawie informacji przekazanych przez klienta. Ogłoszenie ma charakter informacyjny i nie stanowi oferty w rozumieniu Kodeksu cywilnego. - Za pośrednictwo pobieramy wynagrodzenie - nie dotyczy ofert z rynku pierwotnego. - Z uwagi na bezpieczeństwo właścicieli oraz standardy pracy naszego biura, przed prezentacją nieruchomości wymagamy podania danych identyfikacyjnych klienta (imię, nazwisko oraz numer dokumentu tożsamości). To powszechna i niezbędna praktyka, która pozwala nam na odpowiedzialne i transparentne przeprowadzanie prezentacji oraz ochronę interesów obu stron. Dziękujemy za zrozumienie i profesjonalne podejście. - Pośrednik działa w ramach umowy pośrednictwa i reprezentuje interesy zarówno sprzedającego, jak i kupującego, dbając o bezpieczeństwo i transparentność całego procesu. Właścicielem ogłoszenia oraz jego elementów jest Biuro Nieruchomości Klucz. Wszelkie prawa zastrzeżone. Kopiowanie, rozpowszechnianie lub wykorzystywanie materiałów bez zgody jest zabronione.

Parterowy dom na dużej działce |nowe ładne osiedle
Parterowy dom na dużej działce |nowe ładne osiedle Wola Dalsza, Białobrzegi, łańcucki, podkarpackie
485 000 zł
3 789 zł za m²
4-pok 128 m²

W sprzedaży parterowy dom wolnostojący w Rakszawie - zaraz przy granicy z miejscowością Dąbrówki - tylko 6 km od centrum Łańcuta i tylko 2 km od węzła autostrady A4 - a także 24 km od Rzeszowa. APS 336 w2+G to dom parterowy o nowoczesnej bryle, przykryty dwuspadowym dachem, z garażem. Zaletą domu jest przemyślany układ funkcjonalny. Część dzienna zawiera przestrzenny salon połączony z jadalnią i kuchnią. Kuchnia z nowoczesnym, narożnym oknem może być otwarta, lub oddzielona od salonu ścianką. W salonie dzięki dużym przeszkleniom przestrzeń łączy się wizualnie z narożnym tarasem. Część sypialna domu składa się z trzech wygodnych pokoi. Z głównego korytarza jest dostęp do dużej łazienki, która pomieści dużą wannę oraz drugiej mniejszej z prysznicem.

Dom wolnostojący, działka 16ar,garaż na 10 samochodów
Dom wolnostojący, działka 16ar,garaż na 10 samochodów Krzemienica, Czarna, łańcucki, podkarpackie
1 620 000 zł
9 257 zł za m²
5-pok 175 m²

NIEPOWTARZALNY DOM POD RZESZOWEM Z GARAŻEM WIELOSTANOWISKOWYM NA OKOŁO 9 SAMOCHODÓW W OTOCZENIU LASU. Przedstawiam Państwu do sprzedaży niepowtarzalną nieruchomość- dom wolnostojący znajdujący się w podrzeszowskiej miejscowości Krzemienica. Odległość od ronda Pobitno w Rzeszowie to 12.2 km ( samochodem 15 minut jazdy), od Łańcuta 4.1 km ( samochodem 6 minut jazdy). Do węzła autostrady A4 odległość 7km.

Urokliwy dom w otoczeniu bieszczadzkiej natury!
Urokliwy dom w otoczeniu bieszczadzkiej natury! Olchowiec, Czarna, bieszczadzki, podkarpackie
750 000 zł
6 356 zł za m²
4-pok 118 m²

Na sprzedaż dom całoroczny w Olchowcu - w sercu Bieszczad! Biuro Res Nieruchomości oferuje na sprzedaż dom położony w miejscowości Olchowiec, gmina Czarna, w powiecie bieszczadzkim - na malowniczym wzniesieniu przy zbiegu rzeki San i potoku Czarnego.

Pogwizdów, Dom Wolnostojący, Atrakcyjna Okolica
Pogwizdów, Dom Wolnostojący, Atrakcyjna Okolica Pogwizdów, Hażlach, cieszyński, śląskie
745 000 zł
3 041 zł za m²
5-pok 245 m²

POGWIZDÓW, DOM WOLNOSTOJĄCY, ATRAKCYJNA, WIDOKOWA OKOLICA Powierzchnia użytkowa 245 m2, 5 pokoi, działka o powierzchni 800 m2, garaż.

Łańcut | Bliźniak | Do remontu
Łańcut | Bliźniak | Do remontu ul. Braci Śniadeckich, Łańcut, łańcucki, podkarpackie
550 000 zł
5 238 zł za m²
105 m²

W sprzedaży dom w zabudowie bliźniaczej. Lokalizacja: ul. Braci Śniadeckich, Łańcut

Dom po termomodernizacji na działce 51 arów z możliwością zabudowy
Dom po termomodernizacji na działce 51 arów z możliwością zabudowy Kosina, Łańcut, łańcucki, podkarpackie
499 000 zł
3 696 zł za m²
4-pok 135 m²

Dom na działce budowlanej z ogromnym potencjałem - aż 51 arów możliwości! Atrakcyjna lokalizacja przy drodze asfaltowej z oświetleniem ulicznym. Spokojna, zielona okolica, a jednocześnie świetna komunikacja. Dogodny dojazd do Łańcuta (6,5 km), do Przeworska (11 km), do Rzeszowa (22 km) jednocześnie szybki dostęp do usług, szkoły, sklepów i apteki. Węzeł autostrady A4 (Łańcut) znajduje się w odległości - szybki dojazd do autostrady nowym łącznikiem prowadzącym z drogi krajowej nr 94 bezpośrednio do autostrady.

Łańcut dom jednorodzinny na 10 arowej działce.
Łańcut dom jednorodzinny na 10 arowej działce. Łańcut, łańcucki, podkarpackie
1 100 000 zł
9 649 zł za m²
4-pok 114 m²

| Dom jednorodzinny na 10 arowej działce w Łańcucie GOTOWY do wprowadzenia i zamieszkania dom w świetnej lokalizacji. Przedstawiamy niepowtarzalną ofertę zakupu domu jednorodzinnego, piętrowego wybudowanego na 10 arowej działce położonego w Łańcucie. Dom z racji swojego położenia jest idealnym miejscem dla rodziny raz miłośników spokoju i bliskości natury jednocześnie w bliskości centrum Łańcuta zapewniając bezproblemowy dostęp do całej infrastruktury miasta. Ten umeblowany dom o powierzchni użytkowej 114 m² znajduje się zaledwie 20 km od Rzeszowa z łatwym dostępem do węzła autostrady co zapewnia szybką komunikację zarówno z Rzeszowem jak i Przeworskiem. W skład domu wchodzą : Parter - Kuchnia - Przestronny salon - Przedpokój - Klatka schodowa - Garaż jednostanowiskowy Piętro - 3 pokoje - Łazienka - Przedpokój Dom jest usytuowany na 10 arowej działce, wjazd z drogi asfaltowej, podjazd utwardzony kamieniem. Działka jest ogrodzona, równa płaska. Do domu zostały doprowadzone wszystkie media. Otoczenie domu to zabudowa jednorodzinna. Jeśli szukałeś domu to ogłoszenie jest właśnie dla Ciebie, nie zwlekaj zadzwoń i umów się na prezentację zanim ktoś inny Cię uprzedzi i skorzysta z tej niepowtarzalnej oferty. Zapraszamy również do zapoznania się z innymi ofertami naszego biura. Jeśli potrzebujesz pomocy lub więcej informacji skontaktuj się z naszymi doradcami, którzy pomogą wybrać ofertę odpowiadającą wszystkim Twoim oczekiwaniom, a także z przyjemnością zaprezentują nieruchomość. Zajmiemy się za Ciebie wszystkimi formalnościami związanymi z transakcją. Jeśli potrzebujesz dodatkowego finansowania, pomożemy uzyskać kredyt. Zadbamy również o bezpieczeństwo Twojej nieruchomości dobierając odpowiednie ubezpieczenie. | Biuro Nieruchomości ASPECT Rzeszów Leszek Ładoś

Dom jednorodzinny parterowy Pogwizdów
Dom jednorodzinny parterowy Pogwizdów Pogwizdów, Czarna, łańcucki, podkarpackie
679 000 zł
4 748 zł za m²
4-pok 143 m²

Dom o pow. 143,62 m2, działka o powierzchni ok 7,83 ara. Dom w Stanie surowym zamkniętym. Ściany wykonane z pustaków ceramicznych Porotherm.

NIE PRZEGAP OKAZJI-idealny dla rodziny
NIE PRZEGAP OKAZJI-idealny dla rodziny Pogwizdów, Hażlach, cieszyński, śląskie
869 000 zł
4 574 zł za m²
5-pok 190 m²

CENA PROMOCYJNA ! nie przegap okazji Nowo wybudowany dom o pw. 190 m2 z możliwością adaptacji poddasza Pogwizdów MOŻLIWA ZAMIANA ZA DOPŁATĄ NA MIESZKANIE W: Żory, Jastrzębie-Zdrój, Cieszyn, Skoczów !

Dom z widokiem na panoramę Łańcuta
Dom z widokiem na panoramę Łańcuta Ignacego Koziei, Łańcut, łańcucki, podkarpackie
1 050 000 zł
7 500 zł za m²
5-pok 140 m²

Zamieszkaj w sercu Łańcuta - nowoczesność, komfort i przestrzeń! Prezentujemy na sprzedaż wyjątkowy dom jednorodzinny, położony w spokojnej i zielonej dzielnicy Łańcuta, przy ul. Kard. Stefana Wyszyńskiego. Projekt „Dom w rododendronach 15 (odbicie lustrzane)” firmy Archon to gwarancja funkcjonalnego rozkładu i eleganckiej architektury. Ten dom to doskonała propozycja dla osób szukających nowoczesnego miejsca do życia z potencjałem do własnej aranżacji, w pięknej i spokojnej okolicy.

Piękny dom z garażem 2 stanowiskowym
Piękny dom z garażem 2 stanowiskowym Łańcut, łańcucki, podkarpackie
1 190 000 zł
6 467 zł za m²
5-pok 184 m²

Na sprzedaż piękny DOM WOLNOSTOJĄCY o powierzchni 184 M², położony na 14 - arowej działce z garażem dwustanowiskowym o powierzchni 50m2 w Łańcucie. Dom, to wyjątkowa nieruchomość zaprojektowana z niezwykłą starannością, gotowy do zamieszkania, położony na dużej działce o powierzchni 14 arów, w zacisznym miejscu Łańcuta, co zapewnia ciszę i kontakt z naturą. Na parterze znajduje się przedpokój prowadzący do pokoju/gabinetu oraz nowoczesnej łazienki wyposażonej w prysznic. Centralnym punktem tej kondygnacji jest salon, który płynnie łączy się z jadalnią i kuchnią, skąd można wyjść bezpośrednio na taras, idealny na poranne kawy lub popołudniowy relaks. Na parterze znajduję się również kotłownia i spiżarnia, zapewniająca wygodną przestrzeń do przechowywania. Na piętrze domu znajdują się trzy niezależne sypialnie, w tym jedna z przynależną garderobą, która zapewnia wygodę i przestrzeń do przechowywania ubrań. Na tej kondygnacji znajduje się również duża, elegancka łazienka z zarówno prysznicem, jak i wanną, a także pralnia, co ułatwia codzienne obowiązki. Orientacyjny układ pomieszczeń znajdą Państwo w galerii zdjęć. Najważniejsze informację: - świetna lokalizacja, - wysoki standard wykończenia, - taras, - piękna, duża działka, - ogrzewanie podłogowe, - moskitiery w każdym oknie, - klimatyzacja, - duży podjazd wyłożony kostką na kilka samochodów, - oddzielny garaż na dwa samochody,wraz z pomieszczeniem gospodarczym, - internet światłowodowy, - budynek energooszczędny, - Brama elektryczna z wideo kamerą. Zadzwoń i zapytaj o szczegóły. Serdecznie zapraszam na prezentację Małgorzata Pietras Tel:

HANDZLÓWKA - Dom z zabudowaniami i działką widokową
HANDZLÓWKA - Dom z zabudowaniami i działką widokową Podkarpackie, Handzlówka
379 000 zł
3 158 zł za m²
120 m²

Jeśli zależy Ci, żeby mieszkać w fajnym miejscu, z ciekawym klimatem, a przy okazji mieć fajną przestrzeń i swobodę, to mam do sprzedania dom murowany z lat 30-tych XX wieku o powierzchni 120m2 wraz z zabudowaniami (47m2). Dom mieści się w Handzlówce - w odległości 20 km od centrum Rzeszowa, 9 km od centrum Łańcuta, 100 m od drogi powiatowej, w drugiej linii zabudowy. Prowadzi do niego wewnętrzna droga gminna. Szkoła w odległości 1000m, kościół, przedszkole 1300m, przystanek autobusowy 150m. Jest on cały podpiwniczony, na parterze mieszczą się dwa duże pokoje, kuchnia, łazienka, korytarz, weranda i spiżarka, a na poddaszu duży pokój i pomieszczenie gospodarcze. Mamy tutaj wszystkie niezbędne instalacje: elektryczną, gazową, wodociągową, kanalizacyjną, co (ogrzewanie piecem na ekogroszek), dodatkowo własną studnię obok domu. Dom umiejscowiony jest na działce o powierzchni 1,0971 ha, z tego 0,1994 ha to powierzchnia pod zabudową, a pozostałe 0,8977 ha to sad i łąka, z super widokiem na panoramę wioski. Cena 379.000 zł zawiera całą powierzchnię działki, ale jeśli chcesz tylko część z zabudową, to możemy ją wydzielić (wówczas cena to 320.000 zł). Wartość nieruchomości oszacował rzeczoznawca majątkowy, do wglądu jego pisemna opinia. Osoby zainteresowane zapraszam do kontaktu i oględzin.

Dom w wyjątkowym miejscu, wiata garażowa z pom. gospodarczym w cenie!
Dom w wyjątkowym miejscu, wiata garażowa z pom. gospodarczym w cenie! Podkarpackie, Husów
449 000 zł
3 805 zł za m²
118 m²

Funkcjonalny dom parterowy z użytkowym poddaszem (130m2) w Husowie z rewelacyjnym widokiem, można podziwiać panoramę Łańcuta, Leżajska częściowo Rzeszowa i Przeworska. Dom w stanie surowym zamkniętym. Działka 11 arów, pośród lasów i pól, płaska, z mediami na działce, bardzo spokojna okolica, bezpośrednio przy mało uczęszczanej drodze asfaltowej będącej częścią "Szlaku Lisa Kulii" Do Łańcuta około 10-12min. do granic Rzeszowa 22min. Blisko przedszkole, szkoła, kościół, sklep. Dom skrojony na 4-6 osobową rodzinę. Piękny w swojej prostocie, ekonomiczny w wykończeniu i utrzymaniu. Dom według projektu Terierr 7, będzie dodane okno narożne tak jak na zdjęciu. Dom postawiony będzie z pustaka ceramicznego Porotherm na ławach fundamentowych, pokrycie dachu blachą modułową Rukki, drzwi antywłamaniowe oraz okna trzyszybowe. Rozpoczęcie budowy wiosna 2026 rok. W cenie wiata garażowa na dwa auta oraz pomieszczenie gospodarcze. Posiadam obok inne działki budowlane z możliwością wyboru innego projektu. Zapraszam do kontaktu. Ogłoszenie ma charakter informacyjny i stanowi zaproszenie do zawarcia umowy (art. 71 Kodeksu cywilnego); nie stanowi natomiast oferty handlowej w rozumieniu art. 66 § 1 Kodeksu cywilnego.

Dom w Żołyni (st.deweloperski) + 56 arów działki
Dom w Żołyni (st.deweloperski) + 56 arów działki ul. Białobrzeska, Żołynia, łańcucki, podkarpackie
549 000 zł
4 037 zł za m²
3-pok 136 m²

NA SPRZEDAŻ PIĘKNIE POŁOŻONY DOM Z DUŻYM GARAŻEM I POMIESZCZENIEM GOSPODARCZYM | ŻOŁYNIA | 136 M2| STAN DEWELOPERSKI Wyłącznie w homfi Rzeszów, na sprzedaż cudownie położony dom w Żołyni z 2014 roku, na płaskiej, długiej i częściowo zalesionej działce.

Bliźniak na sprzedaż w Łańcucie ul. Kraszewskiego
Bliźniak na sprzedaż w Łańcucie ul. Kraszewskiego Łańcut, łańcucki, podkarpackie
950 000 zł
6 169 zł za m²
7-pok 154 m²

Dom bliźniak na sprzedaż - Łańcut, ul. Kraszewskiego Na sprzedaż oferujemy przestronny i komfortowy dom w zabudowie bliźniaczej położony w Łańcucie przy ul. Kraszewskiego 58. Nieruchomość po remoncie, z odświeżoną elewacją i dużymi przeszkleniami, które zapewniają doskonałe doświetlenie wnętrz oraz nowoczesny wygląd budynku. To idealna propozycja dla rodziny poszukującej wygodnego domu w spokojnej, a jednocześnie dobrze skomunikowanej części miasta.

Dom pod lasem, garaż 2-stanowiskowy, 10 ar działki
Dom pod lasem, garaż 2-stanowiskowy, 10 ar działki Czarna, łańcucki, podkarpackie
585 000 zł
3 926 zł za m²
5-pok 149 m²

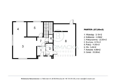
Biuro Reformacka Nieruchomości ma przyjemność zaprezentować nowoczesny dom wolnostojący na na działce o powierzchni 10 arów, w stanie surowym zamkniętym bez elewacji, położony w spokojnej i kameralnej okolicy niedaleko Rzeszowa (Smolarzyny, gmina Żołynia), 10 km od Łańcuta. To idealna propozycja dla osób szukających spokoju, zieleni i prywatności, a jednocześnie ceniących szybki dostęp do miasta i wjazdu na autostradę A4. Bez PCC. Bez prowizji. Bez ukrytych kosztów. -powierzchnia użytkowa: 149,3 m², -powierzchnia działki: 10,04 a, -liczba pokoi: 5, -rok budowy: 2024, -stan surowy zamknięty bez elewacji (możliwość wykonania elewacji), Dodatkowo bliskość terenów zielonych i lasów zagwarantuje mieszkańcom spokój i odpoczynek każdego dnia. - ściany fundamentowe z pustaków zalewowych wypełnionych betonem, - ściany konstrukcyjne gr 25 z pustaka ceramicznego, - pokrycie dachu blachodachówką stalową modułową, - drzwi antywłamaniowe - Martom, - stolarka okienna na profilach Salamander Blue Evolution 82 trzyszybowe, siedmiokomorowe, - okna dachowe - Fakro, - brama garażowa segmentowa z napędem, ciepły profil - Krispol. - wodociągowe, - kanalizacja sanitarna, - kanalizacja deszczowa, - energetyczne (skrzynka w granicy działki), - gazowe - zostanie doprowadzone w IV kwartale 2026 roku. ² - wiatrołap- 3,10m² - korytarz - 4,8m² - pokój - 11 m² - pokój dzienny - 22,80m² - kuchnia - 9,70m² - spiżarnia- 3,18m² - WC - 4,98m² - kotłownia - 1,40m² - garaż dwustanowiskowy - 30,90m². ² - korytarz 6,50m² - strych - 17,80m² - pokój - 9,30m² - pokój - 10,40m² - pokój 12,20m² - łazienka - 6,10m² - pokój - 11,91m² (13,74) Inwestycja zlokalizowana jest w miejscowości Smolarzyny (powiat łańcucki) w niedalekiej odległości zarówno do Rzeszowa jak i Łańcuta. Miejsce zapewnia łatwy dostęp do autostrady A4, drogi ekspresowej S19, strefy ekonomicznej Jasionka. - sklep spożywczy - 900m, - szkoła podstawowa 3,6 km, - przedszkole - 5 km, - Kościół - 400m, - węzeł A4 - 7 km.

Dom w stanie surowym otwartym - Węgliska
Dom w stanie surowym otwartym - Węgliska Węgliska, Rakszawa, łańcucki, podkarpackie
419 000 zł
2 539 zł za m²
4-pok 165 m²

Dom z potencjałem w otoczeniu zieleni - Węgliska, gm. Rakszawa Jeśli szukasz miejsca, gdzie możesz stworzyć swój wymarzony dom w spokojnej, zielonej okolicy, ta oferta jest właśnie dla Ciebie. Węgliska to urokliwa miejscowość położona pomiędzy Rakszawą a Trzebosią, z dogodnym dojazdem do Łańcuta (17 km), Rzeszowa (26 km), Leżajska (27 km) i Sokołowa Młp. (8 km). Dom jednorodzinny wolnostojący o powierzchni zabudowy 117,44 m² i użytkowej 165,67 m², został wybudowany (w odbiciu lustrzanym). Budynek wykonany (beton komórkowy), dach pokryty. Nieruchomość posadowiona jest na działce nr 51/6 o powierzchni 11,41 a, z bezpośrednim. Wzdłuż wschodniej granicy działki, przy pasie drzew iglastych, poprowadzona zostanie droga wewnętrzna z udziałem, prowadząca do działki położonej z tyłu. W domu zaplanowano nowoczesny i funkcjonalny układ pomieszczeń: Bryła domu jest prosta i elegancka, z charakterystyczną lukarną od frontu i miejscem na taras z pergolą w części ogrodowej. Budynek oferuje nowoczesny design i dużą funkcjonalność - idealny dla rodziny z dziećmi lub osób ceniących komfort i przestrzeń. - skrzynka elektryczna na działce - woda z sieci gminnej - szambo zamontowane na działce tej nieruchomości jest wyjątkowe otoczenie - luźna zabudowa jednorodzinna, otwarte przestrzenie i. W promieniu kilku minut znajdują się najważniejsze punkty: - szkoła podstawowa - 1,9 km - kościół - 2,2 km - sklep SPAR - 1,9 km To doskonała propozycja dla osób szukających miejsca z potencjałem - zarówno pod własny dom, jak i inwestycję w przyszłość. Zadzwoń i umów się na prezentację - zobacz, jak wiele możliwości oferuje ten dom.

Dom całoroczny wykończony 54m2 dwie sypialnie
Dom całoroczny wykończony 54m2 dwie sypialnie Podkarpackie, Łańcut
189 000 zł
3 500 zł za m²
54 m²

Firma budowlana NEWHOME PRO oferuje swoje usługi w zakresie budowy domu u klienta na działce w promieniu 40km od miejscowości Łańcut. Ogłoszenie dotyczy wybudowania domu całorocznego 54m2 w konstrukcji szkieletowej. Dostarczamy odpowiednie dokumenty potrzebne na zgłoszenie lub pozwolenie na budowę. Konstrukcja z Szwedzkiego certyfikowanego drewna C24. Grubość ocieplenia z wełny skalnej o niskim współczynniku przenikania ciepła: - Dach 20 cm - Ściany 20 cm - Podłoga 20 cm W skład domu wchodzi: - Salon z kuchnią - 2 Sypialnie - Łazienka - Korytarz Cena dotyczy domu wykończonego, a znajduje się w nim: - Stopy fundamentowe - Drzwi wejściowe - Kompletne okna trzyszybowe - Elewacja z blachy na rąbek - Ściany wewnątrz wykończone - 3 sztuki drzwi wewnętrznych - Na podłodze panele laminowane - Kompletne instalacje elektryczne z gniazdkami, przełącznikami i pełnym oświetleniem - Kompletne instalacje wod-kan - Wentylacje mechaniczną i grawitacyjną. - Łazienkę wykończoną z przygotowanymi instalacjami Podana cena jest kwotą brutto dla osoby prywatnej. 20 lat gwarancji na konstrukcje drewnianą. 2 lata gwarancji na pozostałe elementy. Domy budujemy pod indywidualne wymagania klienta i mogą one być większe lub mniejsze. W razie pytań zapraszam do kontaktu telefonicznego. Tel. 5 7 5 7 0 9 5 8 2

Otwórz mapę Mapa