6 obiektów

Nowoczesny dom w otulinie lasu!
Nowoczesny dom w otulinie lasu! Małszyce, Ciechocin, golubsko-dobrzyński, kujawsko-pomorskie
749 000 zł
2 837 zł za m²
5-pok 264 m²

LOKALIZACJA: Gmina Ciechocin, miejscowość Małszyce Nieruchomość znajduje się w malowniczej wsi Małszyce, w gminie Ciechocin, otoczonej rozległymi kompleksami leśnymi, które dominują nad zabudową i tworzą wyjątkową, naturalną przestrzeń do życia. To miejsce idealne dla osób ceniących spokój, kontakt z przyrodą i prywatność, a jednocześnie niechcących rezygnować z dostępu do podstawowej infrastruktury i wygodnych dróg dojazdowych. Wokół rozciągają się liczne szlaki piesze i rowerowe, które zachęcają do aktywnego wypoczynku na świeżym powietrzu - spacerów, biegania czy relaksu wśród zieleni. W najbliższej okolicy znajdują się wszystkie niezbędne udogodnienia, takie jak (głównie szkolna) umożliwia mieszkańcom dojazd do pobliskich miejscowości. To miejsce, gdzie można naprawdę odetchnąć od zgiełku miasta - ciesząc się śpiewem ptaków, szelestem liści i kontaktem z dziką, zmieniającą się wraz z porami roku przyrodą. W trakcie budowy, wzniesiony na podstawie projektu - to nowoczesna, parterowa bryła z dużą ilością przeszkleń, garażem dwustanowiskowym i przestronnym, zadaszonym tarasem od strony ogrodu. Budynek wolnostojący, wybudowany w technologii tradycyjnej, z dbałością o każdy detal oraz standard energooszczędności. Dom wykonano w technologii murowanej: - ławy fundamentowe: żelbetowe, - ściany konstrukcyjne: gazobeton 24cm, - ściany działowe: gazobeton 12cm - strop: żelbetowy 20cm, - dach płaski, z lekkim spadkiem, ocieplony 36 cm wełny, wykończony trzema warstwami papy zgrzewalnej oraz kompletem obróbek dekarskich. Dom został zaprojektowany z wyraźnym podziałem na część dzienną i nocną, co gwarantuje wygodę i komfort domowników - a duże przeszklenia łączą wnętrze z ogrodem i otaczającą zielenią. - wiatrołap ok. 4,90m², - gabinet ok. 12,01m², - spiżarka ok. 3,58m², - kuchnia ok. 10,87m², - pokój dzienny z jadalnią ok. 44,46m², - łazienka ok. 4,52m², - garderoba ok. 5,80m², - sypialnia ok. 14,13m², - pokój ok. 13,96m², - łazienka ok. 7,80m², - pokój ok. 12,69m², - komunikacja ok. 14,72m², - pomieszczenie gospodarcze ok. 10,29m², - pralnia ok. 8,10m², - garaż dwustanowiskowy ok. 41,16m² z bezpośrednim przejściem do domu. - woda gminna - przyłącze wykonane, - przydomowa oczyszczalnia ścieków, - prąd - przyłącze w trakcie realizacji (planowane zakończenie: do 23.12.2025), - ogrzewanie: (gwarancja 5 lat), - ogrzewanie podłogowe w całym domu (rozstaw 8-10 cm), - grzejniki dodatkowe w łazienkach i garażu, - bojler na ciepłą wodę, - zmiękczacz wody. - dom w technologii tradycyjnej - ściany gazobeton, fundament i strop żelbetowy, - okna trzyszybowe firmy Effector, w tym w salonie duże okno przesuwne, - rolety zewnętrzne podtynkowe, wbudowane w elewację, zapewniające estetykę i ochronę, - drzwi wejściowe antywłamaniowe - otwierane kluczem lub odciskiem palca, - brama garażowa panelowa Wiśniowski, - dach płaski - ocieplenie 36 cm, 3 warstwy papy, ukryte rynny, - w każdym pomieszczeniu z możliwością sterowania przez aplikację, - instalacja pod alarm i monitoring zewnętrzny, - - nieotwierane, sferyczne (łatwe w utrzymaniu, nie przeciekają), - w łazience/garderobie. zlokalizowana w spokojnym, leśnym otoczeniu, z miejscem na taras, ogródek warzywny i strefę relaksu. Z okien i tarasu domu rozciąga się widok na ścianę lasu i zieleń, której nie da się kupić w mieście. Otoczenie zapewnia ciszę, prywatność i świeże powietrze. To idealna przestrzeń do wypoczynku, zabawy z dziećmi czy pracy zdalnej. - dom zgodny z nowoczesnymi normami energetycznymi, - przygotowany komin pod montaż kominka (ceramiczny wkład), - okna i drzwi wysokiej jakości, - świetne warunki do dalszego zagospodarowania ogrodu, - idealna lokalizacja dla rodzin, osób pracujących zdalnie i każdego, kto marzy o własnym miejscu w zgodzie z naturą. Serdecznie polecam i zapraszam na prezentację!

Dom w stanie surowym zamkniętym - Jamno k. Bytowa
Dom w stanie surowym zamkniętym - Jamno k. Bytowa Jamno, Parchowo, bytowski, pomorskie
599 000 zł
4 404 zł za m²
2-pok 136 m²

Oferta, którą oglądasz jest aktualna i sprawdzona pod względem formalno-prawnym. Kupujesz bezpiecznie, w cenach dewelopera. Dom wolnostojący, z poddaszem użytkowym o powierzchni całkowitej wynoszącej 136,38 m2 oraz powierzchni użytkowej wynoszącej 89,6 m2. Na powierzchnię parteru składa się przestronny salon, kuchnia, łazienka i korytarz. Na piętrze znajdują się 2 sypialnie (jedna z miejscem na garderobę) oraz łazienka. Budynek usytuowany jest na działce o powierzchni 1503m2. Nieruchomość obecnie w stanie surowym zamkniętym. Wykonanie budynku z ogromną starannością i dbałością, w oparciu o materiały najwyższej jakości. Dojazd do terenu nieruchomości drogą asfaltową gminną, ostatnie 200metrów drogą polną (nabywaną w udziałach wraz z domem). Skrzynka z prądem bezpośrednio przy nieruchomości. Nieruchomość położona w miejscowości Jamno, w gminie Parchowo, w powiecie bytowskim. Odległość od Bytowa to ok. 10km. To miejsce idealne na utworzenie własnej przestrzeni.

Dom z dużym placem w uroczym miejscu
Dom z dużym placem w uroczym miejscu Popów, kłobucki, śląskie
310 000 zł
1 722 zł za m²
5-pok 180 m²

Sprzedam Dom z dużym placem ( miejscowość Popów - Zawady ) Dom, nie posiada ogrzewania ( ogrzewany był piecami kaflowymi ) elektryka sprawna, dom suchy zadbany. Nowy dach zrobiony w całości od podstaw.

Sprzedam dom k.Łowicza
Sprzedam dom k.Łowicza Łódzkie, Klewków
650 000 zł
4 643 zł za m²
140 m²

Witam Dom ok.140m2 Działka 3200m2 Składa się z salonu, 3 pokoji, kuchni, łazienki, spiżarnia. Dom zbudowany z cegły, kryty ɓlachą.Garaż jednostanowiskowy, Kotłownia Piec na ekogroszek kl.3 Wnętrze domu po generalnym Remoncie w 2024 roku Działka obszerna, liczne nasadzenia krzewy,choinki, kwiaty,owocowe drzewa 10 letnie to wszystko trzeba zobaczyć i samemu poczuć. Studnia do podlewania roślinności. Miejsce dobrze skomunikowane z Łodzią i Warszawa. Blisko sklepy dino, biedronka, gama, kościół i szkoła podstawowa przeczkole Skansen w Maurzycach blisko PKP, MZK. Nieruchomość posiada duży potencjał.Nowy właściciel może skorzystać z programu czyste powietrze.

Dom, 180 m², Otolice
Dom, 180 m², Otolice Otolice, Łowicz, łowicki, łódzkie
640 000 zł
3 556 zł za m²
5-pok 180 m²

NOWA SUPER CENA ! Zapraszam do zapoznania się z wyjątkową ofertą sprzedaży domu. Dom położony jest w malowniczej miejscowości Otolice, otoczonej lasami i rzeką Bobrówką, w sercu obszaru Natura 2000. Urok tej lokalizacji tkwi w jej niezmiennym krajobrazie - tutaj nie powstaną już nowe budynki, co gwarantuje spokój i harmonię z naturą. Dojazd do nieruchomości wiedzie urokliwą drogą przez las, co podkreśla sielski charakter miejsca.

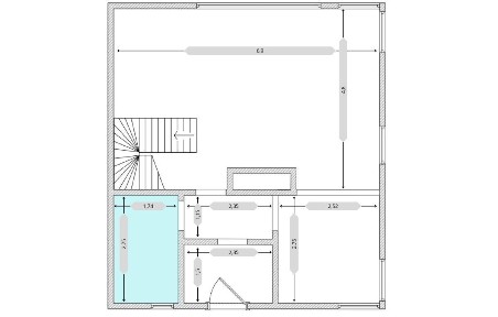
Sielankowe życie na łonie natury! Dom, Małszyce!
Sielankowe życie na łonie natury! Dom, Małszyce! Małszyce, Ciechocin, golubsko-dobrzyński, kujawsko-pomorskie
750 000 zł
5 319 zł za m²
3-pok 141 m²

Dom, Małszyce, gmina Ciechocin, 141,95 m2, 3 pokoje, działka 1253 m2, Wolnostojący, Piętrowy, Poddasze do adaptacji! Oferta dostępna tylko w Krupiński Nieruchomości. Pokazujemy dokładną lokalizację nieruchomości, zatem właściciele proszą o uszanowanie ich prywatności i kontakt bezpośrednio z naszym biurem. Marzysz o domu w cichej i spokojnej okolicy… ta oferta może Cię zainteresować. Mam przyjemności przedstawić ofertę domu zlokalizowanego w Małszycach w gminie Ciechocin, około 14 kilometrów od Torunia! Dom wybudowany według projektu Projekt domu "Murator C318 Idealny" firmy Murator. Dom wybudowany w 2021 roku. Budynek ocieplony styropianem 10 cm. Na działce o powierzchni 1253 m2 posadowiony został wolnostojący, piętrowy (z podaszem) dom wraz z jednostanowiskowym garażem. Dom trzypokojowy o powierzchni użytkowej 83,74 m2 oraz całkowitej 141,95m2. Dom wykonany z betonu komórkowego Suporex. POMIESZCZENIA: PARTER: 141,95 m2 1. Przedsionek - 4.06 m2 2. Kuchnia - 8.80 m2 3. Pokój dzienny - 32.05 m2 4. Korytarz - 2.01 m2 5. Sypialnia 1 - 13.02 m2 6. Sypialnia 2 - 13.02 m2 7. Korytarz - 2.32 m2 8. Łazienka - 5.03 m2 9. Toaleta - 1.62 m2 10. Kotłownia - 8.07 m2 12. Garaż - 18.93 m2 13. Taras - 17.13 m2 14. Taras - 4.45 m2 PODDASZE 1. Przestrzeń do adaptacji - 88.62 m2 LOKALIZACJA: Dom w bardzo ładnej cichej okolicy, w sąsiedztwie nowej zabudowy jednorodzinnej oraz terenów niezbudowanych. W pobliżu: - do najbliższego sklepu 3 km - do jeziora w Józefowie 3 km - do Przedszkola 3 km - do marketu Dino 4,5 km - do Polomarketu 5 km - do Szkoły Podstawowej 4,5 km - do Ciechocina 4,5 km - do Torunia 14 km - do Golubia- Dobrzynia 15 km - do Osady Karbówko 8 km - do Lubicza 8 km 1. Więcej przestrzeni i prywatności: Dom oferuje więcej przestrzeni niż mieszkanie, co zapewnia większą swobodę i prywatność dla wszystkich członków rodziny. 2. Własny ogród i taras: Posiadanie własnego ogrodu i tarasu to idealne miejsce na relaks, zabawę z dziećmi lub grillowanie z przyjaciółmi. 3. Komfort dla zwierząt domowych: W domu możesz swobodnie znaleźć wystarczająco miejsca dla zwierząt domowych, co nie zawsze jest możliwe w mieszkaniu. 4. Komfort: Dom jest bardziej komfortowy ze względu na większą przestrzeń i prywatność. 5. Bliskość sklepów, szkół i komunikacji miejskiej: Dom położony jest w pobliżu sklepów, szkół, co zapewnia łatwy dostęp do wszystkich niezbędnych udogodnień. 7. Indywidualny charakter: Możesz urządzić zewnętrzną część domu zgodnie z indywidualnymi preferencjami, co pozwala na stworzenie wyjątkowej atmosfery. Chcesz kupić dom, a masz na sprzedaż swoje mieszkanie, dom lub inną nieruchomości? Chętnie Ci w tym pomogę! O szczegóły zapytaj mnie podczas rozmowy! Zapraszam do kontaktu oraz zobaczenia domu na żywo Oferta dostępna tylko w Krupiński Nieruchomości! Nie szukaj dalej! Krupiński Nieruchomości Łukasz Krupiński Tel.

Otwórz mapę Mapa