159 obiektów

Nowe Domy | Gotowe DO Odbioru | Tyniec MAŁY
Nowe Domy | Gotowe DO Odbioru | Tyniec MAŁY Tyniec Mały, Kobierzyce, wrocławski, dolnośląskie
940 000 zł
6 714 zł za m²
4-pok 140 m²

KUPUJĄCY NIE PŁACI PROWIZJI | ZAKUP OD DEWELOPERA - BRAK PODATKU PCC Prezentujemy Państwu komfortowe, energooszczędne domy jednorodzinne w zabudowie bliźniaczej, położone w spokojnej okolicy zaledwie 15 km na południowy zachód od Wrocławia. GDZIE: Tyniec Mały, województwo dolnośląskie, gmina Kobierzyce. Bliskość Wrocławia sprawia, że życie w Tyńcu Małym zapewnia łatwy dostęp do wszystkich zasobów i atrakcji tego dużego miasta, w tym ośrodków pracy, edukacji, kultury,a także rozrywki. Wieś Tyniec Mały położona jest w malowniczej okolicy, w pobliżu lasów oraz terenów zielonych, co zapewnia doskonale warunki do aktywności na świeżym powietrzu, takich jak piesze wędrówki czy wycieczki rowerowe. KOMUNIKACJA : Tyniec Mały znajduje się blisko ważnych dróg, takich jak autostrada A4 i droga ekspresowa S8. Dzięki tym połączeniom Tyniec Mały jest dobrze skomunikowany z Wrocławiem, innymi miastami Dolnego Śląska oraz z dalszymi regionami Polski. Zaledwie w ciągu 5 minut dojedziemy do kompleksu handlowego ALEJA BIELANY. Dodatkowym środkiem transportu oprócz transportu indywidualnego jest możliwość skorzystania z linii autobusowej numer 522. STANDARD LOKALU: Budynek mieszkalny składa się z dwóch kondygnacji, parteru z wyjściem na taras oraz pierwszego piętra. Powierzchnia pomieszczeń użytkowych bez skosów wynosi 131,50 m2. Parter budynku mieszkalnego o powierzchni 55,95 m2 składa się z: Pierwsze piętro budynku mieszkalnego o powierzchni 59,77 m2 składa się z : W bryle budynku znajduje się garaż, a przed budynkiem zostały zaprojektowane dodatkowe dwa miejsca parkingowe. Działka na której został posadowiony budynek mieszkalny wynosi 274m2, za domem natomiast znajduje się ogród o powierzchni ok. 120m2. ATUTY INWESTYCJI: Technika budowy gwarantuje bardzo niski współczynnik EP określony Świadectwie Charakterystyki Energetycznej dzięki czemu - zapraszamy po szczegóły. DLA KOGO: Tyniec Mały to idealne miejsce dla osób, które kochają życie w spokojnej atmosferze z dala od zgiełku wielkiego miasta, ale jednocześnie z wystarczającą bliskością, by móc korzystać z miejskich udogodnień i infrastruktury. Układ i funkcjonalność pozwala na komfortowe życie rodzin z dziećmi. Bliska odległość do jednej z lepszych szkół podstawowych w okolicy, gwarantuje wygodne funkcjonowanie. Serdecznie zapraszamy na niezobowiązującą prezentację.

Dom, 115 m², Domasław
Dom, 115 m², Domasław ul. Akacjowa, Domasław, Kobierzyce, wrocławski, dolnośląskie
10 400 000 zł
90 435 zł za m²
5-pok 115 m²

Nowy dom w miejscowości Domasław. Na dole znajduje się duży salon z wyjściem na taras, ogród. Kuchnia w zabudowie meble, sprzęt AGD.

Dom parterowy wolnostojący Księginice, Domasław
Dom parterowy wolnostojący Księginice, Domasław Księginice, Kobierzyce, wrocławski, dolnośląskie
1 475 000 zł
11 992 zł za m²
4-pok 123 m²

Sprzedam piękny, nowoczesny dom wolnostojący, w miejscowości Ksieginice gm. Kobierzyce. Doskonała komunikacja : 4,7 km do obwodnicy, 8,0 km km od Bielan Wrocławskich Piękna, zagospodarowana działka o powierzchni 392 m2 otoczona zielenią oraz nową zabudową jednorodzinną. Osiedle zamknięte, ogrodzone, dwie bramy wjazdowe na pilota. Droga wewnętrzna oraz chodniki z kostki, teren oświetlony. Miejsce parkingowe dla 4 aut ( jedno w garażu i trzy na zewnątrz). Przyłącza : prąd, woda, kanalizacja.

Domy wolnostojące jednorodzinne, 1km od Bielan Wrocławskich
Domy wolnostojące jednorodzinne, 1km od Bielan Wrocławskich Domasław, Kobierzyce, wrocławski, dolnośląskie
950 000 zł
9 896 zł za m²
4-pok 96 m²

Zamieszkaj na wyjątkowym osiedlu domów wolnostojących jednorodzinnych w Domasławiu, realizowanym przez dewelopera POVAS DEVELOPMENT! Inwestycja znajduje się w doskonałej lokalizacji, wyśmienicie skomunikowanej.

BEZ PROWIZJI|Piękny szereg, 4 pokoje, 2 miejsca w garażu
BEZ PROWIZJI|Piękny szereg, 4 pokoje, 2 miejsca w garażu Bielany Wrocławskie, Kobierzyce, wrocławski, dolnośląskie
1 249 000 zł
9 608 zł za m²
4-pok 130 m²

PIĘKNY SZEREG | BIELANY WROCŁAWSKIE | GOTOWY OD ZARAZ | GARAŻ NA DWA SAMOCHODY | 4 POKOJE | OSOBNA KUCHNIA NIERUCHOMOŚĆ: Jeśli szukasz nowoczesnego i stylowego domu w zielonej, spokojnej okolicy, a jednocześnie zależy Ci na szybkim dojeździe do centrum Wrocławia oraz łatwym dostępie do A4 i S8 - ta oferta jest idealna.

Dom, 133 m², Bielany Wrocławskie
Dom, 133 m², Bielany Wrocławskie Bielany Wrocławskie, Kobierzyce, wrocławski, dolnośląskie
850 000 zł
6 391 zł za m²
5-pok 133 m²

Na sprzedaż środkowy dom z ogrodem w zabudowie szeregowej przy Bielanach Wrocławskich. Ten środkowy dom zapewnia mniejsze straty ciepła, co przekłada się na niższe rachunki w sezonie grzewczym. PARTER I PIĘTRO Oferujemy bezpłatną pomoc w uzyskaniu kredytu hipotecznego. Zapraszamy do kontaktu i umówienia się na prezentację.

Dom bliźniak z garażem | Owsianka - nowe osiedle
Dom bliźniak z garażem | Owsianka - nowe osiedle ul. Polna, Owsianka - Bąki, Kobierzyce, wrocławski, dolnośląskie
979 000 zł
9 236 zł za m²
3-pok 106 m²

Oferta bezpośrednio od dewelopera - brak prowizji. Oferta domu jednorodzinnego w zabudowie dwulokalowej powierzchni 106 m², położonego na działce o powierzchni 750m². Nieruchomość zapewnia funkcjonalny układ pomieszczeń oraz wygodne warunki dla rodziny. Dom powstaje na kameralnym osiedlu, w spokojnej miejscowości Owsianka, położonej w odległości ok 6km od Kobierzyc Układ pomieszczeń: Parter: Piętro: Atuty nieruchomości: Nieruchomość przy zakupie nie wymaga uzyskania pozwolenia ministerstwa Cena ofertowa 979 000zł Termin zakończenia budowy Q1 2027 Oferta bezpośrednio od dewelopera bez prowizji Polecam i zapraszam na prezentację Oferta wysłana z programu dla biur nieruchomości ASARI CRM ()

5 sypialni / nowy / wolnostojący/ 7 min do Bielan
5 sypialni / nowy / wolnostojący/ 7 min do Bielan ul. Ogrodowa, Księginice, Kobierzyce, wrocławski, dolnośląskie
2 190 000 zł
7 993 zł za m²
6-pok 274 m²

KOMFORTOWY DOM WOLNOSTOJĄCY Na sprzedaż przestronny, elegancki dom wolnostojący o powierzchni ok. 274 m², położony w południowej okolicy Wrocławia, w jednej z najbardziej pożądanych części Kobierzyc. W otoczeniu kameralnej zabudowy jednorodzinnej, ciszy i zieleni - idealny dla osób szukających komfortu oraz prywatności. Nieruchomość wyróżnia zadbany, duży ogród o powierzchni, który stanowi doskonałe dopełnienie domu i daje wiele możliwości aranżacyjnych. ROZKŁAD POMIESZCZEŃ Reprezentacyjna część dzienna zaprojektowana z myślą o komforcie i przestrzeni: • hall wejściowy • duża kuchnia z oknem, połączona jadalnią, strefą wypoczynkową • taras prowadzący do ogrodu, • sypialnia • łazienka dla gości, • pomieszczenie gospodarcze, • garaż na dwa samochody. Strefa prywatna zapewniająca komfort całej rodzinie: • trzy sypialnie, w tym główna (master bedroom) z garderobą, • przestronny pokój kąpielowy, • gabinet, • oddzielne pomieszczenie pralnia z garderobą, po podłodze poddasze nieużytkowe (ocieplone 20cm wełna) idealny do przechowywania rzeczy sezonowych. Dom wykończony w wysokim standardzie, z. Ogrzewanie podłogowe zapewnia komfort. W kuchni i łazienkach zastosowano wysokiej klasy armaturę. Klimatyzacja Pompa ciepła Rekuperacja Mitsubishi z odzyskiem ciepła Zmiękczacz wody Światłowód Kanalizacja. - klasyczna, ponadczasowa architektura, - wysokość pomieszczeń na parterze 286cm - przestronny, jasny układ pomieszczeń, - duży ogród z tarasem, idealny do wypoczynku, - garaż na dwa auta, - Bielany Wrocławskie - 7 min - stacja PKP Domasław - 3 min, dojazd do Wrocław Główny - 25 min - centrum (ok. 25 minut) Pomagam w uzyskaniu kredytu hipotecznego Umów się na prezentację - przekonaj się, że to Twój wymarzony dom! Magdalena Liberek, numer licencji: 31168 MODENA Biuro Nieruchomości Ogłoszenie nie stanowi oferty handlowej w rozumieniu przepisów art. 66 k.c. Powyższe dane mają charakter informacyjny i mogą być już nieaktualne

Dom, 133 m², Księginice
Dom, 133 m², Księginice ul. Rumiankowa, Księginice, Kobierzyce, wrocławski, dolnośląskie
850 000 zł
6 391 zł za m²
5-pok 133 m²

Na sprzedaż środkowy dom z ogrodem w zabudowie szeregowej w Księginicach (gmina Kobierzyce). Ten środkowy dom zapewnia mniejsze straty ciepła, co przekłada się na niższe rachunki w sezonie grzewczym. PARTER I PIĘTRO Oferujemy bezpłatną pomoc w uzyskaniu kredytu hipotecznego. Zapraszamy do kontaktu i umówienia się na prezentację.

Dom, 115 m², Domasław
Dom, 115 m², Domasław ul. Akacjowa, Domasław, Kobierzyce, wrocławski, dolnośląskie
1 050 000 zł
9 130 zł za m²
5-pok 115 m²

Nowy dom w miejscowości Domasław. Na dole znajduje się duży salon z wyjściem na taras, ogród. Kuchnia w zabudowie nowoczesne meble, sprzęt AGD.

Dom wolnostojący klasy Premium
Dom wolnostojący klasy Premium Tyniec Mały, Kobierzyce, wrocławski, dolnośląskie
2 790 000 zł
13 223 zł za m²
5-pok 211 m²

Witam serdecznie, Rodzinny Dom Premium w Tyńcu Małym - Komfort, Przestrzeń i Wyjątkowy Ogród

Piękny parterowy domek
Piękny parterowy domek ul. Malinowa, Kobierzyce, wrocławski, dolnośląskie
1 499 000 zł
9 609 zł za m²
4-pok 156 m²

Do sprzedaży gorąco polecam dom wolno stojący, parterowy o powierzchni całkowitej 156 m, użytkowej 115, położony na pięknie zagospodarowanej działce o powierzchni 900 m. Dom składa się z pokoju dziennego z kominkiem, połączonego z jadalną i kuchnią, 3 sypialni, łazienki z wc dla gości, dużej łazienki z wc w części sypialnej, holu, 2 garderób, przedpokoju z szafą Komandor, kotłowni i garażu dwustanowiskowego. Możliwość adaptacji poddasza.

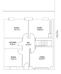
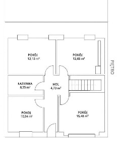
Dom, 147,63 m², Tyniec Mały
Dom, 147,63 m², Tyniec Mały Tyniec Mały, Kobierzyce, wrocławski, dolnośląskie
1 289 000 zł
8 769 zł za m²
5-pok 147 m²

Oferta bezpośrednio od dewelopera 0% prowizji Na sprzedaż bardzo ładny, nowoczesny dom wolnostojący o powierzchni mieszkalnej 128,83 m2 + garaż o powierzchni 19,38 m2, usytuowany na działce o powierzchni 414,5 m2, położony w gminie Kobierzyce, w miejscowości Tyniec Mały.

Bliźniak 20 km od centrum Wrocławia
Bliźniak 20 km od centrum Wrocławia ul. Czysta, Pełczyce, Kobierzyce, wrocławski, dolnośląskie
1 100 000 zł
9 167 zł za m²
4-pok 120 m²

Świeżo wykończony bliźniak w miejscowości Pełczyce (osiedle przy ulicy Radosnej, 500m od Kobierzyc). Bliźniak połączony garażami ze ścianą dylatacyjną, wiec zapewnia izolację od sąsiedniego budynku. Okna 3 szybowe, pompa ciepła + rekuperacja zapewniają ciepło i komfort. Podłączony internet światłowodowy.

Nowoczesny, przestronny, gotowy do aranżacji dom
Nowoczesny, przestronny, gotowy do aranżacji dom Tyniec Mały, Kobierzyce, wrocławski, dolnośląskie
1 349 600 zł
8 997 zł za m²
4-pok 150 m²

NOWY DOM 150,70 m² z dużą działką 485 m² | Bez PCC i bez prowizjiNa sprzedaż nowoczesny i przestronny dom jednorodzinny w Tyńcu Małym. To propozycja dla osób, które szukają komfortowej przestrzeni, wysokiego standardu wykonania oraz spokojnej okolicy z szybkim dojazdem do Wrocławia. Powierzchnia domu i działki Dom zaprojektowany został tak, aby zapewniał wygodę codziennego życia - z jasną strefą dzienną na parterze, funkcjonalną strefą sypialnianą na piętrzeROZKŁAD POMIESZCZEŃPARTER - 80,35 m² Przestronna strefa dzienna z możliwością wyjścia do ogrodu, duże okna zapewniające naturalne światło i wygodny układ pozwalający na różne aranżacje.PIĘTRO - 70,35 m² Idealna strefa prywatna - trzy sypialnie, dwie łazienki i garderoba, co daje wygodę całej rodzinie To idealny dom dla rodziny, osób pracujących zdalnie, którzy szukają połączenia komfortu, nowoczesnych technologii i świetnej lokalizacji pod Wrocławiem.

Gotowe domy|Bez prowizji|Bez Pcc|Garaż|5 sypialni
Gotowe domy|Bez prowizji|Bez Pcc|Garaż|5 sypialni Tyniec Mały, Kobierzyce, wrocławski, dolnośląskie
1 100 000 zł
6 790 zł za m²
6-pok 162 m²

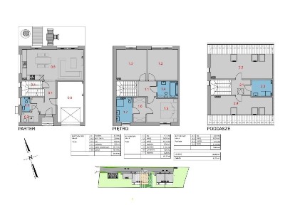
0% PROWIZJI 0% PCCNowoczesny, przestronny dom w zabudowie bliźniaczej, położony w spokojnej części miejscowości - idealny dla osób szukających komfortowej przestrzeni do życia, świetnego układu pomieszczeń i wysokiego standardu wykonania. Inwestycja ta to kameralny kompleks domów stworzony z myślą o rodzinach, które cenią wygodę i funkcjonalnośćNajważniejsze informacje• 162,35 m² • Ogród 91,72 m² • 6pokoi (parter + piętro + pełne poddasze użytkowe • • Układ pomieszczeńParter - 61,10 m²Przemyślana i funkcjonalna strefa dzienna:• Duża, jasna przestrzeń z wyjściem do ogrodu. • • • • • Piętro - 61,25 m²Strefa prywatna dla domowników:• • • • • • • Idealny układ dla rodziny - trzy pełnowymiarowe pokoje + osobna sypialnia + duża łazienka + pralnia.Poddasze - 39,00 m²Duża, w pełni użytkowa przestrzeń z oknami dachowymi:• • • • Możliwości: master bedroom, gabinet, sala hobby, siłownia, studio, pokój nastolatka.Atuty nieruchomości•, idealne dla większej rodziny • - każdy metr zaplanowany praktycznie • + dodatkowe miejsce na podjeździe • i solidny standard wykonania • - duże okna, komfortowe doświetlenie • • - idealny na taras, plac zabaw, strefę relaksuUdogodnienia w inwestycji• Kameralne, niskie osiedle o spójnej architekturze • Nowoczesna infrastruktura drogowa i chodniki • Oświetlenie terenu + estetyczne zagospodarowanie • Wysokiej klasy materiały konstrukcyjne • Media miejskie (woda, kanalizacja, prąd) • Tereny rekreacyjne i zielone w sąsiedztwie • Bezpieczna i spokojna okolica z zabudową jednorodzinnąLokalizacjaInwestycja położona jest w świetnie skomunikowanym miejscu - szybki dojazd do Wrocławia i Bielan Wrocławskich, w pobliżu zaplecze handlowo-usługowe, szkoły, przedszkola i tereny rekreacyjne. Idealna propozycja dla osób, które chcą mieszkać w zielonej i spokojnej okolicy, ale z pełnym dostępem do infrastruktury.Dlaczego wartoTen dom to świetna propozycja dla rodzin, które szukają przestrzeni, wygody i jakości. Duży metraż, pełne poddasze, ogród, garaż i nowoczesny standard sprawiają, że oferta wyróżnia się na tle innych inwestycji.

Dom w Tyńcu Małym bez PCC
Dom w Tyńcu Małym bez PCC Tyniec Mały, Kobierzyce, wrocławski, dolnośląskie
1 349 000 zł
8 993 zł za m²
4-pok 150 m²

Szukasz nowoczesnego domu w spokojnej, rodzinnej okolicy, a jednocześnie z szybkim dojazdem do Wrocławia? Ten dom w Tyńcu Małym spełni oczekiwania osób, które cenią komfort, jakość i funkcjonalny układ pomieszczeń. Układ pomieszczeń: Parter : Piętro: - idealna dla rodzin Tyniec Mały to jedna z najbardziej pożądanych lokalizacji pod Wrocławiem. W zasięgu krótkiego spaceru znajdziesz: Do Wrocławia dojedziesz w kilka minut - również autobusem podmiejskim. Marcin Pigan

Dom Premium! 5 min od szkoły w Kobierzycach!
Dom Premium! 5 min od szkoły w Kobierzycach! ul. Kobierzycka, Chrzanów, Kobierzyce, wrocławski, dolnośląskie
2 490 000 zł
10 921 zł za m²
5-pok 228 m²

Ślężańskie biuro Powierska Nieruchomości prezentuje dom w Chrzanowie. Szukasz nowoczesnego, wygodnego i ekonomicznego w utrzymaniu domu tuż pod Wrocławiem? Ta nieruchomość łączy wysoki standard, świetny układ pomieszczeń i wyjątkową prywatność - rzadkość w nowych inwestycjach. - Energooszczędność i bardzo niskie koszty utrzymania rekuperacja (wentylacja z odzyskiem ciepła), świetna izolacja budynku, nowoczesne instalacje, wysoka szczelność, realnie niskie roczne koszty ogrzewania i eksploatacji. - Lokalizacja - funkcjonalna i wygodna na co dzień 5 minut autem do szkoły w Kobierzycach, sklepów i przychodni, bezpieczna droga piesza dla dzieci, szybki dojazd do Wrocławia, Bielan Wrocławskich, A4 i S8, spokojne sąsiedztwo, bez hałasu i ciasnej zabudowy. - Układ idealny dla rodziny Parter: - duży, jasny salon z wyjściem do ogrodu, - gabinet idealny do pracy zdalnej, - osobna pralnia, - toaleta, - taras z prawdziwego drewna. Piętro - trzy komfortowe sypialnie, - duża garderoba, - dwie łazienki. Dodatkowo -duży strych - świetny na przechowywanie lub hobby. - Ogród, który wyróżnia tę nieruchomość ogromna, zadbana przestrzeń z rzadkimi roślinami, system automatycznego nawadniania, zbiornik na deszczówkę 10 m³ (praktyczny i ekologiczny), domek narzędziowy z drewutnią, piękne ogrodzenie gabionowe wypełnione bazaltowymi kamieniami, idealne miejsce do odpoczynku, zabawy i spotkań. - Podsumowanie Dom dla osób, które chcą żyć wygodnie, w pięknym otoczeniu, z niskimi kosztami utrzymania, bez rezygnowania z bliskości miasta. Wysoki standard, świetny układ, duży ogród i lokalizacja, która realnie ułatwia codzienność. Zadzwoń i umów się na prezentację! Oferty zamieszczone na stronie internetowej przygotowywane są na postawie oględzin nieruchomości oraz informacji uzyskanych od właściciela. Weryfikujemy je i sprawdzamy, jednak wszelkie informacje w nich zawarte mogą ulegać aktualizacji, w związku z czym nie stanowią oferty w rozumieniu Kodeksu Cywilnego, a dane w nich zawarte mają jedynie charakter informacyjny.

Nowoczesny dom wolnostojący | Duża działka | 11 km od Wrocławia
Nowoczesny dom wolnostojący | Duża działka | 11 km od Wrocławia ul. Polna, Domasław, Kobierzyce, wrocławski, dolnośląskie
1 930 000 zł
11 287 zł za m²
5-pok 171 m²

Nowoczesne domy wolnostojące | Domasław | Garaż | Duża działka | 11 km od Wrocławia Na sprzedaż dom wolnostojący w ramach kameralnej inwestycji Osiedle Polne Zaciszne w Domasławiu pod Wrocławiem. To idealne miejsce dla osób szukających, komfortu i spokoju z szybkim dojazdem do miasta.

gotowy, garaż, ogród
gotowy, garaż, ogród Kobierzyce, wrocławski, dolnośląskie
980 000 zł
8 991 zł za m²
4-pok 109 m²

Na sprzedaż bardzo ładny lokal w zabudowie jednordzinnej dwulokalowej, położony na terenie kameralnej inwestycji, w miejscowości Wierzbice, gmina Kobierzyce. Lokal o powierzchni 109,71 mkw usytuowany na działce o powierzchni 642 w udziale 1/2. Do wyłącznego korzystania działka o powierzchni ok. 260 mkw.

Otwórz mapę Mapa