24 obiekty

Wolnostojący dom parterowy | Widoma
Wolnostojący dom parterowy | Widoma Widoma, Iwanowice, krakowski, małopolskie
699 000 zł
7 061 zł za m²
4-pok 99 m²

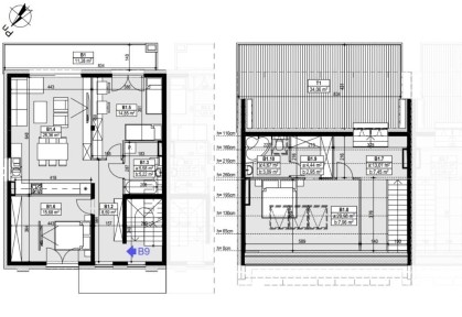
DO SPRZEDAŻY PARTEROWY DOM WOLNOSTOJĄCY W STANIE SUROWYM ZAMKNIĘTYM ZNAJDUJĄCY SIĘ W MIEJSCOWOŚCI WIDOMA OFERTA TYLKO W BIURZE NIERUCHOMOŚCI DANAX DOM Do sprzedaży parterowy dom wolnostojący o powierzchni użytkowej 99,83 m2. Dom wykonany w technologii tradycyjnej z porothermu. Dach pokryty blachodachówką. Okna 3 szybowe w kolorze antracytowym. Do domu doprowadzone są media takie jak: Istnieje możliwość zakupu domu w stanie deweloperskim w cenie 899 000,00 zł. W skład domu wchodzi: Parter: Stryszek nieużytkowy Sprzedawany dom jest posadowiony na działce o powierzchni 587 m2. Na działkach sąsiednich znajdują się nowe domy. Dojazd do działki zapewniony poprzez współwłasność oraz służebność. W bliskiej odległości sklep, szkoła podstawowa. W okolicy bardzo duża ilość terenów zielonych oraz rekreacyjnych.:DODATKOWE INFORMACJE Prąd: jestGaz: jestWoda: jestDojazd: droga utwardzonaOtoczenie: zabudowa jednorodzinnaKanalizacja: oczyszczalnia ekologicznaKomunikacja publ.: busOkna: PCVZagosp. działki: częściowo zagospodarowanaUkształtowanie działki: płaskaKształt działki: prostokątRodzaj domu: wolnostojącyStan wybudowania: Stan surowy zamkniętyPodst. materiał budowlany: porothermPokrycie dachu: blachodachówkaPowierzchnia użytkowa [m2]: 99,8300Podpiwniczenie: nieOgrodzenie działki: ogrodzonaRok budowy: 2025Liczba pokoi: 4::KONTAKT DO AGENTA Tomasz Trocha502 181 średnik odpowiedzialny zawodowo za wykonanie umowy pośrednictwa: Bartłomiej Krosta (licencja nr: 6585)-Od 1993 r. pośredniczymy w transakcjach na krakowskim rynku nieruchomości. Pomożemy Ci jak przyjacielowi.

Dom Bliźniak - Dwupoziomowy | Taras | Balkon
Dom Bliźniak - Dwupoziomowy | Taras | Balkon Zalesie, Iwanowice, krakowski, małopolskie
748 680 zł
7 413 zł za m²
5-pok 101 m²

Mam przyjemność zaprezentować ofertę mieszkania w domu w zabudowie bliźniaczej o powierzchni użytkowej 101,05 m2 położonego w miejscowości Zalesie na północ od Krakowa w gminie Iwanowice. Oferowane mieszkania posiadają balkony o powierzchni 11m2 oraz duże tarasy o powierzchni 34m2, które został specjalnie zaprojektowane tak, aby wytrzymać duże obciążenia. Opcja ta pozwala na zaaranżowanie prywatnego SPA z jacuzzi co zadowoli najbardziej wymagających klientów. Dom ten jest częścią inwestycji Zalesie Apartamenty obejmującej 10 domków, w każdym po 2 apartamenty - do wyboru mieszkania na parterze z ogródkiem, lub na piętrze z dwoma przestronnymi balkonami i tarasem. Miejscowość znajduje się w południowo - wschodniej części gminy Iwanowice, położona jest 15 km od centrum Krakowa. Obecnie powstaje obwodnica, która znacznie skróci czas dojazdu do każdej części miasta. Lokalizacja inwestycji sprzyja miłośnikom spokoju i zieleni, jednocześnie jest też wygodna dla tych, którzy cenią bliskość dużego miasta mieszkając na jego obrzeżach. W odległości 300 m od inwestycji znajduje się Las Zaleski, oraz Las w Goszczy, w środku którego znajduje się polana z przygotowanym miejscem biwakowym, ławeczkami, oraz wiatą dla wypoczywających. W pobliżu inwestycji znajduje się także znana chrześcijanom Droga świętego Jakuba, nazywana często także po hiszpańsku Camino de Santiago. Budynek skierowany do wymagających klientów, zaprojektowany z myślą o maksymalnej funkcjonalności. Apartamenty zostały stworzone z dbałością o najdrobniejsze szczegóły. Aby spełnić wysokie oczekiwania potencjalnych nabywców, strategią inwestora jest zaoferowanie bardzo wysokiego standardu wykończenia stanu deweloperskiego oraz niebywała dbałość o jakość. Każdy element przestrzeni został starannie przemyślany, aby zapewnić komfort dla całej rodziny. Idąc od wejścia głównego, wchodzimy do szerokiego korytarza przechodzącego w otwarty salon z kuchnią oraz jadalnią. Salon posiada duże przeszklenia oraz wyjście balkon. Na pierwszym poziomie znajdując się 2 pokoje oraz łazienka. Na najwyższym piętrze budynku znajduje się główna sypialnia z prywatną garderobą i łazienką oraz korytarz do adaptacji wraz z wyjściem na ogromy taras, który może stać się idealnym miejscem na odpoczynek. • salon z aneksem kuchennym, jadalnią i wyjściem na ogród; • 2 x pokój; • łazienka; • korytarz; • sypialnia główna z garderobą oraz prywatną łazienką; • korytarz z dostępem do przestronnego tarasu; • Budynek zostanie oddany w stanie deweloperskim, istnieje możliwość kupna lokalu, który zostanie w pełni wykończony pod klucz; • Możliwość wykonania instalacji pod inteligentny dom, przygotowania podłączeń pod klimatyzacje, montażu wideodomofonu; • Możliwość zamiany kotła gazowego na pompę ciepła; • W mieszkaniach na piętrze zostanie przygotowana instancja pod montaż fotowoltaiki; • Dwa miejsca postojowe dla każdego mieszkania są nieodłącznym elementem oferty (35 000 zł); Na pozostałych aukcjach możliwość kupna nieruchomości w pozostałych wariantach: • dwupoziomowe nieruchomości na piętrze (100,70 m2) z dwoma balkonami i przestronnym tarasem (o pow. łącznie 46 m2); • możliwość połączenia mieszkań parterowego i na piętrze w jedno (181,08 m2) wraz dwoma balkonami i przestronnym tarasem (o pow. łącznie 46 m2) i ogródkiem (o pow. 96 m2); • możliwość połączenia dwóch mieszkań parterowych w jedno (145,73 m2) wraz z ogródkiem (152,40 m2); Nie pobieramy prowizji Kupujący nie płaci podatku PCC 2% (zakup bezpośrednio od dewelopera). Łukasz Stochliński

115,06 m² | Garaż • Ogród • 4 sypialnie
115,06 m² | Garaż • Ogród • 4 sypialnie Spacerowa, Narama, Iwanowice, krakowski, małopolskie
899 000 zł
7 817 zł za m²
5-pok 115 m²

Nowy dom stworzony do wygodnego życia wśród natury Narama | 115 m² | Garaż • Ogród • 4 sypialnie Jeśli marzysz o miejscu, które łączy kameralny klimat z nowoczesnym stylem, ta propozycja jest dla Ciebie. Komfortowa przestrzeń, przemyślany układ pomieszczeń i spokojna okolica tworzą idealne warunki do rodzinnego życia. W tym domu każdy domownik znajdzie miejsce dla siebie. Na parterze znajduje się, które doskonale doświetlają wnętrze i otwierają je na ogród. Piętro to cztery praktyczne, niezależne sypialnie - doskonałe dla rodziny, gości czy pod gabinet do pracy. dwie w pełni funkcjonalne łazienki, garaż w bryle budynku oraz dodatkowe miejsce postojowe, prywatny ogród idealny na odpoczynek, zabawę dzieci czy letnie grillowanie. Dom wyposażono w rozwiązania zwiększające wygodę i oszczędność: pompę ciepła oraz ogrzewanie podłogowe w każdym pomieszczeniu, przygotowanie pod ekologiczne instalacje, wysoki standard energooszczędności, dostęp do światłowodu, stan deweloperski - wykończysz według własnego stylu. Narama to idealne miejsce dla osób ceniących kontakt z naturą i komfort codziennego życia: około 25 minut do centrum Krakowa, zielone otoczenie, luźna zabudowa i przyjazne sąsiedztwo. To doskonały wybór zarówno dla rodzin z dziećmi, jak i osób pracujących zdalnie lub w trybie mieszanym, które szukają harmonii między ciszą a dostępnością miasta. Dla klientów planujących zakup na kredyt - nasz doradca finansowy pomoże wybrać najkorzystniejszą ofertę.

Dom 54-100 m2, pompa ciepła, działka 9ar Iwanowice
Dom 54-100 m2, pompa ciepła, działka 9ar Iwanowice Ojcowska, Iwanowice Włościańskie, Iwanowice, krakowski, małopolskie
424 000 zł
7 709 zł za m²
3-pok 55 m²

Dom do remontu - 55 m2 + parter do adaptacji 50 m2 d w miejscowości Iwanowice Włościańskie, położony na działce 8,68 ara. Dom: Budynek 2 kondygnacyjny powierzchnia użytkowa około 54 m2., powierzchnia całkowita ok 100m2 - pokój - 15,6 m2 - pokój - 11,1 m2 - duża jasna kuchnia - 12,3 m2 ( może służyć jako salon z aneksem) - przedpokój - 5,3 m2 - łazienka - 2,2 m2 - WC - 1,1 m2 oraz - ganek - 3,5 m2 Pomieszczenia gospodarcze na parterze - 45 m2 : kotłownia, piwnica, duża piwnica ( możliwość adaptacji na siłownię, garaż. ) Budynek z roku 1970 - zewnętrznie ściany, dach, rynny w dobrym stanie. W środku do remontu, jeden pokój do odświeżenia. - budynek otynkowany - okna PCV, - cegła i pustaki - posesja ogrodzona - ogrzewanie - pompa ciepła - media: prąd, woda miejska, szmbo, - dodatkowo własna studnia Blisko Ojcowskiego Parku Narodowego, do centrum Iwanowic 10 minut - sklepy, szkoła, przedszkole. Jeżeli podoba Ci się ten dom - nie czekaj aż inni Cię ubiegną, zadzwoń !

Przestronny dom w zielonej okolicy pod Krakowem
Przestronny dom w zielonej okolicy pod Krakowem Narama, Iwanowice, krakowski, małopolskie
1 118 423 zł
10 652 zł za m²
4-pok 105 m²

Sprzedaż nieruchomości obejmuje zarówno budowę domu z generalnym wykonawcą jak i zakup działki, co gwarantuje sprawny przebieg inwestycji i oszczędność czasu na formalnościach. W całkowitej cenie kwota 250 000 zł stanowi koszt zakupu działki.

Dom 54m2, pompa ciepła, działka 9 ar Iwanowice Wł.
Dom 54m2, pompa ciepła, działka 9 ar Iwanowice Wł. Ojcowska, Iwanowice Włościańskie, Iwanowice, krakowski, małopolskie
444 000 zł
4 674 zł za m²
3-pok 95 m²

Dom do remontu / zamieszkania w miejscowości Iwanowice Włościańskie położony na działce 8,68 ara. Dom: Budynek 2 kondygnacyjny powierzchnia użytkowa około 54 m2. w miejscowości Iwanowice Włościańskie. - pokój - 15,6 m2 - pokój - 11,1 m2 - duża jasna kuchnia - 12,3 m2 ( może służyć jako salon z aneksem) - przedpokój - 5,3 m2 - łazienka - 2,2 m2 - WC - 1,1 m2 oraz - ganek - 3,5 m2 Pomieszczenia gospodarcze na parterze - 45 m2 : kotłownia, piwnica, duża piwnica ( możliwość adaptacji na siłownię, garaż. ) Budynek z roku 1970 - zewnętrznie ściany, dach, rynny w dobrym stanie. W środku do remontu, jeden pokój do odświeżenia. - budynek otynkowany - okna PCV, - cegła i pustaki - posesja ogrodzona - ogrzewanie - pompa ciepła - media: prąd, woda miejska, szmbo, - dodatkowo własna studnia Blisko Ojcowskiego Parku Narodowego, do centrum Iwanowic 10 minut - sklepy, szkoła, przedszkole. Jeżeli podoba Ci się ten dom - nie czekaj aż inni Cię ubiegną, zadzwoń !

Nowoczesny dom na sprzedaż BEZPOŚREDNIO
Nowoczesny dom na sprzedaż BEZPOŚREDNIO Poskwitów, Iwanowice, krakowski, małopolskie
1 890 000 zł
7 105 zł za m²
6-pok 266 m²

Na sprzedaż dom wolnostojący w Poskwitowie, gmina Iwanowice. Niewielka odległość od Krakowa (dobra komunikacja, w pobliżu przystanek autobusowy i droga S7). Dom wybudowany w 2002 roku z pustaka komórkowego, w nowoczesnym stylu. Możliwość adaptacji jednego z dachów na basen.

Idealne dla rodzin przestronne apartamenty
Idealne dla rodzin przestronne apartamenty Zalesie, Iwanowice, krakowski, małopolskie
655 000 zł
9 097 zł za m²
4-pok 72 m²

Komfortowe apartamenty w otoczeniu zieleni, tylko 15 km od Krakowa To kameralna inwestycja składająca się z 10 nowoczesnych domków, w których znajdują się łącznie 20 przestronnych mieszkań. Do wyboru są apartamenty: na parterze o powierzchni ok. 72,5 m, z, na piętrze (dwupoziomowe) o powierzchni użytkowej ok. z dwoma balkonami i tarasem. Osiedle położone jest w malowniczej, zielonej okolicy w sąsiedztwie lasów, a jednocześnie zaledwie 15 km od centrum Krakowa. Każde mieszkanie zaprojektowane zostało z myślą o komforcie i funkcjonalności oferuje przestronne wnętrza, dużo naturalnego światła i możliwość relaksu na świeżym powietrzu. Tarasy wykonane są z wyjątkową starannością, wytrzymują duże obciążenia idealne na prywatną strefę SPA z jacuzzi. Zamieszkaj w miejscu, które łączy naturę z wygodą życia pod miastem.

Dom Obok Krakowa | Działka | Bez Pcc i Prowizji
Dom Obok Krakowa | Działka | Bez Pcc i Prowizji ul. Malwowa, Narama, Iwanowice, krakowski, małopolskie
999 000 zł
8 687 zł za m²
4-pok 115 m²

Nowoczesne domy pod Krakowem - Narama WYJĄTKOWA OKAZJA Przedstawiamy kameralne osiedle nowoczesnych domów jednorodzinnych w malowniczej miejscowości Narama, zaledwie 13 minut od Krakowa. To idealne miejsce dla osób poszukujących połączenia komfortu, nowoczesnych technologii i bliskości natury. Powierzchnia użytkowa: 115,98 m² (parter + piętro) Powierzchnia działki: ok. 6,5 ara Liczba kondygnacji: 2 - wiatrołap - przedpokój - przestronny salon z dużymi, przesuwnymi drzwiami tarasowymi - otwarta kuchnia - łazienka - pomieszczenie techniczne - 3 wygodne sypialnie - łazienka - 2 garderoby - praktyczny strych - Rok budowy: 2026 - Ściany: Thermobet + ocieplenie styropianem 20 cm - Tynk: cementowo-wapienny - Dach: blacha na rąbek, poddasze ocieplone pianą PUR - Okna: PCV - Ogrzewanie podłogowe w całym domu - niezależna regulacja temperatury w każdym pomieszczeniu - Pompa ciepła - Możliwość montażu fotowoltaiki i rolet zewnętrznych - teren ogrodzony - 2 miejsca parkingowe przy budynku - utwardzona droga wewnętrzna Narama - zielona i spokojna okolica w sąsiedztwie domów jednorodzinnych. W pobliżu znajdują się: sklep, kościół, szkoła podstawowa, anglojęzyczne przedszkole, klub fitness, fryzjer, paczkomat, serwis samochodowy i rowerowy, gabinet logopedyczny - tylko 5 minut pieszo 15 minut do Krakowa (Mistrzejowice) 17 km do Rynku Głównego 11 km do granicy Krakowa Pierwsze domy dostępne będą na przełomie II i III kwartału 2026 roku. Zapraszam do kontaktu i umówienia się na prezentację! Michał Śląski Semaco Real Estate tel:

Nowoczesny dom w kameralnej okolicy
Nowoczesny dom w kameralnej okolicy Damice, Iwanowice, krakowski, małopolskie
860 000 zł
8 350 zł za m²
4-pok 103 m²

Do sprzedania posiadam dom wolnostojący w stanie deweloperskim w miejscowości Damice, gmina Iwanowice. Inwestycja obejmuje trzy jednakowe budynki. Dojazd asfaltową drogą gminną a następnie utwardzoną drogą wewnętrzną (udziały w drodze w cenie). Dogodny dojazd do centrum przesiadkowego "Górka Narodowa" oraz do dróg S7 i obwodnicy S52.

Wolnostojący dom parterowy | st. deweloperski
Wolnostojący dom parterowy | st. deweloperski Widoma, Iwanowice, krakowski, małopolskie
899 000 zł
9 081 zł za m²
4-pok 99 m²

DO SPRZEDAŻY PARTEROWY DOM WOLNOSTOJĄCY W STANIE SUROWYM ZAMKNIĘTYM ZNAJDUJĄCY SIĘ W MIEJSCOWOŚCI WIDOMA OFERTA TYLKO W BIURZE NIERUCHOMOŚCI DANAX DOM Do sprzedaży parterowy dom wolnostojący o powierzchni użytkowej 99,83 m2. Dom wykonany jest w technologii tradycyjnej z porothermu. Dach pokryty blachodachówką. Ocieplanie dachu pianą PUR. Okna 3 szybowe w kolorze antracytowym. Dom będzie wyposażony w system pod rekuperacje. Tynki gipsowe. Docelowo dom ma być ogrzewany piecem gazowym z zasobnikiem. Do domu doprowadzone są media takie jak: gaz, woda, prąd. Na działce znajdowała się będzie oczyszczalnia ekologiczna. Internet światłowodowy w bliskiej okolicy. Istnieje możliwość zakupu domu w stanie surowym zamkniętym w cenie 699 000,00 zł. W skład domu wchodzi: Parter: Stryszek nieużytkowy Sprzedawany dom jest posadowiony na działce o powierzchni 587 m2. Na działkach sąsiednich znajdują się nowe domy. Dojazd do działki zapewniony poprzez współwłasność oraz służebność. W bliskiej odległości sklep, szkoła podstawowa. W okolicy bardzo duża ilość terenów zielonych oraz rekreacyjnych.:DODATKOWE INFORMACJE Prąd: jestGaz: jestWoda: jestDojazd: droga utwardzonaOtoczenie: zabudowa jednorodzinnaKanalizacja: oczyszczalnia ekologicznaKomunikacja publ.: busOkna: PCVInstalacje: noweZagosp. działki: częściowo zagospodarowanaUkształtowanie działki: płaskaKształt działki: prostokątRodzaj domu: wolnostojącyStan wybudowania: Stan deweloperskiPodst. materiał budowlany: porothermPokrycie dachu: blachodachówkaPozwolenie na użytkowanie: takPowierzchnia użytkowa [m2]: 99,8300Stan budynku: do wykończeniaPodpiwniczenie: nieOgrodzenie działki: ogrodzonaRok budowy: 2025Liczba pokoi: 4::KONTAKT DO AGENTA Tomasz Trocha502 181 średnik odpowiedzialny zawodowo za wykonanie umowy pośrednictwa: Bartłomiej Krosta (licencja nr: 6585)-Od 1993 r. pośredniczymy w transakcjach na krakowskim rynku nieruchomości. Pomożemy Ci jak przyjacielowi.

Apartamenty Zalesie - 4 pokoje z ogródkiem
Apartamenty Zalesie - 4 pokoje z ogródkiem Zalesie, Iwanowice, krakowski, małopolskie
668 100 zł
9 152 zł za m²
4-pok 73 m²

Apartamenty Zalesie - Twój Nowy Dom blisko Krakowa Zapraszamy do poznania Apartamentów Zalesie, gdzie komfort spotyka się z naturą na obrzeżach Krakowa. Nasza inwestycja oferuje 10 domków, w każdym z nich znajdują się dwa mieszkania: przytulne apartamenty na parterze o powierzchni około 72,56 m², każdy z własnym ogródkiem, oraz przestronniejsze, dwupoziomowe mieszkania na piętrze o powierzchni użytkowej około 100,7 m². Dla tych, którzy potrzebują więcej miejsca, istnieje możliwość połączenia apartamentów w jeden większy. Mieszkańcy na piętrze będą mogli cieszyć się dwoma balkonami i tarasem, na którym bez problemu można umieścić jacuzzi. Miejsce to zostało zaprojektowane z myślą o odpoczynku na świeżym powietrzu i spędzaniu czasu z rodziną czy przyjaciółmi. Bliskość Krakowa i Przyrody Apartamenty Zalesie mieszczą się 15 km od centrum Krakowa. Dzięki nowej obwodnicy dojazd do miasta jest szybki i wygodny, co jest idealnym rozwiązaniem dla osób pracujących w mieście lub ceniących życie kulturalne Krakowa. Jednocześnie, bliskość lasów Zaleskiego i w Goszczy oferuje świetne możliwości dla miłośników spacerów czy wycieczek rowerowych, zapewniając idealną równowagę między życiem w mieście a spokojem natury. Zarezerwuj Mieszkanie Teraz Oferujemy możliwość rezerwacji apartamentu już teraz, co umożliwi skorzystanie z nowych programów rządowych wspierających zakup mieszkania. Szczegóły omówimy podczas rozmowy telefonicznej lub spotkania w naszym biurze. Dlaczego warto wybrać Apartamenty Zalesie? Apartamenty Zalesie to nie tylko miejsce do mieszkania, ale przestrzeń, w której łatwo poczujesz się jak w domu. Nasze mieszkania zostały zaprojektowane z myślą o wygodzie i praktycznym wykorzystaniu przestrzeni. Jako firma z wieloletnim doświadczeniem, dbamy o to, by nasze inwestycje odpowiadały na potrzeby naszych Klientów, oferując im komfortowe warunki życia blisko natury, z łatwym dostępem do miasta. Jeśli szukasz miejsca, gdzie będziesz mógł cieszyć się życiem blisko natury, z łatwym dostępem do udogodnień miejskich, Apartamenty Zalesie są dla Ciebie. Skontaktuj się z nami, aby dowiedzieć się więcej lub umówić na spotkanie. Zapraszamy do Kontaktu Julita Kozioł LV Development LV DEVELOPMENT jest rodzinną firmą deweloperską. Od 1996 roku specjalizujemy się w realizacji projektów deweloperskich na terenie Małopolski oraz Śląska. Nasze portfolio obejmuje ponad 30 000 m2 wybudowanych mieszkań, których szczegóły można znaleźć na naszych mediach społecznościowych oraz na stronie internetowej. Jeśli poszukują Państwo atrakcyjnych ofert inwestycyjnych lub przytulnego lokum dla siebie, chętnie pomożemy znaleźć najbardziej odpowiednią propozycję. Nie ograniczamy się jedynie do działalności deweloperskiej, ale również aktywnie wspieramy rozwój branży budowlanej poprzez współtworzenie Przedsiębiorstwa MAR-TOM Sp. z o.o. Jest to wiodący producent drzwi wejściowych do domów jednorodzinnych i mieszkań na rynku polskim i europejskim. Podane ceny dotyczą mieszkań w stanie deweloperskim, co daje Państwu swobodę i elastyczność w zakresie personalizacji wnętrz. Jeśli jednak marzą Państwo o wnętrzach zaprojektowanych przez profesjonalistów, z przyjemnością zaoferujemy wsparcie naszych zaufanych architektów z firmy Biuromax, autorów inspirujących wizualizacji wnętrz dostępnych w naszej ofercie. Warto jednak pamiętać, że przedstawione wizualizacje służą wyłącznie jako inspiracja i nie są częścią oferty handlowej, zgodnie z art. 66 § 1 kodeksu cywilnego oraz innymi przepisami prawa. Niniejsze ogłoszenie nie stanowi oferty w rozumieniu przepisów Kodeksu Cywilnego. Oferta wysłana z programu dla biur nieruchomości ASARI CRM ()

Apartamenty Zalesie - duży taras i 2 poziomy
Apartamenty Zalesie - duży taras i 2 poziomy Zalesie, Iwanowice, krakowski, małopolskie
748 680 zł
7 487 zł za m²
4-pok 100 m²

Apartamenty Zalesie - Twój Nowy Dom blisko Krakowa Zapraszamy do poznania Apartamentów Zalesie, gdzie komfort spotyka się z naturą na obrzeżach Krakowa. Nasza inwestycja oferuje 10 domków, w każdym z nich znajdują się dwa mieszkania: przytulne apartamenty na parterze o powierzchni około 72,56 m², każdy z własnym ogródkiem, oraz przestronniejsze, dwupoziomowe mieszkania na piętrze o powierzchni użytkowej około 100,7 m². Dla tych, którzy potrzebują więcej miejsca, istnieje możliwość połączenia apartamentów w jeden większy. Mieszkańcy na piętrze będą mogli cieszyć się dwoma balkonami i tarasem, na którym bez problemu można umieścić jacuzzi. Miejsce to zostało zaprojektowane z myślą o odpoczynku na świeżym powietrzu i spędzaniu czasu z rodziną czy przyjaciółmi. Apartamenty Zalesie mieszczą się 15 km od centrum Krakowa. Dzięki nowej obwodnicy dojazd do miasta jest szybki i wygodny, co jest idealnym rozwiązaniem dla osób pracujących w mieście lub ceniących życie kulturalne Krakowa. Jednocześnie, bliskość lasów Zaleskiego i w Goszczy oferuje świetne możliwości dla miłośników spacerów czy wycieczek rowerowych, zapewniając idealną równowagę między życiem w mieście a spokojem natury. Oferujemy możliwość rezerwacji apartamentu już teraz, co umożliwi skorzystanie z nowych programów rządowych wspierających zakup mieszkania. Szczegóły omówimy podczas rozmowy telefonicznej lub spotkania w naszym biurze. Apartamenty Zalesie to nie tylko miejsce do mieszkania, ale przestrzeń, w której łatwo poczujesz się jak w domu. Nasze mieszkania zostały zaprojektowane z myślą o wygodzie i praktycznym wykorzystaniu przestrzeni. Jako firma z wieloletnim doświadczeniem, dbamy o to, by nasze inwestycje odpowiadały na potrzeby naszych Klientów, oferując im komfortowe warunki życia blisko natury, z łatwym dostępem do miasta. Jeśli szukasz miejsca, gdzie będziesz mógł cieszyć się życiem blisko natury, z łatwym dostępem do udogodnień miejskich, Apartamenty Zalesie są dla Ciebie. Skontaktuj się z nami, aby dowiedzieć się więcej lub umówić na spotkanie. Podane ceny dotyczą mieszkań w stanie deweloperskim, co daje Państwu swobodę i elastyczność w zakresie personalizacji wnętrz. Jeśli jednak marzą Państwo o wnętrzach zaprojektowanych przez profesjonalistów, z przyjemnością zaoferujemy wsparcie naszych zaufanych architektów z firmy Biuromax, autorów inspirujących wizualizacji wnętrz dostępnych w naszej ofercie. Warto jednak pamiętać, że przedstawione wizualizacje służą wyłącznie jako inspiracja i nie są częścią oferty handlowej, zgodnie z art. 66 § 1 kodeksu cywilnego oraz innymi przepisami prawa. Niniejsze ogłoszenie nie stanowi oferty w rozumieniu przepisów Kodeksu Cywilnego. Zapraszamy do Kontaktu Julita Kozioł LV Development O NAS: LV DEVELOPMENT jest rodzinną firmą deweloperską. Od 1996 roku specjalizujemy się w realizacji projektów deweloperskich na terenie Małopolski oraz Śląska. Nasze portfolio obejmuje ponad 30 000 m2 wybudowanych mieszkań, których szczegóły można znaleźć na naszych mediach społecznościowych oraz na stronie internetowej. Jeśli poszukują Państwo atrakcyjnych ofert inwestycyjnych lub przytulnego lokum dla siebie, chętnie pomożemy znaleźć najbardziej odpowiednią propozycję. Nie ograniczamy się jedynie do działalności deweloperskiej, ale również aktywnie wspieramy rozwój branży budowlanej poprzez współtworzenie Przedsiębiorstwa MAR-TOM Sp. z o.o. Jest to wiodący producent drzwi wejściowych do domów jednorodzinnych i mieszkań na rynku polskim i europejskim. Oferta wysłana z programu dla biur nieruchomości ASARI CRM ()

Na sprzedaż dom jednorodzinny w Celinach (gm. Iwanowice)
Na sprzedaż dom jednorodzinny w Celinach (gm. Iwanowice) Sieciechowice, Iwanowice, krakowski, małopolskie
659 000 zł
4 955 zł za m²
133 m²

Na sprzedaż dom jednorodzinny w Celinach (gm. Iwanowice) - spokojna okolica, sad z drzewami owocowymi, działka 22,28 a! Bezpośrednio od własciciela. • Działka o delikatnym nachyleniu poludniowym

Gotowy dom w świetnej cenie! To nie tylko 115m2!
Gotowy dom w świetnej cenie! To nie tylko 115m2! Narama, Iwanowice, krakowski, małopolskie
899 000 zł
7 817 zł za m²
5-pok 115 m²

Domy wolnostojące z pięknym prywatnym ogrodem! Idealne aby odetchnąć od zgiełku miasta! Gotowe domy które czekają aż je zobaczysz! Odetchnij od zgiełku miasta, zrelaksuj się we własnym basenie bez większych zobowiązań : ) Zadzwoń i umów się na niezobowiązujące spotkanie - Ciebie nic to nie kosztuje a da Ci możliwość poczuć atmosferę tego domu! Dom składa się z: - Salonu z aneksem kuchennym - Dwóch łazienek - Czterech sypialni - Garażu i dodatkowego miejsca postojowego - - Sklepy, szkoła podstawowa, boisko piłkarskie, salon fryzjerski - wszystko na miejscu - Bezpośrednie połączenie z Krakowem autobusami podmiejskimi - Dojazd do centrum Krakowa w ok. 25 minut - Otacząjące dom tereny zielone pomogą się wyciszyć po całym dniu pracy! Powyższa oferta ma charakter informacyjny i nie stanowi oferty handlowej w rozumieniu art. 66 §1 Kodeksu Cywilnego

Niedrogi dom w pobliżu Krakowa
Niedrogi dom w pobliżu Krakowa ul. Kasztanowa, Narama, Iwanowice, krakowski, małopolskie
890 000 zł
8 725 zł za m²
4-pok 102 m²

Na sprzedaż nieruchomości położona w Kozierowie gm. Michałowice, oddalona od Krakowa tylko o 12 km. Nieruchomość znajduje się w drugiej linii zabudowy. W sąsiedztwie nowoczesna zabudowa jednorodzinna, w pobliżu znajdują się: sklep spożywczy, przedszkole, żłobek oraz przystanek komunikacji podmiejskiej. Działka o pow. 703 m2 o kształcie prostokąta o wymiarach 25 x 28, zabudowana budynkiem mieszkalnym jednorodzinnym. Dom wybudowany z bala sosnowego o grubości około 40 cm, okna drewniane 3 szybowe, dach kryty dachówką. Ogrzewanie oraz CWU z nowego pieca gazowego: na parterze podłogówka natomiast na piętrze grzejniki. Rozkład pomieszczeń: * Parter: - wiatrołap o pow. 3,29 m2 - pom. gospodarcze/kotłownia o pow. 2,64 m2 - łazienka wyposażona w kabinę prysznicową o pow. 4,26 m2 - salon połączony z kuchnia oraz z wyjściem na taras o pow. 52,04 m2 * Piętro: - hall o pow. 4,73 m2 - łazienka z kabiną prysznicową o pow. 5,36 m2 - 3 sypialnie w tym jedna z balkonem o pow. 23, 74 m2; 13,99 m2; 10,07 m2 Termin wydania: od zaraz

gm. Iwanowice/ okazały dom 266m2/ działka 24 ary
gm. Iwanowice/ okazały dom 266m2/ działka 24 ary ul. mjr. Hubala, Poskwitów, Iwanowice, krakowski, małopolskie
1 890 000 zł
7 105 zł za m²
6-pok 266 m²

LOKALIZACJA: Poskwitów / gm. Iwanowice (15 km od północnej granicy Krakowa) Do sprzedania dom o unikatowej, bardzo oryginalnej formie architektonicznej. Wykonany według indywidualnego projektu. Wygląd zewnętrzny oraz wewnętrzny rozkład pomieszczeń odbiegają od tradycyjnych rozwiązań. Ozdobą domu jest bardzo obszerny salon (z otwartym sklepieniem), wyposażony w kominek obłożony naturalnym kamieniem. Dom wyposażono w ekonomiczne rozwiązania technologiczne (kominek z płaszczem wodnym, instalacja solarna). Przestronna 24-arowa działka bardzo dobrze komponuje się z budynkiem. Od strony wjazdu wyłożono kostkę brukową, część ta stanowi wygodny dojazd do 2-stanowiskowego garażu. Na pozostałej części dominuje zieleń, z kawałkiem sadu. Budynek może stanowić również bardzo ciekawe rozwiązanie, jako siedziba niewielkiej firmy. Działka daje możliwość dalszej rozbudowy. Aktualne rozwiązania mogą łatwo posłużyć do wydzielenia np. strefy biurowej i strefy magazynowej. Około 1,2 km od tej nieruchomości znajduje się węzeł drogowy trasy S-7 „Widoma” (gwarancja szybkiego dojazdu do Krakowa). Nieruchomość ta świetnie może nadawać się na różnego rodzaju funkcję użytkową. Nadaje się na prowadzenie działalności gospodarczej, siedzibę firmy itp. Spora działka daje potencjał na rozwój dodatkowej infrastruktury. wiatrołap 3,4 m2, hol i komunikacja 14,1 m2, salon 68 m2 (wymiary ok. 11,5 m. na ok 5,9 m.), kuchnia z jadalnią 32 m2, łazienka 6,4m2, pomieszczenie gospodarcze 4,4 m2, pokój 19 m2, pokój z garderobą 21,3 m2, garderoba 2,8 m2, pomieszczenie gospodarcze 6,8 m2, hol 8,3 m2, garaż 32,6 pokój 22,2 m2, pokój 14,9 m2, pokój 9,8 m2, łazienka 6,4 m2, hol i komunikacja 17,6 m2. Budynek wykonany w 2002 roku, w technologii tradycyjnej. Jest w dobrym stanie technicznym. Dach płaski, pokryty blachą powlekaną z elektryczną instalacją do odladzania. Na parterze zaprojektowano bardzo funkcjonalny układ 2-strefowy. Główną część stanowi przestrzeń dzienna (gościnna), z przestronnym salonem, kuchnią i jadalnią. Część dzienna ma wystawę południową i zachodnią. Pozwala się cieszyć naturalnym naświetleniem przez praktycznie cały dzień. W kuchni zaaranżowano bardzo praktyczną tzw. wyspę. Zabudowa kuchenna wraz ze sprzętami AGD nowszego typu. W drugiej strefie (bocznej części budynku) znajdują się 2 pokoje, kilka pomieszczeń gospodarczych oraz garaż. Nad tą częścią można urządzić kilkudziesięciometrowy taras (pozwalają na to bardzo dobre parametry konstrukcyjne (nośność) stropu. Instalacja wodna wyposażona jest w system do uzdatniania i zmiękczania wody. Dostępna jest instalacja prądu 3-fazowego (siła). Wyprowadzono oświetlenie zewnętrzne, w tym., m. in. na ścianę elewacji głównej i drzwi zewnętrzne. Bramę wjazdową na posesję i bramę garażową wyposażono w automatykę. Dodatkowo, na terenie posesji znajduje się obiekt użytkowy-blaszany (garaż / magazyn). Jego powierzchnia to ok. 35 m2. Indywidualne rozwiązania projektowe oraz użycie wysokiej klasy materiałów przyniosło efekty w postaci niskich kosztów bieżącej eksploatacji. Zainstalowano system ogrzewania z piecem gazowym dwufunkcyjnym (Vaillant), zintegrowany z solarami do podgrzewania ciepłej wody (z zasobnikiem). Dodatkowo, główny układ ogrzewania wspomagany jest przez automatycznie zintegrowany z podstawowym systemem, układ dodatkowy - ogrzewanie kominkowe z tzw. płaszczem wodnym. Działka o powierzchni 2390 m2. Posiada kształt prostokąta o wymiarach ok. 40 m. na ok. 60 m. Jest w całości ogrodzona. Od strony frontowej ogrodzenie obłożone kamieniem naturalnym. Od strony wjazdu wyłożono kostkę brukową. W tylnej części urządzono mały sad. Na działce nie brakuje miejsca na różnego typu urządzenia rekreacyjne. Wjazd na posesję przez zdalnie sterowaną bramę. W odległości ok. 1,5 km znajdują się przystanki dla busów (liczne kursy na trasie Kraków-Słomniki). Odległość od centrum Krakowa to ok. 20 km. Pobliski węzeł drogowy trasy S-7„Widoma”, daje pewność szybkiego i sprawnego dojazdu do Krakowa. 1 890 000 zł. *We speak English Kontakt: Sławek, tel.

Dom 168m2-Działka 96ar-Hala Sieciechowice koło S7
Dom 168m2-Działka 96ar-Hala Sieciechowice koło S7 Sieciechowice, Iwanowice, krakowski, małopolskie
2 800 000 zł
16 667 zł za m²
5-pok 168 m²

Na sprzedaż dom jednorodzinny z halą 350 m² | działka 96,1 ara | Sieciechowice, gm. Iwanowice, pow. krakowski Prezentujemy do sprzedaży nieruchomość gruntową o powierzchni łącznej 96,1 ara, zabudowaną domem jednorodzinnym o pow. całkowitej 168 m² oraz halą warszatowo- magazynową o pow. ok. 350 m². Nieruchomość zlokalizowana w miejscowości Sieciechowice, gmina Iwanowice. Dom wolnostojący z 2007 roku, wybudowany z pustaka ceramicznego Porotherm, kryty dachówką ceramiczną, w bardzo dobrym stanie technicznym. ➣ Powierzchnia użytkowa: 146,7 m² ➣ Powierzchnia całkowita: 168 m² ➣ Garaż w bryle: 21,3 m² Parter: ✔ Salon z jadalnią - 32,2 m² ✔ Kuchnia - 11,1 m² ✔ Łazienka - 3,3 m² ✔ Przedpokój - 11,7 m² ✔ Pokój/gabinet - 9,7 m² ✔ Wiatrołap - 4,5 m² ✔ Pom. gospodarcze - 5,8 m² ✔ Garaż - 21,3 m² Piętro: ✔ Sypialnia I - 9,1 m² ✔ Sypialnia II - 12,6 m² ✔ Sypialnia III - 18,8 m² ✔ Łazienka - 10 m² ✔ Pralnia - 4,5 m² ✔ Korytarz - 10,7 m² ✔ Centralne ogrzewanie piecem na olej opałowy (zbiornik 1500 l, średnie zużycie roczne ok. 1700 l) ✔ Kominek z płaszczem wodnym i rozprowadzeniem ciepła ✔ 2 jednostki klimatyzacji (parter i piętro) ✔ Woda z sieci, prąd, szambo 6 m³ ✔ Gaz w drodze - nie podłączony do domu ✔ Przystosowana pod obsługę autobusów i samochodów ciężarowych ✔ 3 stanowiska (w tym 2 z kanałami) ✔ Pomieszczenia socjalne i techniczne na parterze oraz antresoli ✔ Ogrzewanie piecem olejowym ✔ Osobna brama wjazdowa, place manewrowe i parkingowe ✔ Całość ogrodzona i monitorowana ✔ Powierzchnia całkowita: 96,1 ara ✔ Wymiary: 286 m x 33,5 m ✔ Część inwestycyjna (zabudowana) ogrodzona ✔ Dwa duże utwardzone place przy hali ✔ Dodatkowo ok. 30 arów terenu rolniczego - możliwość wykorzystania pod uprawę, ogród, rekreację lub stadninę koni ✔ Na końcu działki przepływa niewielka rzeka Dłubnia, co dodaje uroku lokalizacji i stwarza dodatkowe możliwości aranżacyjne ✔ Do Krakowa (Mistrzejowice): 26 km - 25 minut samochodem ✔ Do węzła S7 - 8,5 km (wygodny wyjazd w kierunku Warszawy i Krakowa południe) ✔ Blisko przystanków busów w kierunku Krakowa (Nowa Huta, Batowice) oraz Skały ✔ Szkoła podstawowa i przedszkole - w miejscowości Iwanowice oraz Celiny ✔ Sklepy spożywcze, usługi, stacja paliw, apteka - 5 min samochodem ✔ Możliwość połączenia funkcji mieszkaniowej z prowadzeniem działalności ✔ Hala gotowa do pracy, bez dodatkowych nakładów ✔ Duży teren - idealny pod firmę transportową, warsztat, bazę sprzętową ✔ Spokojna, zielona okolica z szybkim dojazdem do Krakowa i węzłów komunikacyjnych Zapraszam do kontaktu i na prezentację. Jestem do dyspozycji codziennie między 9:00 a 22:00!

Nowy dom energooszczędny | Zalesie pod Krakowem
Nowy dom energooszczędny | Zalesie pod Krakowem Zalesie, Iwanowice, krakowski, małopolskie
995 000 zł
7 158 zł za m²
5-pok 139 m²

Na sprzedaż nowoczesny dom w stanie deweloperskim, położony w otoczeniu zieleni i ciszy, na kameralnym osiedlu, tuż pod Krakowem. To idealna propozycja dla rodzin oraz osób ceniących komfort, prywatność i bliskość natury, bez rezygnacji z wygód miejskiego życia. LOKALIZACJA:

Dom wolnostojący z garażem na 17 arowej działce z
Dom wolnostojący z garażem na 17 arowej działce z Maszków, Iwanowice, krakowski, małopolskie
1 250 000 zł
5 435 zł za m²
6-pok 230 m²

Dzień dobry Jędryka Nieruchomości ma przyjemność zaprezentować do sprzedaży dom wolnostojący w niestandardowym kształcie, ciekawa bryła budynku. Dom zlokalizowany jest w Maszkowie na 17 arowej działce składającej się z dwóch działek o pow. 10 ar i 7 ar oznaczona w MPZP jako MR2 - MR (MR1, MR2) - tereny zabudowy mieszanej - mieszkaniowej, usługowej, produkcyjnej, z bezpośrednim dostępem do drogi dookoła działki zostały posadzone drzewa tworząc tym samym prywatny mini las co jest dodatkowym atutem tej nieruchomości. Nieruchomość składa się z :

Otwórz mapę Mapa