791 obiekt

Kawalerka w centrum! Ciepła!Małe koszty ogrzewania
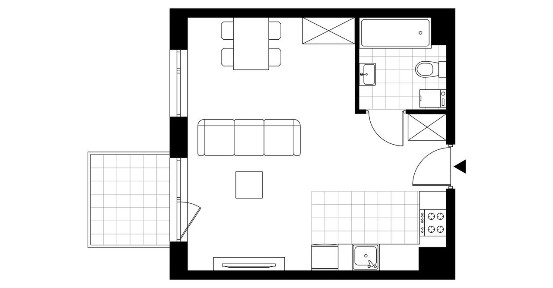
Kawalerka w centrum! Ciepła!Małe koszty ogrzewania ul. Długa, Kleparz, Stare Miasto, Kraków, małopolskie
512 000 zł
20 480 zł za m²
1-pok 25 m²

Skorzystaj z tej wyjątkowej oferty. Kawalerka bardzo ciepła! Wykończona pod klucz kawalerka na parterze.Cisza, spokój, otaczająca zieleń wkradająca się przez okno. Idealne miejsce dla singla, pary,studenta bądź inwestycję. Dodatkowo piwnica. Kamienica zamieszkana przez spokojne pokolenie. ZADZWOŃ JUŻ DZIŚ I UMÓW SIĘ NA SPOTKANIE! - Do Galerii Krakowskiej /Dworca Głównego parę minut spacerem -blisko Plantów - -Rynek tuż za rogiem! - Kilka kroków od inwestycji, znajdziemy wiele sklepów - Mnóstwo terenów zielonych w pobliżu! - W pobliżu wiele restauracji i miejsc spotkań! - Blisko Szkoła Podstawowa,żłobek,fryzjer -pracuję w firmie która jest LIDEREM W RANKINGU OTODOM - Posiadam dostęp do dużej bazy ofert nieruchomości na terenie Krakowa i okolic. - Negocjuję indywidualne rabaty dla klientów u Deweloperów - - Cena za mieszkanie to 512 845zł Serdecznie zapraszam do kontaktu i prezentacji. Angelika Joyce

1-pokojowe mieszkanie 31m2 + balkon Bezpośrednio
1-pokojowe mieszkanie 31m2 + balkon Bezpośrednio ul. Zygmunta Glogera, Prądnik Biały, Kraków, małopolskie
540 000 zł
17 419 zł za m²
1-pok 31 m² 1/3 p

1-pokojowe mieszkanie numer A3.101.M01 na 1. piętrze w Inwestycji Mieszkaj w mieście - Ogrody Glogera Dewelopera Henniger Investment Teren rekreacyjny o powierzchni 2 600 m² Instalacja pod klimatyzację w każdym mieszkaniu Użytek ekologiczny Dolina Prądnika (15 minut spacerem) Prądnik Biały, ul. Zygmunta Glogera Istotne punkty w okolicy inwestycji

Mały metraż - duża przestrzeń !
Mały metraż - duża przestrzeń ! ul. por. Halszki, Kurdwanów, Podgórze Duchackie, Kraków, małopolskie
480 000 zł
13 714 zł za m²
1-pok 35 m² 7/10 p

Spokojne, jasne mieszkanie z windą i balkonem | idealne dla seniora | Kraków, ul. Halszki Szukasz wygodnego, bezpiecznego mieszkania w bloku z windą, z zielenią za oknem i bez konieczności remontu?

Jasna, cicha kawalerka z piwnicą i balkonem.
Jasna, cicha kawalerka z piwnicą i balkonem. ul. Adama Staszczyka, Bronowice, Kraków, małopolskie
520 000 zł
15 294 zł za m²
1-pok 34 m² 2/3 p

Słoneczne mieszkanie 1-pokojowe w spokojnej części Krowodrzy, przy ul. Staszczyka. Lokal położony jest na 2. piętrze niskiego, 3-piętrowego budynku z cegły z lat 60. Ulica jest boczną od Bronowickiej, co zapewnia ciszę, a jednocześnie bardzo dobrą komunikację. • 34,30 m² • wysokość pomieszczeń - >270cm • duży i jasny pokój dzienny - 21 m² • osobna, widna kuchnia - 6,95 m² • łazienka • przedpokój • mały balkon • piwnica Pokój posiada dwa duże otwory okienne (okno + drzwi balkonowe) z ekspozycją na wschód i południe. Kuchnia ma wygodny układ - mieści stół i krzesła. • wszystkie ściany działowe - mieszkanie daje szerokie opcje przebudowy • możliwość podziału pokoju • opcja połączenia kuchni z salonem • dla inwestorów: możliwość wydzielenia 3 pokoi z anekse • okna pvc • parkiet po cyklinowaniu • terakota w kuchni i łazience • kilka lat temu odświeżone: malowanie, wymiana mebli kuchennych, sprzęt AGD (płyta gazowa, piekarnik, okap, lodówka Bosch) • nowe drzwi antywłamaniowe Gerda • ogrzewanie MPEC • ciepła woda z piecyka gazowego Mieszkanie nadaje się do zamieszkania od razu, choć część kupujących może chcieć wprowadzić własne poprawki. • niska zabudowa z cegły • jasna, przestronna klatka • po remoncie instalacji elektrycznej • w planach podłączenie miejskiej ciepłej wody • po zakończeniu prac - odmalowanie klatki • spokojna, zielona ulica o małym natężeniu ruchu • nowe chodniki • 150 m do przystanku tramwajowego przy ul. Bronowickiej • 350 m do Uniwersytetu Pedagogicznego • 500 m do Kampusu AGH Idealna lokalizacja zarówno do zamieszkania, jak i pod inwestycję. Mateusz Rogozik

Taras i spektakularny widok na Wawel - wyjątkowe mieszkanie w Krakowie
Taras i spektakularny widok na Wawel - wyjątkowe mieszkanie w Krakowie al. Zygmunta Krasińskiego, Zwierzyniec, Kraków, małopolskie
875 000 zł
23 649 zł za m²
1-pok 37 m² 1/1 p

Na sprzedaż niezwykle atrakcyjne mieszkanie do remontu o powierzchni ok. 36 m² powierzchni użytkowej, położone na ostatnim, 7. piętrze zadbanego budynku z zamkniętym terenem i prywatnym parkingiem. Nieruchomość wyróżnia ogromny, świeżo wyremontowany taras, z którego rozpościera się niezastąpiony, niczym nieprzysłonięty widok na Wawel.

Nowoczesne mieszkanie na sprzedaż - ul. Wrocławska, Kraków
Nowoczesne mieszkanie na sprzedaż - ul. Wrocławska, Kraków ul. Wrocławska, Krowodrza, Kraków, małopolskie
490 000 zł
19 600 zł za m²
1-pok 25 m² 3 p

<> Kraków, ul. Wrocławska Sprzedam nowoczesną kawalerkę przy ul. Wrocławskiej. Mieszkanie o pow. 25 m² znajduje się na 3. (ostatnim) piętrze kameralnego budynku. Mieszkanie wykończone w nowoczesnym skandynawskim stylu, w pełni wyposażone, gotowe do zamieszkania. Idealne pod inwestycję lub dla studenta/studentki, singla/singielki lub pary szukającej przytulnego miejsca w centrum Krakowa.

Stare Podgórze/Rynek Podgórski | Kawalerka z osobną kuchnią + piwnica
Stare Podgórze/Rynek Podgórski | Kawalerka z osobną kuchnią + piwnica ul. Stefana Czarnieckiego, Stare Podgórze, Podgórze, Kraków, małopolskie
550 000 zł
21 154 zł za m²
1-pok 26 m²

Przedstawiamy Państwu jednopokojowe mieszkanie z osobną kuchnią o łącznej powierzchni 26,55 m2 usytuowane w pobliżu Rynku Podgórskiego, przy ulicy Stefana Czarnieckiego. Opis mieszkania:

Kraków - Al. Jana Pawła II - Inwestycyjna nieruchomość
Kraków - Al. Jana Pawła II - Inwestycyjna nieruchomość al. Jana Pawła II, Nowa Huta, Kraków, małopolskie
410 000 zł
14 138 zł za m²
1-pok 29 m²

Kraków - Al. Jana Pawła II - Inwestycyjna nieruchomość Mamy przyjemność zaprezentować Państwu mieszkanie o powierzchni 28,33 m2, zlokalizowane przy ul. Franciszka Wężyka w zadbanym bloku z lat 80. Mieszkanie położone jest na wysokim parterze i składa się z:

Kawalerka 20 m2 - od. Górali 3
Kawalerka 20 m2 - od. Górali 3 os. Górali, Nowa Huta, Kraków, małopolskie
350 000 zł
18 421 zł za m²
1-pok 19 m² 1/3 p

Bezpośrednio - Kawalerka ok 19 m² dla singla lub dla pary do zamieszkania od zaraz! Położoa na ul. Os. Górali 3, na 1 piętrze z 3 w zadbanym bloku.

Jasne mieszkanie z balkonem - ul. Powstańców
Jasne mieszkanie z balkonem - ul. Powstańców ul. Powstańców, Prądnik Czerwony, Kraków, małopolskie
499 000 zł
15 594 zł za m²
1-pok 32 m² 1/4 p

Biuro Nieruchomości Helton ma przyjemność zaprezentować 1 pokojowe mieszkanie przy ul. Powstańców 32. TA OFERTA TYLKO U NAS! OPIS: Oferujemy na sprzedaż mieszkanie o powierzchni Nieruchomość położona jest w budynku z lat 70tych. Mieszkanie składa się z jednego, dużego pokoju z ekspozycją wschodnią, dużego balkonu na szerokość całego pokoju, łazienki, przedpokoju oraz kuchni z ekspozycją zachodnią. Około 7 lat temu był zrobiony lekki remont: wymieniono panele, wyremontowano łazienkę oraz odświeżono kuchnię. Mieszkanie nie wymaga dużego nakładu finansowego. ze względu na swoją lokalizację i położenie. Dodatkowe informacje: Ulica Powstańców to bardzo dobrze skomunikowany rejon z pełną infrastrukturą handlowo-usługową. W najbliższej odległości znajdują się: -, - 10 minut pieszo do al. 29 Listopada, główna arteria komunikacyjna. Serdecznie zapraszam do kontaktu i umówienia prezentacji również w weekendy! Oferta wysłana z programu dla biur nieruchomości ASARI CRM ()

Mieszkanie gotowe do zamieszkania, Górka Narodowa
Mieszkanie gotowe do zamieszkania, Górka Narodowa ul. Macieja Słomczyńskiego, Górka Narodowa, Prądnik Biały, Kraków, małopolskie
690 000 zł
17 250 zł za m²
1-pok 40 m²

| Doskonałe mieszkanie na start lub pod inwestycje na Górce Narodowej! Oferujemy mieszkanie na sprzedaż w prężnie rozwijającej się części Krakowa. Lokal usytuowany na wysokim parterze o powierzchni 40 m2 wraz z balkonem, to świetna propozycja dla osób poszukujących swojego pierwszego mieszkania lub w ramach inwestycji pod wynajem. Mieszkanie składa się z: 1. Pokoju z aneksem kuchennym o powierzchni aż 35 m2! Przestrzeń idealna dla osób ceniących sobie przestronne jasne pomieszczenia. 2. Łazienki o pow. 5 m2 z oknem, które zapewnia naturalne doświetlenie pomieszczenia a dodatkowo polepsza wentylację. Układ mieszkania pozwala na wydzielenie dodatkowego pomieszczenia z oknem, które może pełnić rolę niewielkiej sypialni.

25,5m2 2 piętro, Sowińskiego Centrum Miasta
25,5m2 2 piętro, Sowińskiego Centrum Miasta ul. Józefa Sowińskiego, Tarnów, małopolskie
230 000 zł
9 200 zł za m²
1-pok 25 m² 2/4 p

•Kompaktowe mieszkanie w odrestaurowanej kamienicy • Tarnów, ul. Sowińskiego 16 25,62 m² • Parter • Idealne jako inwestycja lub pierwsze mieszkanie. •WIZUALIZACJE ZAMIESZCZONE W OGŁOSZENIU SĄ POGLĄDOWE •

1 pokój| balkon| oddane do użytku| Ruczaj
1 pokój| balkon| oddane do użytku| Ruczaj Dębniki, Kraków, małopolskie
562 348 zł
17 041 zł za m²
1-pok 33 m² 1/3 p

Na sprzedaż funkcjonalne, nowoczesne mieszkanie o powierzchni 33.72 m², zlokalizowane w nowej inwestycji przy ulicy Karola Bunscha. Lokal w stanie deweloperskim, co pozwala na pełną aranżację wnętrz zgodnie z własnym stylem i potrzebami. Przemyślany układ pomieszczeń zapewnia wygodę i komfort codziennego życia.

Przestronne studio, Meiera, Górka Narodowa
Przestronne studio, Meiera, Górka Narodowa ul. ks. Józefa Meiera, Górka Narodowa, Prądnik Biały, Kraków, małopolskie
570 000 zł
14 615 zł za m²
1-pok 39 m² 6/9 p

Leach & Lang Property Consultants ma przyjemność zaprezentować na sprzedaż przestronne studio zlokalizowane w bloku przy ul. Meiera, Górka Narodowa, Kraków. Niniejsze ogłoszenie jest wyłącznie informacją handlową i nie stanowi oferty w rozumieniu art. 66 Kodeksu Cywilnego. Więcej podobnych ofert na stronie internetowej - zapraszamy!

Kawalerka Na Błonie | 26 m² | Bronowice, Agh Bronowice, Kraków, małopolskie
409 000 zł
15 731 zł za m²
1-pok 26 m² 2/4 p

Przedstawiamy Państwu atrakcyjną nieruchomość przy ul. Na Błonie, Kraków Bronowice - kawalerka, 26 m², 2. piętro z widokiem na zieleń. Budynek: Budynek z lat 70., czteropiętrowy, położony w spokojnej i zielonej części Bronowic. Nieruchomość korzysta z ogrzewania miejskiego oraz ciepłej wody miejskiej, co zapewnia wygodę i niskie koszty eksploatacji. Pod blokiem dostępny jest duży, bezpłatny parking tylko dla mieszkańców. Dostęp do komfortowej infrastruktury otoczenia, m.in.: Kawalerka o powierzchni 26 m², położona na 2. piętrze składa się z: Mieszkanie jest bardzo dobrze doświetlone, posiada południową ekspozycję okien oraz widok na zieleń. Stan mieszkania: do remontu, po wymianie okien na nowe PCV. Istnieje możliwość całkowitego usunięcia gazu. Czynsz administracyjny wynosi ok. 400 zł. Nieruchomość znajduje się w świetnie skomunikowanej części Bronowic, tuż obok pętli tramwajowej Bronowice Małe, co zapewnia doskonały dojazd do centrum - ok. 15 minut do Rynku Głównego. Okolica idealna na start, również dla studentów - w pobliżu znajdują się uczelnie i Miasteczko Studenckie AGH. W sąsiedztwie dostępne są sklepy, usługi, tereny zielone i ścieżki spacerowe. 409 000 zł Agencja Nieruchomości Estate Zina Tel.:

Mieszkanie z potencjałem na 3 pokoje - Ul. Czysta - Stare Miasto
Mieszkanie z potencjałem na 3 pokoje - Ul. Czysta - Stare Miasto ul. Czysta, Piasek, Stare Miasto, Kraków, małopolskie
920 000 zł
18 039 zł za m²
1-pok 51 m² 1/2 p

51-metrowe mieszkanie z możliwością aranżacji na 3-pokojowe - obok prestiżowej inwestycji NOHO Investment Nieruchomość: Bardzo ciche mieszkanie w odrestaurowanej kamienicy położonej przy kameralnej ul. Czystej, w sąsiedztwie znanej inwestycji Dolnych Młynów 10.

Kawalerka 21 m², Stare Miasto, ul. Kątowa, Kraków
Kawalerka 21 m², Stare Miasto, ul. Kątowa, Kraków ul. Kątowa, Przedmieście Warszawskie, Stare Miasto, Kraków, małopolskie
459 000 zł
21 857 zł za m²
1-pok 21 m² 1/2 p

Kawalerka - Stare Miasto, ul. Kątowa, Kraków Atrakcyjnie położona kawalerka w samym sercu Starego Miasta, w zadbanej kamienicy przy ul. Kątowej. Idealna jako inwestycja pod wynajem krótkoterminowy lub długoterminowy - dla studentów, turystów oraz osób pracujących w centrum. • mieszkanie na 1. piętrze • powierzchnia użytkowa: 20,99 m² - pokój: 12,73 m² - kuchnia: 5,73 m² - łazienka: 2,53 m² • wysokość ponad 3 m - możliwość budowy antresoli • w cenie piwnica 5,25 m² • mieszkanie sprzedawane z wyposażeniem - gotowe do zamieszkania • osobna księga wieczysta • ogrzewanie i ciepła woda: MPEC • czynsz: 201 zł • okna na stronę wschodnią - Stare Miasto Ulica Kątowa znajduje się w jednej z najlepiej skomunikowanych części centrum Krakowa. Znane ulice w pobliżu: • ul. Rakowicka - 250 m • ul. Lubicz - 450 m • ul. Warszawska - 300 m • ul. Pawia - 550 m • al. 29 Listopada - 400 m • ul. Kurniki / ul. Topolowa - blisko Dworca Głównego • kamienica po generalnym remoncie elewacji i dachu • zaplanowany (i opłacony) remont klatki schodowej - wiosna 2026 • dostępny domofon, monitoring, szybki internet (światłowód) • ogrzewanie i ciepła woda - MPEC • dla mieszkańców: wiata na rowery na podwórku • lokalizacja idealna pod najmy krótkoterminowe i studenckie • wysoka płynność wynajmu ze względu na bliskość uczelni, centrum i biurowców • świetna propozycja dla inwestorów szukających stabilnej nieruchomości w centrum Zapraszam do kontaktu i obejrzenia mieszkania! Współpracujemy z innymi biurami nieruchomości, także zapraszam pośredników, mających klienta.

Sprzedam kawalerkę bardzo atrakcyjna lokalizacja! Idealne pod wynajem! Małopolskie, Kraków, Krowodrza
495 000 zł
24 750 zł za m²
1-pok 20 m² 1 p

Opis: Mieszkanie znajduje się na pierwszym piętrze bloku z lat 70 przy ul. Wójtowskiej - Krowodrza. W bloku dostepne dwie windy. Składa się z pokoju, aneksu kuchennego przedpokoju i łazienki. Okna PCV z wystawą południową. Ogrzewanie miejsce z sieci MPEC. Do mieszkania przynalezy balkon. Dla mieszkanców wjazd na teren parkingu przy bloku przez szlaban na pilota z identyfikatorem Budynek monitorowany. Rowerowania dla mieszkańców. Idealne dla osób szukających spokojnej okolicy z bliskim dostępem do centrum. Stan prawny - spółdzielcze własnościowe prawo z KW Lokalizacja: Mieszkanie znajduje się blisko centrum W pobliżu znajdują się Akademia Górniczo-Hutnicza, Uniwersytet Pedagogiczny, Uniwersytet Rolniczy, Uniwersytet Jagielloński. Blisko mieszkania znajdują się również parki i miejsca sportowo-rekreacyjne. Do Rynku Głównego można dojść piechotą, odległość od mieszkania wynosi 2,5 km. 15 minut pieszo do Uniwersytetu Pedagogicznego Blisko budynku przystanki autobusowe, do przystanku tramwajowego 8 min pieszo na ul. Królewskiej 7 minut pieszo do stacji PKP Łobzów (Szybka Kolej Aglomeracyjna )

Słoneczna kawalerka z pięknym widokiem
Słoneczna kawalerka z pięknym widokiem ul. Piotra Stachiewicza, Azory, Prądnik Biały, Kraków, małopolskie
430 000 zł
17 917 zł za m²
1-pok 24 m² 9/10 p

Sprzedamy słoneczna kawalerkę z pięknym widokiem, położoną na IX piętrze w X piętrowym budynku przy ul. Stachiewicza w Krakowie. Mieszkanie jest po remoncie w zakresie instalacji i łazienki, wymaga jedynie odświeżenia, ewentualnie wymiany paneli. Pokój jest spory z drzwiami balkonowymi (balkon francuski), aneks kuchenny urządzono w przedpokoju, łazienka jest spora, ustawna z wc, natryskiem, umywalka i pralką. Ogrzewanie i ciepła woda miejskie, w mieszkaniu nie ma gazu. Niskie koszty utrzymania czynsz ok. 500 zł + prąd. Budynek po termomodernizacji, wymieniona winda, klatka schodowa w trakcie remontu (nie jest najładniejsza). Pod blokiem sporo miejsc postojowych, wjazd przez szlaban. Blisko sklepy, zieleniak, przystanek komunikacji miejskiej. Szczegóły telefonicznie Opiekun oferty Katarzyna Szarek Pośrednik odpowiedzialny zawodowo za wykonanie umowy pośrednictwa: Katarzyna Szarek (licencja nr: 546)

APARTAMENT INWESTYCYJNY + GARAŻ - BIAŁA PERŁA
APARTAMENT INWESTYCYJNY + GARAŻ - BIAŁA PERŁA Sienna, Stronie Śląskie, kłodzki, dolnośląskie
343 000 zł
15 591 zł za m²
1-pok 22 m² 1 p

Na sprzedaż ekskluzywny apartament inwestycyjny oraz dochodowy w kompleksie 'Biała Perła' w rejonie Czarna Góra Resort, z przepięknym widokiem na góry, wraz z garażem. Ten nowoczesny i stylowo urządzony apartament to wyjątkowa okazja dla osób poszukujących nieruchomości gwarantującej ciekawą inwestycję. Kompleks 'Biała Perła' jest położony w malowniczej okolicy, oferujący łatwy dostęp do wielu atrakcji turystycznych oraz stoków narciarskich, co czyni go idealnym miejscem na wypoczynek przez cały rok. Doskonała lokalizacja umożliwia cieszenie się pięknem górskich krajobrazów bezpośrednio z okien apartamentu. Do apartamentu przynależy również miejsce parkingowe w garażu podziemnym, co jest dodatkowym atutem To wyjątkowa propozycja dla osób szukających miejsc na inwestycję, które jednocześnie chciałyby cieszyć się możliwością spędzania czasu w jednej z najpiękniejszych lokalizacji w Polsce. Nie zwlekaj i zapoznaj się z tą wyjątkową ofertą już dziś. Podana cena jest ceną netto, należy doliczyć do niej 23% VAT. Czy wiesz, że możemy przygotować dla Ciebie prezentację on-line nieruchomości? Skontaktuj się z naszym Agentem i zapytaj o szczegóły. Pomimo, iż Doradcy Metrohouse przykładają szczególną staranność do rzetelnego prezentowania informacji o nieruchomości, nie zawsze jest możliwa weryfikacja wszystkich danych przekazanych od osób trzecich. Niniejsza prezentacja oferty nie jest ofertą w rozumieniu Kodeksu Cywilnego i ma charakter wyłącznie informacyjny.

Otwórz mapę Mapa