90 obiektów

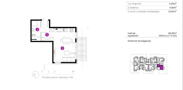
Ogródek/ Apartamenty Na Wzgórzu
Ogródek/ Apartamenty Na Wzgórzu ul. Klimontowska, Sielec, Sosnowiec, śląskie
277 680 zł
10 284 zł za m²
1-pok 27 m²

Nowość w Murapolu: MOBILNY DORADCA KLIENTA - dla Twojej wygody. - Przyjedziemy do Ciebie lub zdalnie przedstawimy ofertę - prezentacja mieszkań i inwestycji, informacje, warunki i szczegóły. Nie musisz od razu przyjechać do naszego biura. - Następnie zaprosimy Cię na oglądanie inwestycji i mieszkań. Z nami otrzymasz wszystkie informacje i załatwisz wszystkie formalności w czasie i miejscu dogodnym dla Ciebie. Inwestycja MURAPOL. Na Wzgórzu - Oglądasz okolicę z góry. Najwyżej położone miejsce w Sosnowcu. Zielona, przyjazna i cicha okolica z rzadką i niską zabudową jednorodzinną pozwala cieszyć się panoramą miasta, a przy sprzyjającej pogodzie także Beskidu Śląskiego. Jednocześnie miejsce dobrze skomunikowane, a do centrum tylko skok. Apartamentowce 4 i 5 piętrowe górują nad okolicą. Winda, wysoki standard wykończenia przestrzeni wspólnych, oświetlenie LED w mieszkaniach wysoki stan deweloperski, stacja ładowania pojazdów elektrycznych. Miejsca postojowe podziemne i naziemne, stojaki rowerowe. Mieszkania na parterze mają ogródki. umożliwiający inteligentne zarządzanie urządzeniami w mieszkaniu. Jednym przyciskiem w telefonie gasisz wszystkie światła, zakręcasz zawór wody, a wychodząc z pracy włączasz ogrzewanie. Wracasz do cieplutkiego mieszkanka. - Filtrowane nawiewniki, zapewniają stałą regulowaną miokrowentylację z czystym powietrzem. Wykończenia klatek i innych części wspólnych wykonane z takich jak gresy, laminowane panele meblowe i wysokiej jakości tynk mozaikowy. Czujesz się komfortowo. w częściach wspólnych, redukujące zużycie energii, balkony z termoizolacyjnymi łącznikami Isokorb, zapobiegającymi utracie ciepła, tarasy i zielone ogródki dla mieszkań na parterze. Stojaki rowerowe na terenie inwestycji. To dobre miejsce do mieszkania. lub : Pracujemy od 09:00 do 19:00 (pn-pt), w niedziele od 16:00 do 19:00 Treść niniejszego ogłoszenia nie stanowi oferty handlowej w rozumieniu Kodeksu Cywilnego. Oferta wysłana z programu IMO dla pośredników

Wyremontowana i przestronna kawalerka | Dąbrowa Górnicza Mydlice.
Wyremontowana i przestronna kawalerka | Dąbrowa Górnicza Mydlice. Mydlice Północne, Mydlice, Dąbrowa Górnicza, śląskie
269 900 zł
1-pok

Na sprzedaż wyremontowana i przestronna kawalerka | Dąbrowa Górnicza Mydlice. ZADZWOŃ DO NAS | OFERTA NA WYŁĄCZNOŚĆ. OFERTA BEZ PROWIZJI - kupując tą nieruchomość z WGN SOSNOWIEC nie zapłacisz prowizji, nie podpisujesz żadnych umów. Wesprzemy Cię w uzyskaniu atrakcyjnej ceny, zapewnimy pełną obsługę notarialną wraz z weryfikacją nieruchomości.

Do własnej aranżacji-wolne od zaraz!
Do własnej aranżacji-wolne od zaraz! ul. Niwecka, Dańdówka, Sosnowiec, śląskie
150 000 zł
5 172 zł za m²
1-pok 29 m²

MIESZKANIE Duża kawalerka położona na parterze w niskim, 3-piętrowym bloku po termomodernizacji. Czysta, zadbana klatka schodowa zamykana domofonem. Mieszkanie do generalnego remont i urządzenia według własnego gustu. W lokalu ogrzewane z sieci miejskiej, ciepła woda z piecyka gazowego. Idealne pod wynajem! Wolne od zaraz. Mieszkanie zlokalizowane jest w Sosnowcu przy ulicy Niweckiej w dzielnicy Dańdówka. W pobliżu znajdują się przystanek autobusowy oraz tramwajowy. Świetna komunikacja z całą aglomeracją. Niedaleko znajdziemy również liczne punkty sportowe, rekreacyjne, sklepy, przedszkole, tereny zielone oraz przychodnie lekarskie. Łączna powierzchnia: 29,22 m² • Oddzielna kuchnia • Łazienka z WC • Przedpokój • Salon • Mieszkanie do własnej aranżacji • Budynek po termomodernizacji • Ogrzewanie z sieci miejskiej • Spółdzielcze własnościowe • Zadbany teren wokół bloku • Czynsz 550 zł/ 1 os. • Duża piwnica Zapraszam do kontaktu! Cena nie uwzględnia prowizji dla Biura Nieruchomości oraz kosztów notarialnych. POMAGAMY W UZYSKANIU FINANSOWANIA NA ZAKUP NIERUCHOMOŚCI

1 pokój, kawalerka, mieszkanie na sprzedaż - Sielec
1 pokój, kawalerka, mieszkanie na sprzedaż - Sielec ul. Zamkowa, Sielec, Sosnowiec, śląskie
220 000 zł
7 333 zł za m²
1-pok 30 m² 7 p

Oferuję do sprzedania jasne, przytulne i bardzo cieple mieszkanie usytuowane w Sosnowcu dzielnicy Sielec ul Zamkowa, na siódmym piętrze dziesięciopiętrowego budynku po termomodernizacji. Na powierzchni 30 m2 znajduje się salon, kuchnia, przedpokój, łazienka z toaletą. Dodatkowo do mieszkania należy zamykany korytarz wspólny z drugim mieszkaniem. Do mieszkania przynależy również duża zamykana piwnica.

kawalerka do remontu ul. Morcinka, Wojkowice, będziński, śląskie
69 000 zł
3 632 zł za m²
1-pok 19 m² 3/3 p

Kawalerka o pow. 19,3m2 położona na 3 piętrze (poddasze) budynku. Mieszkanie posiada skosy, więc powierzchnia po podłodze jest nieco większa. Kameralna kamienica wpisana do rejestru zabytków, ul. Morcinka 5 w Wojkowicach.

Funkcjonale mieszkanie do remontu w centrum miasta
Funkcjonale mieszkanie do remontu w centrum miasta ul. Mikołaja Kopernika, Reden, Dąbrowa Górnicza, śląskie
199 000 zł
5 378 zł za m²
1-pok 37 m² 1/2 p

Na sprzedaż mieszkanie o powierzchni 37,79 m2 zlokalizowane na pierwszym piętrze w kamienicy przy ulicy Kopernika w Dąbrowie Górniczej. Mieszkanie składa się z kuchni, łazienki oraz przestronnej części dziennej. W części dziennej jest możliwość wydzielenia oddzielnej sypialni, co zwiększy funkcjonalność mieszkania. Mieszkanie w stanie do remontu. Instalacje będą doprowadzone do mieszkania- rozprowadzenie po stronie nabywcy. Przestrzenie wspólne zostaną odnowione oraz zostanie wykonana nowa elewacja. W budynku zostanie zamontowane również nowe źródło ogrzewania. We wszystkich mieszkaniach zostały wymienione okna oraz drzwi wejściowe. Kamienica znajduje się w samym centrum miasta. W najbliższym sąsiedztwie znajdują się szkoły, sklepy oraz punkty usługowe niezbędne w codziennym życiu. W niedalekiej odległości znajduje się również dworzec kolejowy, centrum handlowe oraz liczne tereny zielone i rekreacyjne, takie jak Park Zielona, Jeziora Pogoria czy Fabryka Pełna Życia. Oferta wysłana z programu dla biur nieruchomości ASARI CRM ()

kawalerka gotowa do zamieszkania - niski czynsz! - MYDLICE
kawalerka gotowa do zamieszkania - niski czynsz! - MYDLICE ul. Legionów Polskich, Mydlice Południowe, Mydlice, Dąbrowa Górnicza, śląskie
202 000 zł
7 769 zł za m²
1-pok 26 m² 7/7 p

OFERTA PRYWATNA - BEZPOŚREDNIO OD WŁAŚCICIELA - BRAK PROWIZJI Witam, sprzedam kawalerkę zlokalizowaną w Dąbrowie Górniczej (dzielnica Mydlice), przy ul. Legionów Polskich 149. Podstawowe informacje:

*** PARK MIELECKA Kawalerka 34,9m
*** PARK MIELECKA Kawalerka 34,9m ul. Mielecka, Zagórze Południe, Sosnowiec, śląskie
do negocjacji
1-pok 34 m² 1/4 p

D&D Investment - Sprzedaż Bezpośrednio od Dewelopera Zapraszamy do zapoznania się z naszą nową inwestycją - oferujemy 73 komfortowych mieszkań w nowoczesnym budynku wielorodzinnym. Kupujesz bez podatku PCC, prowizji, bez pośredników - prosto od dewelopera!

Sosnowiec Klimontów Kraszewskiego, 34m2, przestronna kawalerka
Sosnowiec Klimontów Kraszewskiego, 34m2, przestronna kawalerka ul. Józefa Ignacego Kraszewskiego, Klimontów, Sosnowiec, śląskie
179 000 zł
5 265 zł za m²
1-pok 34 m² 3/4 p

Do sprzedaży mieszkanie, 1 pokój, 34,4m2, Sosnowiec ul.Kraszewskiego Mieszkanie stanowi odrębną nieruchomość z udziałem w gruncie, jeden właściciel.

Na sprzedaż 1 pok, mieszkanie. Sosnowiec - Juliusz
Na sprzedaż 1 pok, mieszkanie. Sosnowiec - Juliusz ul. Obrońców Warszawy, Juliusz, Sosnowiec, śląskie
125 000 zł
5 435 zł za m²
1-pok 23 m²

Przedstawiamy Państwu ofertę sprzedaży 1 - pokojowego mieszkania, zlokalizowanego w Sosnowcu na oś, Juliusz. Niski blok. Wejście do klatki zabezpieczone domofonem. Układ funkcjonalny:

Przestronna kawalerka na sprzedaż w Będzinie
Przestronna kawalerka na sprzedaż w Będzinie al. Hugona Kołłątaja, Będzin, będziński, śląskie
149 000 zł
4 656 zł za m²
1-pok 32 m²

Przedstawiamy Państwu ofertę sprzedaży 2- pokojowego mieszkania zlokalizowanego w Będzinie przy ulicy Kołłątaja w dzielnicy Śródmieście. Budynek po częściowej termomodernizacji. Układ funkcjonalny:

Ostatnia kawalerka|Bezpośrednio od Dewelopera|Umów spotkanie
Ostatnia kawalerka|Bezpośrednio od Dewelopera|Umów spotkanie Siewierz, będziński, śląskie
246 424 zł
8 801 zł za m²
1-pok 28 m²

BEZPOŚREDNIO OD DEWELOPERA - BEZ PROWIZJI, BEZ PODATKU OD CZYNNOŚCI CYWILNOPRAWNYCH, BEZ UKRYTYCH KOSZTÓW Lokalizacja - Zielona i urokliwa część Siewierza, tuż nad Zalewem Przeczycko-Siewierskim

syndyk sprzeda udział w nieruchomości al. Aleja Zwycięstwa, Ząbkowice, Dąbrowa Górnicza, śląskie
18 400 zł
438 zł za m²
1-pok 42 m² 3 p

Syndyk masy upadłości Joanny Usman osoby fizycznej nieprowadzącej działalności gospodarczej ogłasza przetarg przedmiotem którego jest udział w wysokości 1/6 w spółdzielczym własnościowym prawie do lokalu mieszkalnego nr 129 położonego w Dąbrowie Górniczej przy al. Zwycięstwa 87, dla którego prowadzona jest księga wieczysta o numerze KW KA1D/00067877/0.

Kawalerka 28 m² z ogródkiem 40 m² | nowe osiedle 2024 | 0% prowizji
Kawalerka 28 m² z ogródkiem 40 m² | nowe osiedle 2024 | 0% prowizji ul. Marii Konopnickiej, Środula, Sosnowiec, śląskie
314 900 zł
11 246 zł za m²
1-pok 28 m²

SPRZEDAŻ BEZPOŚREDNIO OD WŁAŚCICIELA - KUPUJESZ BEZ PROWIZJI. NAJWIĘKSZE ATUTY

Stylowa kawalerka | Sosnowiec Środula.
Stylowa kawalerka | Sosnowiec Środula. Środula, Sosnowiec, śląskie
229 900 zł
8 211 zł za m²
1-pok 28 m² 1/6 p

Na sprzedaż stylowa kawalerka | Sosnowiec Środula. ZADZWOŃ DO NAS | OFERTA NA WYŁĄCZNOŚĆ. OFERTA BEZ PROWIZJI - kupując tą nieruchomość z WGN SOSNOWIEC nie zapłacisz prowizji, nie podpisujesz żadnych umów. Wesprzemy Cię w uzyskaniu atrakcyjnej ceny, zapewnimy pełną obsługę notarialną wraz z weryfikacją nieruchomości.

Przestronna Kawalerka
Przestronna Kawalerka Ząbkowice, Dąbrowa Górnicza, śląskie
209 900 zł
5 382 zł za m²
1-pok 39 m² 1/2 p

Oferujemy na sprzedaż przestronne mieszkanie o powierzchni 38,5 m², położone na wysokim parterze w niskim dwupiętrowym budynku w którym znajduje się zaledwie kilka lokali. Mieszkanie przeszło kompletny remont w 2018 roku - zostały wymienione wszystkie instalacje: elektryczne, wodne i kanalizacyjne, odświeżone ściany, wymienione podłogi, drzwi i armatura. Stan techniczny jest bardzo dobry - można wchodzić i mieszkać bez żadnych nakładów finansowych.

Kawalerka z balkonem, ogrzewaniem miejskim i ciepła woda
Kawalerka z balkonem, ogrzewaniem miejskim i ciepła woda Juliusz, Sosnowiec, śląskie
125 000 zł
5 682 zł za m²
1-pok 22 m²

Witam do sprzedania super mieszkanie w Sosnowcu na os. Juliusz. Mieszkanie składa się z kuchni, łazienki, oraz dużego pokoju z balkonem, klatka schodowa zabezpieczona przez domofon.Mieszkanie na wysokim parterze do remontu.Blok lata 80 położony na dużym osiedlu,duża ilość miejsc parkingowych.

Mieszkanie z pełnym umeblowaniem
Mieszkanie z pełnym umeblowaniem ul. Józefa Wybickiego, Gołonóg, Gołonóg Północny, Dąbrowa Górnicza, śląskie
228 000 zł
7 862 zł za m²
1-pok 29 m² 2/3 p

Poszukujesz komfortowego mieszkania w doskonałej lokalizacji? Ta oferta jest idealna dla Ciebie! Przedstawiamy atrakcyjne jednopokojowe mieszkanie, które znajduje się na drugim piętrze kameralnego, trzy piętrowego bloku w Dąbrowie Górniczej, dzielnica Gołonóg, przy ul. Wybickiego. Mieszkanie o powierzchni 29,70 m² zostało starannie wykończone, zapewniając nowoczesny i estetyczny wygląd. W jego skład wchodzi przestronny pokój z eleganckimi panelami na podłogach i gładkimi ścianami, nowoczesny aneks kuchenny z meblami na wymiar oraz kompletem sprzętów AGD - lodówką, płytą indukcyjną, piekarnikiem i zmywarką, gotowymi do natychmiastowego zamieszkania. Komfortową łazienkę wykończono wysokiej klasy kafelkami, wyposażoną w kabinę prysznicową, co zapewnia wygodę i funkcjonalność. Przedpokój dopełnia całości, a do mieszkania przynależy także piwnica, gwarantując dodatkowe miejsce na przechowywanie. Lokal jest w pełni gotowy do wprowadzenia się - nie wymaga żadnych prac remontowych. Jasne i przytulne wnętrza sprzyjają relaksowi i codziennemu komfortowi. Lokalizacja to jego ogromny atut! W najbliższej okolicy znajdziesz sklepy spożywcze, szkołę podstawową oraz przedszkole, co czyni to miejsce idealnym dla rodzin z dziećmi. Doskonałe połączenia komunikacyjne - autobusy, tramwaje i pociągi - zapewniają szybki i wygodny dojazd do różnych części miasta oraz okolicznych miejscowości. Czynsz wynosi około 495 zł i obejmuje zaliczki na centralne ogrzewanie, wodę, wywóz śmieci (na 1 osobę) oraz fundusz remontowy. Mieszkanie korzysta z miejskiej sieci ciepłowniczej, co gwarantuje komfort i oszczędność, a ciepła woda pochodzi z gazowego piecyka. To wyjątkowa oferta dla rodzin, singli, a także inwestorów szukających nieruchomości blisko lasu i szybkiego wyjazdu na drogę ekspresową. Serdecznie zapraszamy na oględziny! Zachęcamy również do zapoznania się z naszymi innymi ofertami nieruchomości w Będzinie, Dąbrowie Górniczej oraz Sosnowcu. Więcej informacji uzyskają Państwo pod numerami telefonów

Lokal mieskalny
Lokal mieskalny ul. Tylna, Strzemieszyce Wielkie, Dąbrowa Górnicza, śląskie
69 000 zł
2 760 zł za m²
1-pok 25 m²

Na sprzedaż lokal mieszkalny - Dąbrowa Górnicza, ul. Tylna 11 Na sprzedaż oferujemy funkcjonalny lokal mieszkalny o powierzchni 25,5 m², usytuowany na parterze budynku przy ul. Tylnej 11 w Dąbrowie Górniczej. Układ pomieszczeń:

*** PARK MIELECKA *** A2 09 Dwa pokoje + balkon
*** PARK MIELECKA *** A2 09 Dwa pokoje + balkon ul. Mielecka, Zagórze Południe, Sosnowiec, śląskie
do negocjacji
1-pok 42 m² 1/4 p

D&D Investment - Sprzedaż Bezpośrednio od Dewelopera Zapraszamy do zapoznania się z naszą nową inwestycją - oferujemy 73 komfortowych mieszkań w nowoczesnym budynku wielorodzinnym. Kupujesz bez podatku PCC, prowizji, bez pośredników - prosto od dewelopera!

Otwórz mapę Mapa