1 232 obiekty

Объект PL-1296221986 не найден. Возможно, он удалён по истечению срока давности, либо находится в процессе публикации.

BEZPOŚREDNIO| M3 | Okólna| Parking
BEZPOŚREDNIO| M3 | Okólna| Parking ul. Okólna, Tysiąclecie, Częstochowa, śląskie
379 000 zł
8 239 zł za m²
2-pok 46 m² 4/4 p

Sprzedam mieszkanie po generalnym remoncie przy ul. Okólnej w Częstochowie, zlokalizowane na 4. piętrze w bloku. czteropiętrowym. Szczegóły oferty: Lokalizacja: ul. Okólna Częstochowa

Zamieszkaj Lub Zainwestuj w Sercu Sosnowca! Postaw na Komfort i Wygodę
Zamieszkaj Lub Zainwestuj w Sercu Sosnowca! Postaw na Komfort i Wygodę ul. Warszawska, Centrum / Śródmieście, Sosnowiec, śląskie
379 000 zł
7 431 zł za m²
3-pok 51 m² 4/10 p

Cześć, tu HOMEK : -) Marzysz o gotowym do zamieszkania stylowym mieszkaniu w doskonałej lokalizacji?

Plaza City | 410 | plac zabaw w zieleni
Plaza City | 410 | plac zabaw w zieleni ul. Łódzka, Parkitka, Częstochówka-Parkitka, Częstochowa, śląskie
455 877 zł
8 601 zł za m²
3-pok 53 m² 1/4 p

3-pokojowe mieszkanie numer 410 na 1. piętrze w Inwestycji Plaza City Dewelopera Trust Investment Elegancja i wyjątkowość. Lokalizacja i dostępność. Komfort udogodnień. Istotne punkty w okolicy inwestycji

Duże M3 w centrum Bytomia - gotowe do wejścia!
Duże M3 w centrum Bytomia - gotowe do wejścia! Doktora Józefa Rostka, Śródmieście, Bytom, śląskie
479 999 zł
4 404 zł za m²
3-pok 109 m² 2/3 p

TYLKO W NASZYM BIURZE! Szukasz dużego i gotowego mieszkania w centrum Bytomia? Ta oferta jest właśnie dla Ciebie! Mamy do zaoferowania mieszkanie zlokalizowane w przy ulicy Rostka o powierzchni użytkowej znajdujące się na w kamienicy, składające się z:

3-pokojowe mieszkanie+ 12 m² taras oraz 25 m² ogródek! 2025!
3-pokojowe mieszkanie+ 12 m² taras oraz 25 m² ogródek! 2025! ul. Północna, Śródmieście, Bytom, śląskie
396 862 zł
7 488 zł za m²
3-pok 53 m²

Mieszkanie 3-pokojowe z ogródkiem - idealne dla pary lub rodziny Nowy budynek z 2025 roku | Zakończenie prac jeszcze w tym roku! Lokalizacja: Nowoczesna inwestycja mieszkaniowa przy ul. Północnej 2A w Bytomiu - w spokojnej, zielonej części miasta. Osiedle wyróżnia się nowoczesną architekturą, dużą ilością zieleni, strefami rekreacyjnymi oraz dogodnym dostępem do komunikacji miejskiej. W okolicy: sklepy spożywcze (Dino, Lidl, Biedronka), przystanki komunikacji miejskiej, szkoły, przedszkola, przychodnie, tereny spacerowe i rekreacyjne.

Komfortowe mieszkanie z dużym balkonem w centrum
Komfortowe mieszkanie z dużym balkonem w centrum gen. Józefa Chłopickiego, Tysiąclecie, Częstochowa, śląskie
399 000 zł
7 125 zł za m²
2-pok 56 m²

Szukasz komfortowego i funkcjonalnego mieszkania w świetnej lokalizacji? Mamy dla Ciebie idealną propozycję! Na sprzedaż 2-pokojowe mieszkanie o powierzchni użytkowej 56 m², położone na wysokim parterze budynku przy ul. Chłopickiego 19 w Częstochowie. Mieszkanie zostało odświeżone, dzięki czemu prezentuje się nowocześnie i jest gotowe do zamieszkania. Mieszkanie jest w pełni umeblowane i posiada obszerny balkon.

Piękne mieszkanie w Tarasowcach 3 pokoje
Piękne mieszkanie w Tarasowcach 3 pokoje Myszków, myszkowski, śląskie
415 000 zł
7 155 zł za m²
3-pok 58 m² 1/2 p

Sprzedam mieszkanie w Tarasowcach 3 pokoje w MYSZKOWIE. WGN Nieruchomości Myszków

Jasne M3 z miejscem postojowym
Jasne M3 z miejscem postojowym Trzech Wieszczów, Częstochowa, śląskie
319 000 zł
6 510 zł za m²
2-pok 49 m² 1/3 p

NEO Nieruchomości prezentuje mieszkanie dwupokojowe w dzielnicy Trzech Wieszczów. Oferuję na sprzedaż funkcjonalne dwupokojowe mieszkanie o powierzchni 49 m2, zlokalizowane w samym Centrum Częstochowy. Budynek jest ocieplony, posiada zamkniętą klatkę schodową, co zapewnia komfort i bezpieczeństwo. Układ mieszkania: - przestronny salon, - oddzielna sypialnia z dużą szafą w zabudowie, - kuchnia, - łazienka z prysznicem - przedpokój z zabudową. Wszystkie okna wychodzą na wschód, dzięki czemu mieszkanie jest jasne od rana a latem nie nagrzewa się w godzinach popołudniowych. Lokal jest w dobrym stanie technicznym i nie wymaga dodatkowych nakładów finansowych. W 2023 roku mieszkanie zostało odświeżone a wcześniej przeszło gruntowny remont w którym została wymieniona instalacja, renowacja podłóg drewnianych, wymiana okien oraz płytki w łazience i części kuchennej. Do mieszkania przynależy komórka lokatorska oraz miejsce parkingowe przed budynkiem. Zapraszam na prezentację w każdy dzień tygodnia! Współpracujemy z doradcą kredytowym, notariuszem, firmą sprzątającą i transportową = kompleksowa obsługa!

187/16295/OMS
187/16295/OMS Centrum / Śródmieście, Sosnowiec, śląskie
319 000 zł
5 696 zł za m²
3-pok 56 m² 4/4 p

SOSNOWIEC, MAŁACHOWSKIEGO TYLKO U NAS W NOTUS - OFERTA NA WYŁĄCZNOŚĆ Nie szukaj dalej. UMÓW SIĘ NA PREZENTACJĘ, zanim ubiegną Cię inni. Mam przyjemność zaprezentować 3-pokojowe mieszkanie o powierzchni 56 m², z osobną, jasną kuchnią, położone w Sosnowcu przy ul. Małachowskiego, tuż przy deptaku - w lokalizacji idealnej pod wynajem dla studentów i młodych najemców. Cena: 319 000 zł - oferta, która przy tym metrażu i lokalizacji realnie pracuje na stopę zwrotu. INWESTYCJA, KTÓRA SIĘ BRONI LICZBAMI 56 m² / 3 niezależne pokoje Osobna kuchnia z oknem - preferowana przez najemców Balkon z widokiem na zielone podwórko Możliwość parkowania za szlabanem - tylko dla mieszkańców Ogrzewanie miejskie - przewidywalne koszty Stan do wprowadzenia - wynajem możliwy od razu po zakupie Dla inwestorów planujących zwiększenie rentowności - kuchnia i łazienka dają potencjał do liftingu, bez konieczności generalnego remontu. UKŁAD FUNKCJONALNY: Mieszkanie znajduje się na 4. piętrze (bez windy). Zadbana klatka schodowa, domofon oraz jasne, przestronne wnętrze. LOKALIZACJA = STAŁY POPYT NA NAJEM To adres, który nie wymaga reklamy - najemcy znają jego wartość. Szczegóły omówię podczas bezpośredniego spotkania. ZAPRASZAM DO OGLĄDANIA I NEGOCJACJI - NAPRAWDĘ WARTO. Posiadam również inne niepublikowane oferty inwestycyjne. Jeżeli ta oferta wpisuje się w Twój plan inwestycyjny - nie zwlekaj, zadzwoń i umów się na prezentację. Nasi eksperci finansowi pomogą w uzyskaniu najlepszego kredytu na rynku. Ogłoszenie nie stanowi oferty w rozumieniu Kodeksu Cywilnego, a dane mają charakter informacyjny i mogą ulec aktualizacji. Notus Finanse S.A. Oferta wysłana z programu dla biur nieruchomości ASARI CRM ()

Wyremontowane 2-Pokojowe Mieszkanie Tuż Obok Rynku
Wyremontowane 2-Pokojowe Mieszkanie Tuż Obok Rynku ul. Rzeźnicza, Śródmieście, Bytom, śląskie
276 000 zł
8 625 zł za m²
2-pok 32 m² 2 p

Wyłącznie u nas! Na sprzedaż komfortowe i bardzo funkcjonalne mieszkanie o powierzchni 32,32m, które jest usytuowane na 2 piętrze w kamienicy. Lokal mieszkalny przeszedł generalny remont, który został wykonany z dużą starannością i dbałością o detale. Mieszkanie jest w pełni gotowe do zamieszkania i nie wymaga żadnych dodatkowych nakładów finansowych, co pozwala nowemu właścicielowi wprowadzić się od razu po zakupie. Układ mieszkania został zaprojektowany w sposób przemyślany, zapewniając maksymalne wykorzystanie dostępnej przestrzeni. Centralnym punktem lokalu jest jasny i nowoczesny salon połączony z aneksem kuchennym. Aneks kuchenny został wykonany na wymiar i wyposażony jest w niezbędne sprzęty AGD, takie jak lodówka, płyta grzewcza, piekarnik oraz zmywarka. Przestrzeń dzienna jest idealnym miejscem zarówno do codziennego wypoczynku, jak i spotkań z bliskimi. Następnie udajemy się do pokoju, który został zaaranżowany jako sypialnia. Pomieszczenie to zapewnia komfort i prywatność, a jego dużym atutem jest pojemna szafa w zabudowie, umożliwiająca wygodne przechowywanie ubrań i rzeczy osobistych. Łazienka została zaprojektowana w nowoczesnym stylu, z wykorzystaniem jasnych i eleganckich materiałów. Wyposażona jest w kabinę prysznicową, funkcjonalną zabudowę oraz armaturę wysokiej jakości, co zapewnia wygodę codziennego użytkowania. Przedpokój został bardzo dobrze zagospodarowany znajduje się w nim praktyczna szafa na odzież wierzchnią, która dodatkowo porządkuje przestrzeń mieszkania. Nieruchomość posiada ogrzewanie gazowe z piecem dwufunkcyjnym, co daje możliwość indywidualnej regulacji temperatury oraz wpływa na niższe koszty utrzymania. Mieszkanie łączy w sobie nowoczesny standard wykończenia z klimatem kamienicy, dzięki czemu stanowi atrakcyjną ofertę zarówno dla singla, pary, jak i jako inwestycja pod wynajem.

Przestronne M4 do wejścia- duży balkon- Wrzosowiak
Przestronne M4 do wejścia- duży balkon- Wrzosowiak Wrzosowiak, Częstochowa, śląskie
410 000 zł
6 949 zł za m²
3-pok 59 m² 3/4 p

Na sprzedaż 3-pokojowe mieszkanie z dużym balkonem - 59 m² - Wrzosowiak Na sprzedaż funkcjonalne, rozkładowe mieszkanie o powierzchni 59 m², zlokalizowane na 3. piętrze w 4-piętrowym bloku w cenionej i zielonej dzielnicy Wrzosowiak.

Wyjątkowe trzypokojowe z klimatyzacją i własnym CO
Wyjątkowe trzypokojowe z klimatyzacją i własnym CO Wrzosowiak, Częstochowa, śląskie
419 000 zł
7 759 zł za m²
3-pok 54 m² 3/3 p

Na sprzedaż gustownie urządzone, ustawne trzypokojowe mieszkanie o powierzchni około 52 m², zlokalizowane na 3. piętrze w relatywnie nowym, ocieplonym bloku przy ulicy Gajowej w Częstochowie. Jeśli szukasz lokalu wyróżniającego się wysokim standardem wykończenia, spójną estetyką oraz bardzo przyjemnym, jasnym charakterem wnętrz - ta oferta jest dla Ciebie! Układ i wnętrze: Przestronny połączony z kuchnią oraz aneksem jadalnym - doskonale doświetlony dzięki dwóm dużym oknom w zabudowie, wykonana z wysokiej jakości materiałów, o nowoczesnym i eleganckim designie. Ustawny salon, gustownie urządzony i wyposażony w wygodny, elegancki komplet wypoczynkowy Wyjście na pokaźny, idealny do aranżacji strefy relaksu na ciepłe dni - jasne, ustawne, z przeznaczeniem na sypialnię, gabinet lub pokój dziecięcy wykończona ze smakiem, z wysokiej jakości meblami, nowoczesną kabiną prysznicową oraz zabudowanym miejscem na pralkę Przestronny zapewniający komfort użytkowania Całość mieszkania. Wnętrze emanuje do codziennego życia oraz wypoczynku po pracy. Dodatkowe informacje: do mieszkania przynależy piwnica, co zwiększa łączną powierzchnię do ok. 54 m² i zapewnia dodatkową przestrzeń do przechowywania schludna, czysta i przestronna klatka schodowa miejsca parkingowe przed budynkiem administracyjne - niecałe 300zł/mies. - kocioł dwufunkcyjny Lokalizacja: Nieruchomość położona w doskonale skomunikowanej okolicy, z pełną infrastrukturą niezbędną do codziennego funkcjonowania: centrum handlowe Jagiellończycy sklepy, apteki, przychodnia przedszkole komunikacja miejska w bliskiej odległości Idealna propozycja dla osób poszukujących komfortowego, gotowego do zamieszkania mieszkania w atrakcyjnej lokalizacji. Zapraszam na prezentację!

Nowa Częstochowa Mościckiego | 2-pok. | M81
Nowa Częstochowa Mościckiego | 2-pok. | M81 ul. Mościckiego, Parkitka, Częstochówka-Parkitka, Częstochowa, śląskie
378 488 zł
8 802 zł za m²
2-pok 43 m² 4/5 p

2-pokojowe mieszkanie numer M81 na 4. piętrze w Inwestycji Nowa Częstochowa Mościckiego Dewelopera Nowa Deweloper Nowa Częstochowa Mościckiego - poznaj inwestycję

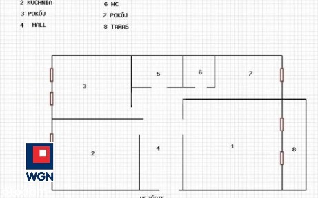
3 pokoje z tarasem na Parkitce.
3 pokoje z tarasem na Parkitce. Parkitka, Częstochówka-Parkitka, Częstochowa, śląskie
790 000 zł
10 395 zł za m²
3-pok 76 m² 2/5 p

Biuro Nieruchomości Sverum zaprasza do zakupu mieszkania typu M-4 (1 salon w aneksie kuchennym +2 pokoje ) o powierzchni 76,23m2 położonego na drugim piętrze w niskim bloku z 2022r z windą w dzielnicy Parkitka. LOKAL CAŁKOWICIE WYPOSAŻONY STANDARD WYKOŃCZENIA: Podłogi - gres,deska barlinecka Ściany - gładź gipsowa; Okna - PCV z wystawą wschód-południe Budynek: blok z 2023r Do lokalu przynależy: taras o pow.18m2 Zabezpieczenia: domofon, kamery. Ogrzewanie: CO miejskie Dostępne media: prąd, woda. Lokalizacja: Komunikację zapewniają: linie autobusowe miejskie Tereny rekreacyjne: plac zabaw, rower miejski, obiekty sportowe Punkty usługowe: Biedronka, Bankomat, Kaufland. Instytucje: Przedszkole, Przychodnia, Kościół, Centrum handlowe. Zapraszam na prezentację oraz po więcej informacji. Renata Kulisiewicz

Nowe, niskoczynszowe mieszkanie z ogrodem w Centrum!
Nowe, niskoczynszowe mieszkanie z ogrodem w Centrum! ul. Rozwojowa, Centrum / Śródmieście, Sosnowiec, śląskie
441 000 zł
10 023 zł za m²
3-pok 44 m²

Przedmiotem ogłoszenia jest mieszkanie 2-pokojowe o powierzchni prawie 45 m2 w ścisłym centrum miasta, przy ulicy Rozwojowej 14. Do mieszkania przynależy ogródek o powierzchni 140 m2 Mieszkanie jest niskoczynszowe oraz ekonomiczne w utrzymaniu.

M3 Wrzosowiak - 2 oddzielne balkony!
M3 Wrzosowiak - 2 oddzielne balkony! Wrzosowiak, Częstochowa, śląskie
329 000 zł
6 208 zł za m²
2-pok 53 m² 1/3 p

Ofertą sprzedaży jest przestronne, 2-pokojowe mieszkanie o powierzchni 53,24 m², zlokalizowane w spokojnej, dobrze skomunikowanej okolicy przy ul. Lipowej - dzielnica Wrzosowiak w Częstochowie Lokal stanowi pełną własność z założoną księgą wieczystą.

Kawalerka Tysiąclecie - wysoki parter!
Kawalerka Tysiąclecie - wysoki parter! Tysiąclecie, Częstochowa, śląskie
205 000 zł
8 913 zł za m²
1-pok 23 m²

Ofertą sprzedaży jest przytulna kawalerka o powierzchni 23 m², zlokalizowane w wieżowcu przy Armii Krajowej 66 - dzielnica Tysiąclecie w Częstochowie. Lokal stanowi spółdzielczo-własnościowe prawo do lokalu. Mieszkanie:

Mieszkanie gotowe do wprowadzenia
Mieszkanie gotowe do wprowadzenia Aleksandra Fredry, Nowa Sól, nowosolski, lubuskie
289 000 zł
9 323 zł za m²
1-pok 31 m² 3/4 p

Mam przyjemność zaprezentować Państwu wyjątkową ofertę sprzedaży pięknie wykończonej kawalerki, zlokalizowanej w Nowej Soli, na jednym z najbardziej cenionych i lubianych osiedli - Aleksandra Fredry. Nieruchomość o powierzchni użytkowej 31,80 m² położona jest na trzecim piętrze w bloku mieszkalnym. Mieszkanie wyróżnia się funkcjonalnym i bardzo przemyślanym układem oraz doskonałym doświetleniem, co zapewnia wysoki komfort codziennego użytkowania. - osobna, widna kuchnia, - osobna toaleta, - oddzielna łazienka, - przedpokój, - przestronny salon z wyjściem na duży balkon. Dodatkową przestrzeń do przechowywania jest Lokalizacja to jedna z najbardziej cenionych dzielnic Nowej Soli. Okolica oferuje pełną infrastrukturę miejską, a jednocześnie bliskość terenów zielonych i natury. W pobliżu znajdują się liczne punkty gastronomiczne, restauracje, galerie, punkty usługowe i medyczne, szpital, salony urody oraz wszystkie udogodnienia niezbędne do komfortowego życia. Dodatkowym atutem jest bliskość centrum miasta oraz szybki i wygodny dojazd do tras szybkiego ruchu, w tym drogi ekspresowej S3. - ogrzewanie oraz ciepła woda z sieci miejskiej, prąd, woda, kanalizacja, światłowód. - Mieszkanie dostępne od razu po podpisaniu aktu notarialnego. Nieruchomość idealna zarówno do zamieszkania, jak i jako doskonała inwestycja pod wynajem. Cena podlega negocjacji. Serdecznie zapraszam na bezpłatną prezentację mieszkania. Kontakt: Pośrednik w obrocie nieruchomościami Licencja nr 23721 ul. Wojska Polskiego 29/2

⚡Dwupokojowe mieszkanie⚡Świetna komunikacja⚡
⚡Dwupokojowe mieszkanie⚡Świetna komunikacja⚡ al. Aleja Niepodległości, Wrzosowiak, Częstochowa, śląskie
210 000 zł
4 884 zł za m²
2-pok 43 m² 10/10 p

PUNKT Nieruchomości ma przyjemność zaprezentować mieszkanie zlokalizowane przy Al. Niepodległości w dzielnicy Wrzosowiak. Dwa ustawne pokoje z ekspozycją okien na zachód. Powierzchnię mieszkania (43 m²) stanowią: • Salon, • Pokój / sypialnia, • Kuchnia, • Przedpokój, • Łazienka z WC. Zadbany budynek 10-cio piętrowy. Czyste części wspólne. wokół bloku. Stan prawny: Do mieszkania przynależy • Przystanek autobusowy: 250 m. • Przystanek tramwajowy: 250 m. Blisko budynku znajdują się przystanki komunikacji miejskiej, sklepy, supermarkety, szkoła, basen, stadion piłkarski oraz inne punkty handlowo-usługowe. Budynek znajduje się w dzielnicy Wrzosowiak w miejscu, które jest doskonale skomunikowane z Centrum miasta oraz DK46. *W ogłoszeniu znajdują się realne zdjęcia nieruchomości wykonywane przez fotografa - nie jest to wizualizacja. Pomagamy w uzyskaniu kredytu hipotecznego. Jeżeli zakup tego mieszkania wiąże się ze sprzedażą innej nieruchomości chętnie pomożemy przeprowadzić Państwa przez obie transa

Mieszkanie 58m2 + 2 miejsca garażowe + miejsce naziemne
Mieszkanie 58m2 + 2 miejsca garażowe + miejsce naziemne ul. Bardowskiego, Ostatni Grosz, Częstochowa, śląskie
680 000 zł
11 724 zł za m²
3-pok 58 m²

Sprzedam mieszkanie 58m2 + 2 miejsca garażowe + miejsce naziemne. Mieszkanie składa się z salonu, kuchni, łazienki i dwóch pokoi. Wyposażenie: Kuchnia:

Otwórz mapę Mapa