157 obiektów
Объект PL-1314365347 не найден. Возможно, он удалён по истечению срока давности, либо находится в процессе публикации.
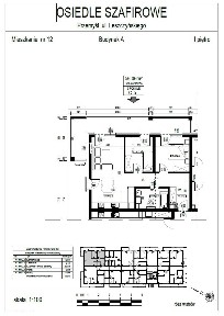
Osiedle "SZAFIROWE" w Przemyślu- ZAPRASZAMY! Szanowni Państwo, z przyjemnością informujemy iż od 18.12.2025 r. rozpoczynamy rezerwacje lokali w Budynku A inwestycji OSIEDLE SZAFIROWE. Planowane zakończenie prac budowlanych nastąpi w czerwcu 2027 r.
Green Estate - Nowoczesne osiedle z gotowymi mieszkaniami w Przemyślu Nowe mieszkanie 42,27 m² z balkonem - dostępne od ręki! Na sprzedaż oferujemy nowe, gotowe do odbioru mieszkanie o powierzchni 42,27 m², położone na III piętrze nowoczesnego budynku mieszkalnego. Do mieszkania przynależy komórka lokatorska o pow. 3,87 m2 położona na poziomie -1 cena komórki 20 tys. zł. Lokal został już oddany do użytkowania i jest dostępny od zaraz - bez konieczności oczekiwania na zakończenie budowy. Rozkład pomieszczeń: Mieszkanie znajduje się w nowej inwestycji, wykonanej z wysokiej jakości materiałów, z nowoczesną architekturą i przemyślanym układem pomieszczeń. - co pozwala na indywidualną aranżację według własnych potrzeb i preferencji. Atuty nieruchomości: To mieszkanie łączy w sobie przestrzeń, funkcjonalność i komfort. Dzięki narożnemu układowi i dużym przeszkleniom, wnętrze jest pełne naturalnego światła przez cały dzień. Mieszkanie znajduje się w nowo oddanym budynku na osiedlu Green Estate - z windą, garażem podziemnym, zamkniętym terenem oraz zieloną, przyjazną przestrzenią wspólną. to nowa inwestycja mieszkaniowa w Przemyślu, składająca się z 6 nowoczesnych, czteropiętrowych budynków. Osiedle zostało, co oznacza, że możesz odebrać klucze niemal od razu - bez czekania na zakończenie budowy. Lokale są dostępne w stanie deweloperskim, co daje przyszłym właścicielom możliwość wykończenia wnętrz według własnego gustu i potrzeb. To idealne rozwiązanie dla osób, które chcą stworzyć przestrzeń w pełni dopasowaną do siebie, ale nie chcą czekać wielu miesięcy na zakończenie budowy. Dostępne są mieszkania o metrażach od, zróżnicowane pod względem układu - od kompaktowych kawalerek, po przestronne, rodzinne mieszkania. Lokale na parterze posiadają, natomiast te na wyższych piętrach wyposażone są w. · Każdy budynek wyposażony jest w nowoczesną. · Do dyspozycji mieszkańców są (cena 40 tys. zł) oraz (cena 20 tys. zł) ·, z wjazdem zabezpieczonym, co zwiększa poczucie prywatności i bezpieczeństwa. Teren osiedla został starannie zaprojektowany z myślą o komforcie mieszkańców. Znajduje się tu: · dla dzieci, · do odpoczynku, ·, obsadzone kwiatami, krzewami i drzewami. To miejsce sprzyjające relaksowi, spacerom i spędzaniu czasu na świeżym powietrzu. Green Estate to propozycja idealna dla: ·, szukających nowoczesnego mieszkania w dobrej lokalizacji, ·, które potrzebują więcej przestrzeni i bezpiecznego otoczenia, ·, ceniących windę, spokój i łatwy dostęp do zieleni, ·, którzy chcą kupić gotowe mieszkanie pod wynajem - bez opóźnień i ryzyka związanego z trwającą budową. Oferujemy pomoc w skredytowaniu zakupu mieszkania - współpracujemy z wieloma bankami i dysponujemy szeroką ofertą kredytów hipotecznych. Nasi doradcy pomogą Ci dobrać najlepsze warunki finansowania, dopasowane do Twojej sytuacji i możliwości - szybko, bezpiecznie i bez stresu. · · · · · Brak prowizji - kupujący nie ponosi kosztów pośrednictwa biura nieruchomości 0% podatku PCC - wszystkie mieszkania są z rynku pierwotnego, dzięki czemu nie płacisz 2% podatku od czynności cywilnoprawnych Pełna obsługa transakcji - od prezentacji mieszkania, przez formalności, aż po przekazanie kluczy Pomoc w uzyskaniu kredytu hipotecznego - oferujemy szeroką ofertę kredytów z wielu banków oraz wsparcie doświadczonych doradców 3J-15 Oferta wysłana z programu dla biur nieruchomości ASARI CRM ()
Ciepłe mieszkania na niskim parterze. Spokojna lokalizacja a zarazem centrum miasta. Czynsz w okresie grzewczym około 500zł. Telefon grzecznościowy.
Oferujemy do sprzedania apartament na piątym piętrze apartamentowca wybudowanego w 2019 roku przy ulicy Podgórnej (obok PUM i Książnicy). Na powierzchnię 59,21m2 składa się salon z aneksem kuchennym 21,76m2, dwie sypialnie 12,22 oraz 8m2, łazienka z WC 4,7m2 oraz przedpokój. Z salonu wyjście na balkon. Mieszkanie wykończone i umeblowane, gotowe do zamieszkania.
Przemyśl ulica Aleksandra Dworskiego 56,68m² trzema pokojami, piwnica, drugie piętro. Mieszkanie położone w centurm Przemyśla, niska cena. Mieszknie wyposażone jest w wodę, prąd oraz centralne ogrzewanie miejskie. Mieszkanie wymaga remontu co daje możliwości aranżacyjne - idealne dla osób, które chcą stworzyć wnętrze według własnego projektu. Dużym atutem nieruchomości jest jego położenie w centrum, przedszkola, szkoła, liceum i urzędy a zarazem dworzec PKP
Przestronne mieszkanie z tarasem | 95 m² | idealne również pod działalność | NiebuszewoBiuro nieruchomości prezentuje ofertę sprzedaży komfortowego, czteropokojowego mieszkania o powierzchni 95 m², zlokalizowanego na wysokim parterze niskiego, czteropiętrowego budynku z lat 80., w zielonej i spokojnej części osiedla Książąt Pomorskich.Nieruchomość po kompleksowej modernizacji, w wyniku której powstał, umożliwiający zarówno wygodne zamieszkanie, jak i prowadzenie działalności.Rozkład pomieszczeń: Standard wykończenia: Potencjał inwestycyjny / działalność:Dzięki, dużemu metrażowi, oddzielnym pomieszczeniom oraz dostępowi do, mieszkanie, takiej jak: Spokojna okolica, bliskość infrastruktury osiedlowej oraz dobra komunikacja czynią to miejsce.Lokalizacja:Cicha, zielona część miasta z bardzo dobrą infrastrukturą: szkoła, przedszkole, Orlik, sklepy osiedlowe, dyskonty, punkty usługowe oraz dogodna komunikacja miejska.Informacje dodatkowe: Stan prawny: Zapraszamy do kontaktu oraz na prezentację nieruchomości.
Zapraszam do zakupu mieszkania położonego w ścisłym centrum miasta przy ul. Smolki 24. Mieszkanie jest do kapitalnego remontu wg. własnego pomysłu i własnej aranżacji.
Sprzedam mieszkanie po generalnym remoncie : 38 m2 na oś Kmiecie Wyb.Ojca Św. JP II na 4 pietrze z piwnicą. Bardzo ładna lokalizacja, piękny widok na San, zieleń, stok. Blisko sklepy, przychodnia, apteka, przedszkola, szkoła, autobus, kościół. Nie jest w ciasnej zabudowie blokowiska. Posiada miejsca parkingowe. Sprzęt kuchenny jest nowy, nowa pakowna szafa w przedpokoju. Meble w salonie są używane, mogą zostać lub być usunięte.
| Na sprzedaż przestronne, 2-pokojowe mieszkanie z garderobą, położone przy ul. Krawieckiej, w samym sercu Wrocławia. To doskonała propozycja zarówno do zamieszkania, jak i jako inwestycja pod wynajem. Lokalizacja należy do najbardziej prestiżowych w mieście - zaledwie kilka kroków dzieli mieszkanie od Placu Dominikańskiego, 300 metrów od wrocławskiego Rynku oraz 600 metrów od Ostrowa Tumskiego. Mimo położenia w ścisłym centrum, okolica oferuje również miejsca do relaksu, takie jak Promenada Staromiejska czy bulwar Xawerego Dunikowskiego.Mieszkanie znajduje się w nowoczesnym, kameralnym i eleganckim budynku ukrytym w zacisznym podwórzu. Obiekt wyposażony jest w recepcję, monitoring oraz ochronę, a także parking podziemny. Sam apartament został funkcjonalnie zaprojektowany i starannie wykończony, dzięki czemu jest gotowy do natychmiastowego wprowadzenia. Składa się ze słonecznego salonu z aneksem kuchennym, jasnej sypialni, przestronnej garderoby oraz łazienki. Położony jest na piątym piętrze budynku z windą. Ogrzewanie i ciepła woda pochodzą z sieci miejskiej. Do mieszkania przynależy również miejsce postojowe w garażu podziemnym w cenie 70 tys.zł. Gorąco zapraszam do kontaktu, Iglica Nieruchomości, Marta tel.
Przemyśl ulica Aleksandra Dworskiego 46,17m² z trzema pokojami, piwnica, pierwsze piętro. Mieszkanie położone w centurm Przemyśla, niska cena. Mieszknie wyposażone jest w wodę, prąd oraz centralne ogrzewanie miejskie. Mieszkanie wymaga remontu co daje możliwości aranżacyjne - idealne dla osób, które chcą stworzyć wnętrze według własnego projektu. Dużym atutem mieszkania jest jego położenie w centrum, przedszkola, szkoła, liceum i urzędy a zarazem dworzec PKP
Na sprzedaż oferuję 11 mieszkań o zróżnicowanych metrażach, zlokalizowanych w wyjątkowej kamienicy w sercu klimatycznego Szczecina. Budynek znajduje się w bezpośrednim sąsiedztwie Zamku Książąt Pomorskich, Starego Miasta oraz licznych atrakcji kulturalnych i usługowych. Mieszkania świetnie sprawdzą się zarówno do zamieszkania, jak i jako lokale usługowe - idealne pod biura, gabinety.
Na sprzedaż oferujemy nowoczesne mieszkanie o powierzchni 52,02 m², położone na czwartym piętrze budynku przy ul. Goszczyńskiego w Przemyślu. To doskonała propozycja dla osób, które cenią wygodę, elegancki wystrój i dogodny dostęp do miejskiej infrastruktury. Układ mieszkania prezentuje się następująco: jasny, przestronny salon z aneksem kuchennym i wyjściem na balkon, dwie ustawne sypialnie, które można zaaranżować jako pokoje dziecięce lub gabinet, komfortowa łazienka, funkcjonalny przedpokój, balkon z widokiem na zieleń, zabudowę osiedlową oraz plac zabaw. Mieszkanie zostało zaprojektowane i wykończone z dużą dbałością o detale. Jasne kolory i duże przeszklenia sprawiają, że wnętrze jest pełne światła i przestrzeni, a wysokiej jakości materiały gwarantują trwałość oraz elegancki charakter pomieszczeń. To propozycja gotowa do zamieszkania - bez konieczności ponoszenia dodatkowych nakładów. Do lokalu przynależy komórka lokatorska dodatkowo płatna, która idealnie sprawdzi się jako dodatkowe miejsce do przechowywania. Dla przyszłego właściciela istnieje również możliwość zakupu miejsca postojowego w garażu podziemnym w cenie 50 000 zł. Atutem nieruchomości jest także położenie - okolica cicha i bezpieczna, jednocześnie zapewniająca łatwy dostęp do wszystkiego, co potrzebne na co dzień. W zasięgu krótkiego spaceru znajdują się placówki edukacyjne, przychodnia, sklepy oraz różnego rodzaju punkty usługowe. To mieszkanie spełni oczekiwania zarówno rodzin z dziećmi, jak i osób poszukujących wygodnego lokum w mieście. Dzięki połączeniu funkcjonalności, wysokiego standardu wykończenia oraz atrakcyjnej lokalizacji, stanowi wyjątkową ofertę na lokalnym rynku nieruchomości. Cena ofertowa: 572 220 zł (11 000 zł/m²) Cena miejsca postojowego: 50 000 zł Oferta wysłana z programu dla biur nieruchomości ASARI CRM ()
Prezentujemy Państwu ofertę sprzedaży wyjątkowego obszernego mieszkania z pięknym widokiem na panoramę miasta znajdującego się w jednej z najlepszych lokalizacji w Przemyślu na os. Kmiecie. Mieszkanie posiada powierzchnię 87 m2 i jest bardzo przestrzenne. Dzięki temu, że jest położone na IV piętrze, to z balkonu rozpościera się szeroka panorama w kierunku śródmieścia. Mieszkanie jest zadbane i odremontowane w stylu klasycznym, ze zdobieniami na ścianach i sufitach, jak również z odnowionym parkietem. Pomieszczenia są jasne i przestronne, każde z osobnym wejściem z przedpokoju. Taki rodzaj mieszkania to idealna opcja dla rodziny, która szuka większej przestrzeni, a każdy z domowników znajdzie dla siebie trochę prywatności. Ponadto jest to jedna z najlepszych lokalizacji w mieście z dala od miejskiego zgiełku, a jednak na dobrze zagospodarowanym osiedlu i z dostępem do terenów rekreacyjnych nad rzeką San. W sąsiedztwie znajdziemy szkołę, przedszkole, sklepy spożywcze, apteki, przychodnie lekarskie, lokale usługowe i wiele innych udogodnień. Układ mieszkania jest bardzo funkcjonalny i znajdują się w nim następujące pomieszczenia: - duży pokój typu salon z wyjściem na obszerny zabudowany balkon, - 3 sypialnie, - łazienka, - osobne WC, - kuchnia z meblami na wymiar, - przedpokój w którym znajduje się duża garderobiana szafa na wymiar. Do mieszkania przynależna jest również piwnica. Mieszkanie jest w bardzo dobrym stanie technicznym, nadaje się do zamieszkania bez dużych nakładów finansowych. Ogrzewanie oraz ciepła woda z miejskiej sieci MPEC, gaz do kuchenki gazowej. Mieszkanie nie posiada piecyka gazowego co zwiększa bezpieczeństwo użytkowania. Stan prawny mieszkania to spółdzielcze własnościowe prawo do lokalu. Polecamy szczególnie dla osób, które lubią duże przestrzenie i wygodę ze względu na korzystne położenie. Zainteresowanych zapraszam do kontaktu i umówienia się na oględziny nieruchomości. Osobom chcącym dokonać zakupu poprzez kredyt hipoteczny służymy pomocą doświadczonego doradcy hipotecznego. Przy zakupie nieruchomości należy uwzględnić koszty notarialne oraz wynagrodzenie biura nieruchomości Opis oferty zawarty na stronie internetowej sporządzany jest na podstawie oględzin nieruchomości i informacji uzyskanych od Właściciela, może podlegać aktualizacji i nie stanowi oferty określonej w art. 66 i następnych K.C. Oferta wysłana z programu dla biur nieruchomości ASARI CRM ()
Prezentujemy Państwu ofertę sprzedaży lokalu mieszkalnego położonego w Przemyślu przy ul. Glazera. Mieszkanie znajduje się w ocieplonym bloku z pustaka na I piętrze i posiada 27,40 m2, piwnica 1,80 m2. Mieszkanie to kompaktowe lokum dla jednej osoby lub pary na życiowy start. Mieszkanie jest w stanie technicznym do generalnego remontu, jednak kupując taką nieruchomość nabywamy nie tylko miejsce do zamieszkania, ale również inwestycję, która może zwrócić się w przyszłości. Po remoncie mieszkanie może być idealną propozycją do wynajmu. Osiedle Glazera to jedna z bardziej atrakcyjnych lokalizacji w Przemyślu, położone jest w dzielnicy Zasanie, niedaleko centrum, na płaskim terenie, w sąsiedztwie znajdują się sklepy, lokale usługowe i przystanki autobusowe. Mieszkanie posiada następujące pomieszczenia: - pokój, - aneks kuchenny oddzielony oknem, - łazienka, - przedpokój. Niskie koszty utrzymania sprawiają że jest to budżetowe lokum da osób szukających niedrogiej nieruchomości. Blokiem administruje Przemyska Spółdzielnia Mieszkaniowa, ogrzewanie z miejskiej sieci MPEC, ciepła woda z piecyka gazowego. Zapraszam do kontaktu osoby zainteresowane. Osobom chcącym dokonać zakupu poprzez kredyt hipoteczny służymy pomocą doświadczonego doradcy hipotecznego. Przy zakupie nieruchomości należy uwzględnić koszty notarialne oraz wynagrodzenie biura nieruchomości Opis oferty zawarty na stronie internetowej sporządzany jest na podstawie oględzin nieruchomości i informacji uzyskanych od Właściciela, może podlegać aktualizacji i nie stanowi oferty określonej w art. 66 i następnych K.C. Oferta wysłana z programu dla biur nieruchomości ASARI CRM ()
Prezentujemy Państwu ofertę sprzedaży mieszkania zlokalizowanego na I piętrze w bloku przy ul. Wieniawskiego w Przemyślu. Mieszkanie posiada powierzchnię 62,80 m2 i jest przestrzenne z nietypowym układem pomieszczeń. Osiedle Wieniawskiego znajduje się na os. Kmiecie w bardzo korzystnej lokalizacji, niedaleko znajduje się wiele punktów użyteczności publicznej, jak również tereny rekreacyjne, deptak spacerowy nad Sanem, plac zabaw dla dzieci, plaża, szkoła podstawowe, przedszkole i wiele innych. Osiedle jest bardzo dobrze zorganizowane, większość sklepów i punktów usługowych znajduje się na miejscu. Jest to okolica dobra do zamieszkania zarówno dla rodzin z dziećmi jak i dla osób lubiących przestrzeń do spacerów i odpoczynku. Mieszkanie posiada następujący układ pomieszczeń: - większy pokój z wyjściem na duży zabudowany balkon typu logia, - mniejszy pokój typu sypialnia, - kuchnia połączona z salonem i jadalnią, mozna również przywrócić uklad pierwotny i uzyskać trzeci pokój i osobną kuchnię, - łazienka, - osobne WC, - przedpokój. Do mieszkania przynależna jest spora piwnica o powierzchni 7,58 m2. Mieszkanie ogrzewane jest z miejskiej sieci MPEC, ciepła woda również jest z sieci miejskiej co oznacza, że w mieszkaniu nie ma piecyka gazowego. Opłaty stałe do Spółdzielni Mieszkaniowej związane z utrzymaniem mieszkania wynoszą 863 zł, dodatkowo należy doliczyć opłaty za wodę i śmieci. Mieszkanie wymaga odświeżenia, jednak posiada duży potencjał do urządzenia go w nowoczesnym stylu z otwartą przestrzenią. Zapraszam do kontaktu osoby zainteresowane. Osobom chcącym dokonać zakupu poprzez kredyt hipoteczny służymy pomocą doświadczonego doradcy hipotecznego. Przy zakupie nieruchomości należy uwzględnić koszty notarialne oraz wynagrodzenie biura nieruchomości. Opis oferty zawarty na stronie internetowej sporządzany jest na podstawie oględzin nieruchomości i informacji uzyskanych od Właściciela, może podlegać aktualizacji i nie stanowi oferty określonej w art. 66 i następnych K.C. Oferta wysłana z programu dla biur nieruchomości ASARI CRM ()
Na sprzedaż mieszkanie 60 m² - Przemyśl, ul. Lwowska - świetna lokalizacja! Oferuję przestronne i funkcjonalne mieszkanie o powierzchni 60 m², położone na 2. piętrze w 4-piętrowym bloku, w jednej z najbardziej pożądanych lokalizacji w Przemyślu - przy ul. Lwowskiej.
Na sprzedaż - 8 mieszkań o zróżnicowanej powierzchni W ofercie znajduje się 8 wyjątkowych mieszkań w pięknej, klimatycznej kamienicy, położonej tuż obok Zamku Książąt Pomorskich, w samym sercu Starego Miasta w Szczecinie.
Na sprzedaż funkcjonalne, trzypokojowe mieszkanie o powierzchni 46,5 m², położone na czwartym piętrze niskiego bloku w samym sercu Starego Miasta w Szczecinie. Nieruchomość znajduje się przy ul. Sołtysiej, bezpośrednio vis-à-vis Katedry - jednej z najbardziej rozpoznawalnych i prestiżowych lokalizacji w mieście. Okna PCV, niski czynsz Idealne pod Inwestycje. Najważniejsze atuty mieszkania: Mieszkanie zostało przygotowane do prac remontowych co pozwala na przystąpienie do remontu od razu po zakupie. Lokalizacja stanowi ogromną wartość tej oferty. Stare Miasto to nie tylko wyjątkowy klimat historycznej zabudowy, ale również pełna infrastruktura: restauracje, kawiarnie, bulwary, komunikacja miejska, uczelnie oraz centra usługowe. To idealne miejsce zarówno dla osób poszukujących mieszkania do zamieszkania, jak i inwestorów. Nieruchomość dostępna od zaraz. Bezpłatna pomoc w uzyskaniu kredycie hipotecznego Oferujemy bezpłatne wsparcie w uzyskaniu kredytu hipotecznego na każdy rodzaj nieruchomości. Nasi eksperci sprawdzą Państwa zdolność kredytową, przedstawią dostępne opcje oraz załatwią wszystkie formalności bez żadnych opłat. Współpracujemy ze wszystkimi komercyjnymi bankami w Polsce, dobierając finansowanie na najkorzystniejszych warunkach. Oferta wysłana z programu dla biur nieruchomości ASARI CRM ()
Przedstawiamy Państwu ofertę sprzedaży mieszkania znajdującego się w ścisłym centrum Przemyśla przy ul. Dworskiego. Mieszkanie usytuowane jest na I piętrze kamienicy z wejściem od klatki schodowej. W mieszkaniu został zachowany styl kamieniczny z wysokimi sufitami oraz piecami kaflowymi, mimo że ogrzewanie jest już centralne z miejskiej sieci MPEC. Jest to propozycja głównie dla osób poszukujących lokum w centrum, gdzie znajduje się większość przydatnych miejsc potrzebnych do codziennego życia. W niedalekiej odległości znajdziemy sklepy, szkoły, przedszkola, dworzec PKP, rynek miejski z deptakiem spacerowym i zabytkową starówką, markety spożywcze i firmy handlowo-usługowe. Mieszkanie ze względu na swoje korzystne położenie mogłoby również stanowić inwestycję pod wynajem długo lub krótkoterminowy. Mieszkanie posiada powierzchnię 57,70 m2 i składa się z następujących pomieszczeń: - kuchnia z oknem, - 2 większe pokoje, jeden z nich posiada wyjście na balkon, - łazienka, - część korytarza. Mieszkanie posiada również piwnicę o pow. 16,33 m2. Ogrzewanie mieszkania oraz ciepła woda z miejskiej sieci MPEC, co jest wygodne pod kątem użytkowania. Opłaty do Wspólnoty Mieszkaniowej w wysokości 340,43 zł. Pozostałe media według zużycia. Mieszkanie posiada swój charakterystyczny styl z zachowanymi parkietami, jest zaciszne i przytulne. Można dokonać w nim kilku udogodnień i po zmianach może stać się dla kogoś wygodnym lokum do zamieszkania. Ulica Dworskiego jest jedną z zabytkowych ulic miasta, na której znajdują się ciekawe kamienice ze swoistym klimatem. Kamienica, w której znajduje się mieszkanie jest cofnięta od drogi głównej, znajduje się w drugim rzędzie zabudowań, co sprawia, że jest to miejsce bardziej ciche i spokojniejsze. Zapraszam do kontaktu. Osobom chcącym dokonać zakupu poprzez kredyt hipoteczny służymy pomocą doświadczonego doradcy hipotecznego. Opis oferty zawarty na stronie internetowej sporządzany jest na podstawie oględzin nieruchomości i informacji uzyskanych od Właściciela, może podlegać aktualizacji i nie stanowi oferty określonej w art. 66 i następnych K.C. Oferta wysłana z programu dla biur nieruchomości ASARI CRM ()
Oferta dla osób szukających gotowego lokum do zamieszkania bez dodatkowych nakładów finansowych. Prezentujemy Państwu nieruchomość, która nie tylko spełni wymogi klienta poszukującego mieszkania ładnego, jasnego, po generalnym remoncie z urządzoną i wyposażoną nową kuchnią, ale również takiego, który ceni spokój, zieloną okolicę i piękne widoki. Mieszkanie, które jest przedmiotem sprzedaży znajduje się na osiedlu Rycerskim w Przemyślu, w niskim ocieplonym bloku na III piętrze (mieszkanie ciepłe, środkowe). Jest to doskonałe mieszkanie na start dla pary lub rodziny ze względu na typowy metraż jaki wielu kupujących rozważa przy pierwszym zakupie. Dodatkowe atuty takie jak widok z balkonu oraz dostęp do sklepu spożywczego, apteki, komunikacji i terenów zielonych - to ważne udogodnienia dla codziennego komfortu. Utrzymanie mieszkania nie jest drogie, koszty miesięczne do Spółdzielni mieszkaniowej wynoszą około 800 zł, a w nich zawarte jest ogrzewanie. W mieszkaniu nie ma piecyka gazowego, zarówno ogrzewanie oraz ciepła woda jest z sieci MPEC. Dzięki temu, że mieszkanie jest środkowe, jest ciepłe i ekonomiczne w użytkowaniu. Stan prawny nieruchomości to spółdzielcze własnościowe prawo do lokalu. Zapraszam do kontaktu osoby poszukujące przytulnego mieszkania dla własnych celów jak również inwestorów, którzy myślą o wynajmie długo lub krótkoterminowym. Osobom chcącym dokonać zakupu poprzez kredyt hipoteczny służymy pomocą doświadczonego doradcy hipotecznego. Przy zakupie nieruchomości należy uwzględnić koszty notarialne oraz wynagrodzenie biura nieruchomości Opis oferty zawarty na stronie internetowej sporządzany jest na podstawie oględzin nieruchomości i informacji uzyskanych od Właściciela, może podlegać aktualizacji i nie stanowi oferty określonej w art. 66 i następnych K.C. Oferta wysłana z programu dla biur nieruchomości ASARI CRM ()