40 obiektów

Nowoczesne mieszkanie 2-pokojowe w Zaczerniu!
Nowoczesne mieszkanie 2-pokojowe w Zaczerniu! Zaczernie, Trzebownisko, rzeszowski, podkarpackie
648 379 zł
12 968 zł za m²
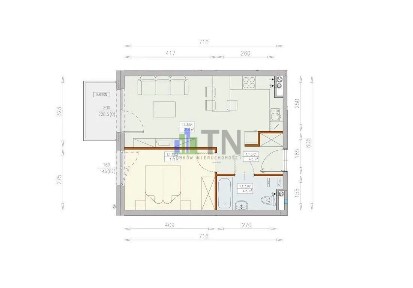
2-pok 50 m² 2/3 p

Biuro nieruchomości Royal broker oferuję przestronne i nowoczesne mieszkanie o powierzchni 50,62 m², zlokalizowane w spokojnej i dynamicznie rozwijającej się miejscowości Zaczernie, tuż przy granicy z Rzeszowem, zjazd bezpośrednio z ul. Warszawskiej. To idealna propozycja dla osób ceniących komfort, bezpieczeństwo oraz funkcjonalność. Dostępne mieszkania w metrażach od 37,76m2 do 65,68m2. KUPUJĄCY ZWOLNIONY Z PODATKU PCC I PROWIZJI! Układ i wyposażenie mieszkania Mieszkanie składa się z: Mieszkanie położone jest w nowoczesnym budynku o wysokim standardzie wykończenia, z dostępem do wielu udogodnień. Przynależności Udogodnienia dla mieszkańców Nowoczesny standard i technologia Mieszkanie wyposażone jest w innowacyjny system zdalnego zarządzania, który umożliwia: To świetna propozycja dla osób, które chcą mieszkać nowocześnie i wygodnie, z dostępem do inteligentnych rozwiązań i pełnej infrastruktury bezpieczeństwa. Cena prezentowanego mieszkania: 648 379.94 zł Zapraszam do kontaktu! Olga Fryzeł

Okazja | Nowe Budownictwo!
Okazja | Nowe Budownictwo! Księże, Krzyki, Wrocław, dolnośląskie
599 000 zł
14 262 zł za m²
2-pok 42 m² 1/3 p

OKAZJA! ŚWIETNA LOKALIZACJA! NOWE BUDOWNICTWO! Gorąco polecam mieszkanie dwu pokojowe położone we Wrocławiu przy ul. Blizanowickiej. Mieszkanie o pow 42,05 mkw składa się z: - salonu z aneksem kuchennym z wyjściem na duży balkon, - sypialni, - przedpokoju, - łazienki. Do mieszkania przynależy miejsce postojowe w cenie 40 tyś zł. Czynsz około 437zł. Ogrzewanie miejskie. Na podłogach panele oraz kafle. Łazienka zrobiona na gotowo! W mieszkaniu zamontowany W ramach usługi pośrednictwa dla naszych klientów oferujemy kompleksowe doradztwo finansowe, pomagamy w procesie pozyskania kredytu na zakup nieruchomości. Zdajemy sobie doskonale sprawę, że decyzje odnośnie wyboru korzystnej oferty bankowej oraz formalności związane z uzyskaniem kredytu często stanowią dużą uciążliwość dla klientów. Pośrednik odpowiedzialny zawodowo Ewa Tomkow licencja 5920 Gorąco polecam Patryk Tomków

2 Pokoje | Duża Loggia | Gotowe DO Zamieszkania
2 Pokoje | Duża Loggia | Gotowe DO Zamieszkania ul. Staroniwska, Kielanówka, Boguchwała, rzeszowski, podkarpackie
590 000 zł
12 041 zł za m²
2-pok 49 m²

Na sprzedaż 2 pokojowe mieszkanie przy ul. Staroniwskiej w Rzeszowie. Mieszkanie o powierzchni 49 m2, usytuowane jest na parterze w bloku z 2014r. W jego skład wchodzą: salon z aneksem kuchennym, sypialnia, łazienka, WC oraz przedpokój. Do mieszkania przynależy duża loggia. Najważniejsze informacje: - mieszkanie w pełni umeblowane oraz wyposażone w sprzęt AGD, - wysoki parter, - duża loggia, - miejsca postojowe ogólnodostępne dla mieszkańców, - duża komórka lokatorska w cenie, - możliwość wydzielenia osobnej kuchni, - niskie koszty utrzymania, czynsz: 410 zł Serdecznie zapraszam na prezentację oraz do kontaktu telefonicznego aby dowiedzieć się więcej. Doradca ds. Nieruchomości Angelika Ślęczka Tel:

Mieszkanie dwustronne 2 pokoje
Mieszkanie dwustronne 2 pokoje Kielanówka, Boguchwała, rzeszowski, podkarpackie
660 000 zł
12 000 zł za m²
2-pok 55 m² 1/2 p

Biuro nieruchomości Eagles Estate prezentuje Państwu 2-pokojowe mieszkanie o powierzchni 55m2, usytuowane na 1 piętrze w 2 piętrowym niskim bloku. Wybudowany w 2010 roku. Nieruchomość zlokalizowana jest w Kielanówce. Mieszkanie znajduje się w niedalekiej odległości od kluczowych punktów usługowo-handlowych. - Salon - Sypialnia -Kuchnia - Łazienka z toaletą -Przedpokój -Loggia -Piwnica -mieszkanie dwustronne - dostępność punktów usługo - handlowych -bliskość terenów zielonych Osiedle łącząca wygodę życia w mieście z bliskością terenów zielonych. W okolicy znajdują się liczne punkty handlowo-usługowe, m.in.: -Przychodnia -Apteka -Bank -sklepy spożywcze -przystanek autobusowy -szkoła Mieszkanie sprawdzi się także jako inwestycja, jest gotowe do zamieszkania i w pełni umeblowane. Po więcej informacji zapraszam do kontaktu. Na rynku wtórnym pobieramy wynagrodzenie z tytułu usługi pośrednictwa w sprzedaży/zakupie nieruchomości. Zapraszamy do kontaktu oraz prezentacji nieruchomości. Niniejsze ogłoszenie nie stanowi oferty handlowej w rozumieniu art. 66 §1 Kodeksu Cywilnego oraz innych właściwych przepisów prawnych, a dane w nim zawarte mają jedynie charakter informacyjny. Jeśli są Państwo zainteresowani finansowaniem zakupu nieruchomości, z przyjemnością informujemy, że dzięki naszemu działowi finansowemu mają Państwo możliwość uzyskania kredytu w jednym miejscu, z pełną obsługą na każdym etapie. Oferta wysłana z programu dla biur nieruchomości ASARI CRM ()

Dwa mieszkania w centrum miasta
Dwa mieszkania w centrum miasta ul. Fabryczna, Sędziszów Małopolski, ropczycko-sędziszowski, podkarpackie
449 000 zł
10 442 zł za m²
2-pok 43 m² 1/2 p

Na sprzedaż: GOTOWIEC INWESTYCYJNY - dwa niezależne mieszkania z oddzielnymi wejściami z korytarza budynku | Centrum | ul. Fabryczna | Piwnica | Obok PKP

os. Przylesie, 2 pokojowe z garażem, balkon, winda
os. Przylesie, 2 pokojowe z garażem, balkon, winda Stare Miasto, Opole, opolskie
480 000 zł
10 909 zł za m²
2-pok 44 m² 4/4 p

Do sprzedania mieszkanie położone na czwartym piętrze (z windą) jednego z budynków znajdujących się w Opolu na osiedlu Przylesie. Mieszkanie składa się z salonu z aneksem kuchennym, sypialni, łazienki, przedpokoju, balkonu; do ceny mieszkania należy doliczyć 30 tys. zł za miejsce postojowe w garażu podziemnym.

Loft Rzeszów 2 pokojowe, mały metraż
Loft Rzeszów 2 pokojowe, mały metraż ul. Lwowska, Krasne, rzeszowski, podkarpackie
373 500 zł
9 338 zł za m²
2-pok 40 m² 4/6 p

LOFT Rzeszów - poznaj inwestycję OSIEDLE LOFT Rzeszów - BUDYNEK E Realizujemy wyjątkowe osiedle poszukując tym samym nowych sposobów modelowania przestrzeni, charakteryzującej się wysoką jakością i walorami estetycznymi, potrzebą ochrony środowiska, rozwijania i wdrażania w budownictwie oraz w architekturze technologii i materiałów przyjaznych człowiekowi. Jesteśmy przekonani, że nasze pionierskie rozwiązania mają istotny wkład w kształtowanie rodzimej kultury architektonicznej.

Salon z kuchnią 28m2, ogródek 118m2, m.p. w cenie
Salon z kuchnią 28m2, ogródek 118m2, m.p. w cenie Kielanówka, Boguchwała, rzeszowski, podkarpackie
475 950 zł
9 519 zł za m²
2-pok 50 m²

2-POKOJOWE MIESZKANIE z ogródkiem w świetnej cenie - mieszkanie już oddane do użytkowania. Wygodna strefa dzienna. OPIS NIERUCHOMOŚCI: - pow. mieszkania: 50,10m2 - OGRÓDEK o pow. 118,95m2 - ilość pokoi: 2 - salon z kuchnią ok. 28m2 - piętro: parter z 1 - ekspozycja: wschód - zachód (od strony ogródka) - do mieszkania przynależy 1 miejsce postojowe W CENIE (jest duże i można zaparkować na nim 2 autami) - OGRZEWANIE gazowe (podłogówka) - pomieszczenie gospodarcze w mieszkaniu 0,70m2

Zielona Niwa Nowa Inwestycja Przytulne 2 pokoje!
Zielona Niwa Nowa Inwestycja Przytulne 2 pokoje! ul. Tadeusza Kościuszki, Głogów Małopolski, rzeszowski, podkarpackie
430 000 zł
9 348 zł za m²
2-pok 46 m²

„Osiedle Zielona Niwa” - DOMEX Rzeszów Głogów Małopolski, Osiedle Niwa Kupujący zwolniony z podatku PCC 2%

Dwupokojowe mieszkanie w centrum Dynowa.
Dwupokojowe mieszkanie w centrum Dynowa. ul. Handlowa, Dynów, rzeszowski, podkarpackie
285 000 zł
6 333 zł za m²
2-pok 45 m²

Mieszkanie o pow. 45,67m2 położone na parterze 2 - piętrowego budynku po termomodernizacji, 2- pokojowe z przynależną piwnicą, z miejscami parkingowymi dla mieszkańców bloku. Układ: przedpokój, łazienka, kuchnia, pokój, sypialnia, okna z widokiem na podwórze.

Klucze czekają! Cesja! blisko tramwaj*natura 2000*Sady Nad Zieloną*ENG
Klucze czekają! Cesja! blisko tramwaj*natura 2000*Sady Nad Zieloną*ENG Księże, Krzyki, Wrocław, dolnośląskie
485 112 zł
12 766 zł za m²
2-pok 38 m²

Nie masz czasu zapoznać się z ogłoszeniem zadzwoń! Skontaktuj się Jestem dostępny pod numerem telefonu: - ADAM Skontaktuj się

2pokojowe mieszkanie do wejścia! ul.Warszawska
2pokojowe mieszkanie do wejścia! ul.Warszawska ul. Warszawska, Zaczernie, Trzebownisko, rzeszowski, podkarpackie
547 665 zł
14 802 zł za m²
2-pok 37 m² 2/3 p

Biuro Stoprocent Nieruchomości zapraszania do zapoznania się z nową ofertą 2 pokojowego mieszkania na sprzedaż. Nieruchomość o powierzchni 37.77m2 z miejscem postojowym w cenie! Mieszkanie w pełni wyposażone, gotowe do wejścia. Topowa lokalizacja przy ul. Warszawskiej, która daje możliwość zarówno szybkiego dojazdu do innych części miasta, jak i zjazdu na kluczowe ciągi komunikacyjne województwa podkarpackiego, strefy ekonomicznej Jasionka czy Rogoźnica. Skorzystaj z gotowej opcji na Twoje wymarzone mieszkanie! Nieruchomość jest nowa nigdy wcześniej nie zamieszkała! - Salon z aneksem kuchennym - Sypialnia - Łazienka - Komunikacja -Balkon - -2 piętro w niskim 3 piętrowym bloku - osiedle w pełni monitorowane, - ogrzewanie podłogowe -nowoczesna bryła budynku -możliwość zakupu drugiego miejsca postojowego 15 000 zł -komórka lokatorska dodatkowo płatna w cenie 10 000 zł (zakup obligatoryjny) - BEZ PODATKU PCC2% Skorzystaj z tej wyjątkowej oferty! Zadzwoń i zapytaj o szczegóły !

Urządzone 66m2 z loggią i m.postojowym w cenie!
Urządzone 66m2 z loggią i m.postojowym w cenie! ul. Warszawska, Zaczernie, Trzebownisko, rzeszowski, podkarpackie
820 375 zł
12 621 zł za m²
2-pok 65 m² 3/3 p

Biuro Stoprocent Nieruchomości zapraszania do zapoznania się z nową ofertą 2 pokojowego mieszkania na sprzedaż. Nieruchomość o powierzchni 65.63m2 z miejscem postojowym w cenie! Mieszkanie w pełni wyposażone, gotowe do wejścia. Topowa lokalizacja przy ul. Warszawskiej, która daje możliwość zarówno szybkiego dojazdu do innych części miasta, jak i zjazdu na kluczowe ciągi komunikacyjne województwa podkarpackiego, strefy ekonomicznej Jasionka czy Rogoźnica. Skorzystaj z gotowej opcji na Twoje wymarzone mieszkanie! Nieruchomość jest nowa nigdy wcześniej nie zamieszkała! - Salon z aneksem kuchennym - Sypialnia - Łazienka - Komunikacja -Balkon - -3 piętro w niskim 3 piętrowym bloku - osiedle w pełni monitorowane, - mieszkanie klimatyzowane - ogrzewanie podłogowe -nowoczesna bryła budynku -możliwość zakupu drugiego miejsca postojowego w kwocie 15 000 zł -komórka lokatorska dodatkowo płatna w cenie 10 000 zł (zakup obowiązkowy) - BEZ PODATKU PCC2% Skorzystaj z tej wyjątkowej oferty! Zadzwoń i zapytaj o szczegóły !

2 Pokoje DO Zamieszkania+siłownia| Parking W Cenie
2 Pokoje DO Zamieszkania+siłownia| Parking W Cenie ul. Warszawska, Zaczernie, Trzebownisko, rzeszowski, podkarpackie
548 825 zł
14 833 zł za m²
2-pok 37 m² 2/3 p

W ofercie biura Rzeszowskie Nieruchomości na sprzedaż mieszkanie 2 pokojowe w dużym balkonem. Gotowe do zamieszkania. Wyjątkowy projekt MARAND LOFT to 36 nowoczesnych, klimatyzowanych apartamentów. Zlokalizowany blisko Rzeszowa, adm. Zaczernie przy ul. Warszawskiej. Oferta dotyczy mieszkania 206 o powierzchni Idealnie sprawdzi się jako mieszkanie inwestycyjne lub do zamieszkania dla rodziny. Bezproblemowy dojazd do centrum miasta czy lotniska. - salon z aneksem kuchennym z wyjściem na balkon - sypialnia - łazienka - przedpokój Dodatkowo duży balkon o powierzchni: 10 65 m2. - osiedle w pełni monitorowane, - 2 piętro, - siłownia w budynku dla mieszkańców, - klimatyzacja, - ogrzewanie podłogowe, - pełna infrastruktura, - mieszkanie w pełni wykończone, - sprzedawane z wyposażeniem i sprzętem AGD, - duży parking ogólnodostępny przed blokiem, - jedno miejsce w cenie, drugie dodatkowo płatne 15 000 zł, - możliwość zakupu komórki lokatorskiej w cenie 8 000 zł, - niski czynsz stały ok. 110 zł - - DOSTĘPNE OD ZARAZ! Zadzwoń i zapytaj o szczegóły. Serdecznie zapraszam na prezentację mieszkania. Agent prowadzący:

Funkcjonalne 2 pokoje z balkonem - bezpośrednio przy ul. Warszawskiej
Funkcjonalne 2 pokoje z balkonem - bezpośrednio przy ul. Warszawskiej Zaczernie, Trzebownisko, rzeszowski, podkarpackie
548 825 zł
14 833 zł za m²
2-pok 37 m² 2/3 p

Na sprzedaż komfortowe, w pełni umeblowane mieszkanie o powierzchni 37,85 m², położone na II piętrze nowoczesnego apartamentowca w Zaczerniu - zaledwie kilka minut od centrum Rzeszowa. Lokal gotowy do zamieszkania - urządzony w wysokim standardzie oraz w pełni wyposażony.

Wyjątkowe mieszkanie na sprzedaż!
Wyjątkowe mieszkanie na sprzedaż! ul. Staroniwska, Kielanówka, Boguchwała, rzeszowski, podkarpackie
575 000 zł
11 500 zł za m²
2-pok 50 m² 2/3 p

Atuty mieszkania: ustawny salon z aneksem kuchennym z możliwością wydzielenia dodatkowego pokoju, jasna sypialnia z wyjściem na balkon, własne miejsce postojowe w garażu podziemnym, Układ pomieszczeń: Cena za mieszkanie, garaż oraz komórkę lokatorską 620 000 zł Lokalizacja: Mieszkanie znajduje się w spokojnej i zielonej części Kielanówki, z szybkim dojazdem do centrum Rzeszowa oraz obwodnicy. W okolicy dostępna jest pełna infrastruktura: sklepy, szkoły, przedszkola, punkty usługowe oraz tereny rekreacyjne sprzyjające spacerom i aktywności na świeżym powietrzu. To idealne miejsce dla osób, które cenią sobie ciszę i komfort, a jednocześnie chcą mieszkać blisko miasta. Skontaktuj się i umów na prezentację - to mieszkanie może być właśnie Twoje! Patrycja Wilamowicz-opiekun oferty

Zielona Niwa Nowa Inwestycja Przytulne 2 pokoje!
Zielona Niwa Nowa Inwestycja Przytulne 2 pokoje! ul. Tadeusza Kościuszki, Głogów Małopolski, rzeszowski, podkarpackie
375 000 zł
9 375 zł za m²
2-pok 40 m² 1/3 p

„Osiedle Zielona Niwa” - DOMEX Rzeszów Głogów Małopolski, Osiedle Niwa Kupujący zwolniony z podatku PCC 2%

2-pokojowe mieszkanie przy ul. Warszawskiej w Rzeszowie - NOWA CENA!
2-pokojowe mieszkanie przy ul. Warszawskiej w Rzeszowie - NOWA CENA! ul. Irysowa, Zaczernie, Trzebownisko, rzeszowski, podkarpackie
580 520 zł
13 500 zł za m²
2-pok 43 m² 3/3 p

Na sprzedaż komfortowe, w pełni umeblowane mieszkanie o powierzchni 43,48 m², położone na III piętrze nowoczesnego apartamentowca w Zaczerniu - zaledwie kilka minut od centrum Rzeszowa. Lokal gotowy do zamieszkania - urządzony w wysokim standardzie oraz w pełni wyposażony.

Komfortowe mieszkanie 2 pokojowe z 2025 roku przy ul. Warszawskiej
Komfortowe mieszkanie 2 pokojowe z 2025 roku przy ul. Warszawskiej Zaczernie, Trzebownisko, rzeszowski, podkarpackie
699 000 zł
13 980 zł za m²
2-pok 50 m² 2/3 p

Na sprzedaż komfortowe, w pełni umeblowane mieszkanie o powierzchni 50,62 m², położone na II piętrze nowoczesnego apartamentowca w Zaczerniu - zaledwie kilka minut od centrum Rzeszowa. Lokal gotowy do zamieszkania - urządzony w wysokim standardzie oraz w pełni wyposażony.

M2 w stanie deweloperskim - Boguchwała
M2 w stanie deweloperskim - Boguchwała ul. Techniczna, Boguchwała, rzeszowski, podkarpackie
329 000 zł
9 400 zł za m²
2-pok 35 m² 3/4 p

W sprzedaży nowe mieszkanie w stanie deweloperskim o powierzchni 35,90 m² z balkonem 9,72 m², położone na 3. piętrze w nowo powstającym budynku w Boguchwale przy ul. Reja. Lokal znajduje się w atrakcyjnej, spokojnej okolicy z bardzo dobrym dojazdem do Rzeszowa. OPIS INWESTYCJI:

Otwórz mapę Mapa