32 obiekty

3 pok. 86,48 m2 Nowe budownictwo, Polkowice
3 pok. 86,48 m2 Nowe budownictwo, Polkowice Słubicka/Borówkowa, Polkowice, polkowicki, dolnośląskie
622 656 zł
7 240 zł za m²
3-pok 86 m² 3/5 p

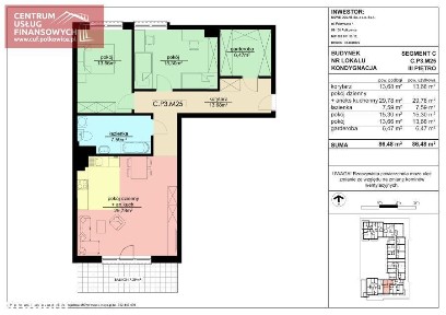
Oferujemy Państwu nowe mieszkania bezczynszowe przy ul. Słubickiej/Borówkowej w Polkowicach. Oferta bezpośrednio od Dewelopera. Kupujący nie płaci podatku PCC. Ogłoszenie sprzedaży dotyczy mieszkania 3 pokojowego na parterze o nr C.P3.M25 o powierzchni użytkowej 86,48 m2. Mieszkanie składa się z: - korytarza o powierzchni - 17,01 m2 - pokoju dziennego połączonego z aneksem kuchennym - 29,78 m2 - drugiego pokoju - 13,66 m2 - trzeciego pokoju - 13,17 m2 - łazienki - 7,70 m2 - wc - 5,39 m2 - AquaPark ok 300 m od inwestycji - Cicha spokojna okolica, - W najbliższym otoczeniu niska zabudowa wielorodzinna - W niedużej odłegłości od centrum miasta ok 800 m Nowoczesny, 4 piętrowy blok, w każdej klatce będzie znajdować się winda. Niskie koszty utrzymania nierchomości. Stałe opłaty - fundusz remontowy (stawka zostanie ustalona po założeniu wspólnoty mieszkaniowej) Opłaty zmienne - prąd, woda, ogrzewanie miejskie (w zależności od zużycia) Istnieje możliwość dokupienia miejsca postojowego w garażu podziemnym - w cenie 60 000 zł. Do każdego mieszkania przynależy komórka lokatorska w cenie 15 000 zł. Jesteśmy z Państwem na każdym etapie procesu kupna począwszy od wyboru oferty, jej prezentacji po finalizację transakcji. Pomagamy we wszytstkich formalnościach związanych z uzyskaniem kedytu na zakup nieruchomości a nasz Doradca kredytowy bezpłatnie pomoże w wyborze oferty. - Treść niniejszego ogłoszenia nie stanowi oferty handlowej w rozumieniu Kodeksu Cywilnego. Treść ma charakter informacyjny i zalecamy ich osobistą weryfikację. Kontaktując się z biurem Klient wyraża zgodę na przetwarzanie danych osobowych zgodnie z przepisami ustawy z dnia 29 sierpnia 1997 roku o ochronie danych osobowych / Dz.U.Nr. 133 poz. 883/. Klientowi przysługuje prawo do wglądu do swoich danych osobowych i ich aktualizacji.

Wygodne, Nowoczesne Z Ogrodem.
Wygodne, Nowoczesne Z Ogrodem. Widokowa, Komorniki, poznański, wielkopolskie
695 000 zł
10 859 zł za m²
3-pok 64 m²

KOMORNIKI, ULICA WIDOKOWA - WYGODNE, NOWOCZESNE MIESZKANIE NA PARTERZE Z OGRODEM W SKRAJNYM SEGMENCIE SZEREGOWCA z 2010 r. Z MIEJSCEM POSTOJOWYM NA PARKINGU STRZEŻONYM. Powierzchnia mieszkania - 64,30 m2

Mieszkanie Rynek Polkowice
Mieszkanie Rynek Polkowice rynek Rynek, Polkowice, polkowicki, dolnośląskie
550 000 zł
6 875 zł za m²
3-pok 80 m² 2/3 p

Na sprzedaż mieszkanie na 2 piętrze w kamienicy 3 piętrowej na Starówce w Polkowicach. Mieszkanie zlokalizowane w ścisłym centrum miasta! Mieszkanie składa się z przedpokoju, przestronnego salonu, oddzielnej kuchni z oknem, 2 sypialni, łazienki, WC oraz oddzielnej garderoby. Do mieszkania przynależy piwnica. Metraż 69,10 m2 pow. użytkowej. Po podłodze metraż nieruchomości to 80 m2. Mieszkanie zlokalizowane w budynku naprzeciwko wejścia do Ratusza Polkowic. Budynek z 2000 roku. Ogrzewanie miejskie, woda ciepła z miasta. W mieszkaniu siła (indukcja w kuchni), kaloryfery+ dodatkowo wykonane przyjemne zimową porą ogrzewanie podłogowe. Budynek dobrze ocieplony. Mieszkanie bardzo ciepłe, dobrze dogrzane, bez problemów technicznych. Niskie koszty utrzymania nieruchomości, nawet jak na wspólnotę mieszkaniową: ) Bardzo ładny widok z okien na samą Starówkę Polkowic. Budynek we wspólnocie mieszkaniowej. Bardzo miłe, ciche i spokojne sąsiedztwo. Pomimo lokalizacji w samym centrum w mieszkaniu bardzo cicho. Dodatkowym atutem lokalizacji jest brak oddziaływania hałasu z ulic przez jeżdżące samochody (budynek nie graniczy z żadną jezdnią). Lokalizacja wręcz idealna dla osób ceniących sobie ciszę i spokój, a jednocześnie bliskość do sklepów, urzędów, szkół, przedszkoli, kościoła, podstawowych usług (fryzjer, stomatolog, tłumacz, ubezpieczenia, banki, ZUS, itp.), sklepów osiedlowych. Urokliwa okolica, która przyciąga i zachęca do życia w sercu spokojnego miasta. Serdecznie zapraszam do oglądania i składania ofert na zakup nieruchomości! Cena mieszkania 550 000 zł Kontakt

Duże i nowoczesne mieszkanie w Rynku na sprzedaż - do negocjacji
Duże i nowoczesne mieszkanie w Rynku na sprzedaż - do negocjacji ul. Słowiańska, Polkowice, polkowicki, dolnośląskie
820 000 zł
9 535 zł za m²
3-pok 86 m² 1/3 p

Dzień dobry, sprzedam 3 pokojowy apartament położony w świetnej lokalizacji w centrum Polkowic przy samym Rynku oraz parku śródmiejskim. W salonie mieści się duży narożnik skórzany na wymiar sprzedawany w pakiecie z mieszkaniem.

Mieszkanie 1 piętro Rynek
Mieszkanie 1 piętro Rynek rynek Rynek, Polkowice, polkowicki, dolnośląskie
570 000 zł
8 261 zł za m²
3-pok 69 m² 1 p

Na sprzedaż bardzo ładne mieszkanie 3 pokojowe zlokalizowane w kamienicy na 1 piętrze w samym Rynku Polkowic. Mieszkanie jest bardzo jasne i przestronne, rozkładowe- dwustronne. Składa się z przedpokoju, łazienki, WC, kuchni, 2 sypialni i salonu. Z salonu jest również wyjście na balkon. Do mieszkania przynależy piwnica, która ma ponad 10 m2. Mieszkanie jest bardzo ciepłe- budynek dobrze ocieplony, posiada szerokie klatki schodowe, ładnie wykończone- dużo miejsca np. na wózek. Budownictwo z 2000 roku- w samym centrum Rynku Polkowic. Ogrzewanie miejskie (kaloryfery), woda ciepła z miasta, elektryka miedziana. Budynek dobrze utrzymany i na bieżąco remontowany. Wspólnota mieszkaniowa z niewysoką zaliczką na części wspólne i fundusz remontowy. Bardzo miłe i przyjazne sąsiedztwo. Niewielu sąsiadów. Mieszkanie zadbane- wszystkie ściany, podłogi, szafy, drzwi wewnętrze i kuchnia bardzo dobrze utrzymane. Ewentualny remont i odświeżenie mieszkania według indywidualnych potrzeb kupującego. Świetna lokalizacja! W pobliżu wszelkie niezbędne sklepy i usługi, rynek, targ miejski, usługi typu fryzjer, kosmetyczka, banki, urząd gminy, starostwo powiatowe, kościół, ubezpieczenia, liczne przedszkola i szkoła podstawowa. Serdecznie zapraszamy do kontaktu. Mieszkanie dostępne od ręki! Cena 570 000 zł do delikatnej negocjacji

3 pokoje w Polkowicach, osiedle Sienkiewicza
3 pokoje w Polkowicach, osiedle Sienkiewicza Polkowice, polkowicki, dolnośląskie
467 500 zł
8 500 zł za m²
3-pok 55 m² 3/4 p

Mieszkanie w Polkowicach - idealne miejsce dla Ciebie! Zapraszamy do zakupu pięknego, 3-pokojowego mieszkania o powierzchni 55 m2, położonego na 3 piętrze w Polkowicach. Mieszkanie po gruntownym remoncie i z nowoczesną aranżacją Mieszkanie niedawno przeszło gruntowny remont i zostało zaaranżowane w nowoczesnym stylu, jest gotowe do natychmiastowego zamieszkania. Wyposażenie i standard Mieszkanie oferuje: Przestronny salon 2 sypialnie Nowoczesną kuchnię ze wszystkimi niezbędnymi urządzeniami Łazienkę z prysznicem i umywalką Przynależną piwnicę Lokalizacja Mieszkanie znajduje się w spokojnej okolicy, otoczonej zielenią i łatwym dostępem do wszystkich niezbędnych udogodnień. Polkowice to urokliwe miasto z bogatą ofertą edukacyjną, rekreacyjną i handlową. Cena Cena mieszkania wynosi 467 500 zł. To doskonała okazja dla osób szukających wygodnego i stylowego miejsca do życia. Zainteresowanych zapraszamy do kontaktu! Jeśli szukasz idealnego miejsca do zamieszkania, nie wahaj się skontaktować z nami. Chętnie odpowiemy na wszystkie Twoje pytania i bezpłatnie pomożemy w załatwieniu wszystkich formalności, niezbędnych do uzyskania kredytu! Patrycja

Nowe budownictwo-III p. 56,83 m2-3 pok. Lawendowa
Nowe budownictwo-III p. 56,83 m2-3 pok. Lawendowa ul. Lawendowa, Polkowice, polkowicki, dolnośląskie
435 317 zł
7 774 zł za m²
3-pok 56 m² 3/4 p

Nowa inwestycja w Polkowicach "OSIEDLE LAWENDOWE" Oferujemy Państwu mieszkanie w nowym budownictwie w Polkowicach przy ul. Lawendowej. Oferta bezpośrednio od Dewelopera. Kupujący nie płaci podatku PCC. Bez prowizji dla Biura Nieruchomości. Ochrona kupujących - rachunek powierniczy prowadzony przez PKO BP SA. Budynek składa się z czterech kondygnacji (parter i pięter od 1 do 3) oraz trzech klatek schodowych. Mieszkania 1, 2 i 3 pokojowe posiadają powierzchnię od 31,21 m2 do 57,14 m2. Ogłoszenie sprzedaży dotyczy mieszkania 3 pokojowego na III piętrze o nr. 3.12. Na mieszkanie o powierzchni 56,83 m2 składają się następujące pomieszczenia: - korytarz - 6,17 m2 - salon z aneksem kuchennym - 23,06 m2 - sypialnia - 11,29 m2 - sypialnia - 12,22 m2 - łazienka - 4,09 m2 Do kupienia również miejsce postojowe w cenie 12 300 zł. W cenie mieszkania: - 2 balkony - drzwi wejściowe antywłamaniowe, - okna trzyszybowe, - rolety antywłamaniowe -klimatyzacja Mieszkanie sprzedawane jest w standardzie deweloperskim, który obejmuje: 1. Ławy fundamentowe wraz ze ścianami fundamentowymi wykonane z uwzględnieniem wpływu eksploatacji górniczej wraz z izolacją przeciwwilgociową 2. Ściany zewnętrzne i nośne według projektu 3. Ściany działowe według projektu 4. Strop - jednolity lany (zatwierdzony do warunków przeciwwstrząsowych) 5. Schody wewnętrzne żelbetowe 6. Wykończenie ścian wewnętrznych - tynk gipsowy maszynowy 7. Ocieplenie ścian zewnętrznych - styropian 8. Tynk zewnętrzny zgodnie z projektem 9. Wykończenie posadzek - szlichta cementowa zatarta na ostro 10. Pokrycie dachowe - blacha na rąbek 11. Ocieplenie dachu -wełna mineralna lub pianowanie 12. Kominy systemowe 13. Stolarka okienna - kolor złoty dąb na zewnątrz - środek biały 14. Rolety zewnętrzne - elektryczne 15. Miejsce postojowe - kostka brukowa 16. Drzwi wejściowe - przeciwwłamaniowe 17. Instalacja C.O. - według projektu - ogrzewanie podłogowe 18. Instalacja gazowa - według projektu. Doprowadzenie do pieca + piec dwufunkcyjny (ogrzewanie + ciepła woda) komplet ze sterownikiem - uruchomienie i ustawienie kotła przez serwisanta 19. Instalacja wodno-kanalizacyjna - zgodnie z projektem z rur PE, odpływy zakończone korkiem. 20. Okna trzy szybowe, parapety zewnętrzne 21. Instalacja elektryczna - zgodnie z projektem, bez osprzętu końcowego. 22. Kuchnia - doprowadzenie instalacji pod kuchenkę elektryczną (siła). 23. Ogrodzenia między działkami (dotyczy mieszkań na parterze) 24. Drzwi wejściowe do mieszkania - antywłamaniowe (drzwi wewnętrzne we własnym zakresie) 25. Balkon żelbetowy - imitacja deski Zalety inwestycji: - miejsca parkingowe przy blokach - przystanek autobusowy przy ul. Liliowej - cicha i spokojna okolica - w najbliższym otoczeniu niska zabudowa jednorodzinna - w niedużej odległości od centrum miasta ok 2 km Niskie koszty utrzymania nieruchomości. Stałe opłaty takie jak fundusz remontowy i bieżąca eksploatacja - stawka zostanie ustalona po założeniu wspólnoty mieszkaniowej. Opłaty zmienne - prąd, woda, gaz (w zależności od zużycia) Budowa rozpoczęta. Zakończenie inwestycji - I kwartał 2026 r. Pełna lista dostępnych mieszkań na naszej stronie internetowej: Zapraszamy do rezerwacji. Pomagamy we wszystkich formalnościach związanych zakupem nieruchomości i uzyskaniem kredytu a nasz Doradca kredytowy bezpłatnie pomoże w wyborze oferty kredytowej. - Treść niniejszego ogłoszenia nie stanowi oferty handlowej w rozumieniu Kodeksu Cywilnego. Treść ma charakter informacyjny i zalecamy ich osobistą weryfikację. Kontaktując się z biurem Klient wyraża zgodę na przetwarzanie danych osobowych zgodnie z przepisami ustawy z dnia 29 sierpnia 1997 roku o ochronie danych osobowych / Dz.U.Nr. 133 poz. 883/. Klientowi przysługuje prawo do wglądu do swoich danych osobowych i ich aktualizacji.

MIESZKANIE W SERCU POLKOWIC - ul. SŁOWIAŃSKA
MIESZKANIE W SERCU POLKOWIC - ul. SŁOWIAŃSKA Polkowice, polkowicki, dolnośląskie
590 000 zł
7 867 zł za m²
3-pok 75 m² 1/4 p

Mam dla Ciebie trzypokojowe mieszkanie na pierwszym piętrze w nowej kamienicy z dużą piwnicą w samym centrum Polkowic! Mieszkanie o powierzchni 70,3 m2 z powierzchnią przynależną - komórką lokatorską (5,1 m2) - składa się z salonu, kuchni, dużej łazienki z WC, dwóch pokoi sypialnianych oraz przedpokoju. Kuchnia wyposażona w meble w zabudowie, zmywarkę, piekarnik, płytę indukcyjną. Lokal mieszkalny sprzedawany z większością umeblowania, które jest widoczne na zdjęciach - gotowe do zamieszkania bez większych nakładów finansowych!

Trzy pokojowe mieszkanie 47m
Trzy pokojowe mieszkanie 47m Pomorskie, Słupsk
335 000 zł
7 128 zł za m²
3-pok 47 m² 3 p

Do sprzedania trzy pokojowe mieszkanie na osiedlu Hubalczyków, 3ie piętro, mieszkanie ma widną kuchnie osobno wc i łazienkę, pokoje są widne i ustawne żaden z pokoi nie jest przejściowy, okna plastikowe, piwnica. Mieszkanie do remontu. Tel 60*******77

Mieszkanie 3-pok. 55,4 m2 z loggią-5 piętro, Polk
Mieszkanie 3-pok. 55,4 m2 z loggią-5 piętro, Polk ul. Miedziana, Polkowice, polkowicki, dolnośląskie
331 500 zł
6 027 zł za m²
3-pok 55 m² 5/10 p

Oferuję Państwu słoneczne mieszkanie z pięknym widokiem na Polkowice. Świetna lokalizacja. Blok znajduje się w centrum Polkowic przy ul. Miedzianej. W pobliżu znajdują sklepy, place zabaw, usługi, targ, kino, szkoły, przystanki, restauracje i inne. Mieszkanie usytuowane jest na 5 piętrze w bloku 10-cio piętrowym. Na nieruchomość o powierzchni 55,4 m2 składają się: - przedpokój - 3 pokoje - kuchnia - łazienka - toaleta Mieszkanie posiada loggię. Do mieszkania przynależy również komórka na półpiętrze o powierzchni 3,38 m2. W mieszkaniu posostają: - przedpokój - szafa w zabudowie - mały pokój- szafa w zabudowie - kuchnia - meble kuchenne ze sprzętami: kuchnia gazowa z piekarnikiem, zmywarka, lodówka. W mieszkaniu została wymieniona elektryka. Opłaty do spółdzielni za 2 osoby to ok. 900 zł. Zapraszam na prezentację nieruchomości. tel. 530*222*904 - Treść niniejszego ogłoszenia nie stanowi oferty handlowej w rozumieniu Kodeksu Cywilnego. Treść ma charakter informacyjny i zalecamy ich osobistą weryfikację. Kontaktując się z biurem Klient wyraża zgodę na przetwarzanie danych osobowych zgodnie z przepisami ustawy z dnia 29 sierpnia 1997 roku o ochronie danych osobowych / Dz.U.Nr. 133 poz. 883/. Klientowi przysługuje prawo do wglądu do swoich danych osobowych i ich aktualizacji.

Sprzedam mieszkanie w Polkowicach
Sprzedam mieszkanie w Polkowicach Polkowice, polkowicki, dolnośląskie
685 000 zł
9 648 zł za m²
3-pok 71 m² 2 p

Sprzedam komfortowe mieszkanie w centrum Polkowic - ul. Słowiańska, 71,3 m² Na sprzedaż przestronne i funkcjonalne mieszkanie o powierzchni 71,3 m², położone na 2. piętrze w bloku z windą. Do mieszkania przynależy również piwnica, co zapewnia dodatkową przestrzeń do przechowywania.

Przestronne mieszkanie 3-pokojowe z balkonem
Przestronne mieszkanie 3-pokojowe z balkonem ul. Skalników, Polkowice, polkowicki, dolnośląskie
439 000 zł
6 968 zł za m²
3-pok 63 m² 7/10 p

Zapraszam do zapoznania się z wyjątkową ofertą mieszkania na sprzedaż. Mieszkanie na sprzedaż o powierzchni 63,89 m² znajduje się na 7. piętrze bloku. Mieszkanie po remoncie w skład którego wchodzą: 3 pokoje, kuchnia, łazienka, WC, garderoba oraz balkon. Do mieszkania przynależy piwnica.

Mieszkanie bezczynszowe
Mieszkanie bezczynszowe ul. Słubicka, Polkowice, polkowicki, dolnośląskie
560 000 zł
8 889 zł za m²
3-pok 63 m² 2 p

Na sprzedaż mieszkanie bezczynszowe 3-pokojowe o powierzchni 63,5 m2. Mieszkanie usytuowane na 2 piętrze, w nowym budownictwie (Polkowice, ul. Słubicka), szeroka klatka schodowa W skład mieszkania wchodzi:

Trzy pokoje przy ul. Kolejowej w Polkowicach.
Trzy pokoje przy ul. Kolejowej w Polkowicach. ul. Kolejowa 6, Polkowice, polkowicki, dolnośląskie
280 000 zł
5 000 zł za m²
3-pok 56 m² 4/4 p

Mieszkanie w Polkowicach przy ul. Kolejowej o powierzchni 56,20 m², to doskonała propozycja dla osób poszukujących nieruchomości do własnej aranżacji, gdzie można nadać własny styl. Znajduje się na czwartym ostatnim piętrze w budynku bez windy, zbudowanym w latach 70-tych r. Mieszkanie dwustronne okna wychodzą na spokojną, zieloną okolicę, co zapewnia ciszę i komfort. Mieszkanie składa się z funkcjonalnych pomieszczeń: - Kuchnia stanowi osobne pomieszczenie, doskonała przestrzeń by zaaranżować ją według własnego uznania. - pokój dzienny w kwadracie, idealne miejsce do wypoczynku, - dwie sypialnie ustawne pomieszczenia w kształcie prostokąta, - łazienka przestrzeń z możliwością dostosowania do własnych potrzeb, - oddzielne WC, -pozostałą powierzchnie stanowi komunikacja. Dodatkowe informacje: - stan techniczny: mieszkanie wymaga odświeżenia/remontu, co stanowi doskonałą okazję do własnej aranżacji wnętrza. - ogrzewanie: centralne, miejskie, co zapewnia wygodę i oszczędności. - Internet i telewizja kablowa: dostępne, co jest istotnym atutem dla współczesnych użytkowników. - czynsz: relatywnie niski 750,00 zł co czyni tę ofertę jeszcze bardziej atrakcyjną, - parking ogólnodostępny dla mieszkańców. Lokalizacja Mieszkanie znajduje się w dobrze skomunikowanej części Polkowic. W okolicy znajduje się szkoła oraz w bliskiej odległości przystanki komunikacji miejskiej, co ułatwia codzienne życie. Dodatkowo, bliskość terenów zielonych sprzyja aktywnemu wypoczynkowi. To mieszkanie przy ul. Kolejowej to idealna oferta dla osób, które pragną stworzyć przestrzeń według własnych potrzeb i gustu. Dzięki korzystnej lokalizacji oraz możliwości remontu, stanowi doskonałą inwestycję zarówno do zamieszkania. Jeśli szukasz mieszkania, które możesz przekształcić w swoje wymarzone miejsce, ta oferta z pewnością Cię zainteresuje. Zapraszam.

Sprzedam mieszkanie 59,60 m2
Sprzedam mieszkanie 59,60 m2 Polkowice, polkowicki, dolnośląskie
495 000 zł
8 390 zł za m²
3-pok 59 m²

Mieszkanie w zielonej, cichej okolicy idealne dla młodych i starszych. Na sprzedaż mieszkanie w Polkowicach spokojnej, pełnej zieleni lokalizacji. W pobliżu znajdują się park, las, ścieżka zdrowia, baseny, place zabaw dla dzieci i dla psiaków. To idealne miejsce dla młodych małżeństw i osób starszych, które cenią ciszę, naturę i wygodę na co dzień. Blok zlokalizowany jest naprzeciwko szkoły podstawowej nr 4 oraz uczelni wyższej oraz biblioteki miejskiej, przy ulicy Ociosowej.

Przestronne 3-pokojowe mieszkanie z balkonem
Przestronne 3-pokojowe mieszkanie z balkonem Chocianów, polkowicki, dolnośląskie
250 000 zł
4 808 zł za m²
3-pok 52 m² 1/4 p

Oferuję na sprzedaż przestronne mieszkanie o powierzchni 52 m². Znajduje się na pierwszym piętrze czteropiętrowego bloku. Mieszkanie składa się z trzech pokoi, w tym kuchnia otwarta na salon,oraz balkonu. Wśród wyposażenia znajdziesz pralkę, lodówkę, kuchenkę i piekarnik. Ogrzewanie gazowe zapewnia komfort w chłodniejsze dni.

3 pokoje z ogrodenm i miejscem postojowym
3 pokoje z ogrodenm i miejscem postojowym ul. Makowa, Polkowice, polkowicki, dolnośląskie
610 000 zł
8 714 zł za m²
3-pok 70 m²

Mieszkanie z 2019 roku, bezczynszowe, z miejscem postojowym i ogródkiem o pow. 67 mkw. ( w tym miejsce postojowe przed budynkiem). Położone przy ul. Makowej na prywatnym, ogrodzonym osiedlu, w niskiej zabudowie szeregowej, na parterze, z indywidulanym wejściem.

Syndyk sprzeda 3 pokojowy lokal mieszkalny w Gaworzycach
Syndyk sprzeda 3 pokojowy lokal mieszkalny w Gaworzycach ul. Główna, Gaworzyce, polkowicki, dolnośląskie
271 000 zł
4 045 zł za m²
3-pok 67 m² 1 p

Syndyk masy upadłości Kamil Perlik w postępowaniu upadłościowym osoby fizycznej nieprowadzącej działalności gospodarczej prowadzonym pod sygn. akt LE1L/GUp-s/158/2025 pod nadzorem Sądu Rejonowego w Legnicy V Wydział Gospodarczy zaprasza do: składania ofert zakupu nieruchomości lokalowej, położonej w miejscowości Gaworzyce przy ulicy Głównej 1/10 o powierzchni użytkowej (mieszkalnej) 54,14 m2, dla której Sąd Rejonowy w Głogowie V Wydział Ksiąg Wieczystych prowadzi księgę wieczystą o numerze LE1G/00034416/7 (wielkość udziału w nieruchomości wspólnej, objętej KW nr LE1G/00031658/4, którą stanowi grunt oraz części budynku i urządzenia, które nie służą wyłącznie do użytku właścicieli lokali, wynosi 105 / 1000 części) wraz z nieruchomością lokalową (pokój), położoną w miejscowości Gaworzyce przy ulicy Głównej 1/11 o powierzchni użytkowej (mieszkalnej) 12,99 m2, dla której Sąd Rejonowy w Głogowie V Wydział Ksiąg Wieczystych prowadzi księgę wieczystą o numerze LE1G/00051872/6 (wielkość udziału w nieruchomości wspólnej, objętej KW nr LE1G/00031658/4, którą stanowi grunt oraz części budynku i urządzenia, które nie służą wyłącznie do użytku właścicieli lokali, wynosi 18/1000 części).

Najnowsze osiedle w centrum- szeroki wybór układów
Najnowsze osiedle w centrum- szeroki wybór układów ul. Śrubowa, Szczepin, Stare Miasto, Wrocław, dolnośląskie
693 653 zł
12 169 zł za m²
3-pok 57 m² 2/7 p

Kupujesz od dewelopera bez PCC 2% i bez prowizji! Mieszkanie 3 pokojowe o powierzchni około 57,57 m² usytuowane na 2 piętrze w nowoczesnym budynku z windą. - mieszkanie w stanie deweloperskim - w przedpokoju miejsce na szafy w zabudowie - duża sypialnia 15 m2 z garderobą - gabinet/ lub druga sypialnia - z pokoju dziennego wyjście na balkon - mieszkanie jednostronne - wystawa okienna skierowana na zachód 693 653 zł Mieszkanie jest. Zdjęcia zamieszczone w ogłoszeniu to wizualizacje, które mają na celu przedstawienie potencjału wnętrza. - od pierwszego oglądania, przez negocjacje, aż po pomoc w kredycie. Dzięki temu zakup jest prostszy i bezpieczniejszy. Pełny cennik oraz historia zmian cen lokali w tej inwestycji są dostępne u dewelopera, zgodnie z ustawą o jawności cen. 24771

Rezerwacja Bezczynszowe mieszk w skrajnym szeregu z ogródkiem centrum
Rezerwacja Bezczynszowe mieszk w skrajnym szeregu z ogródkiem centrum ul. Kamila Baczyńskiego, Polkowice, polkowicki, dolnośląskie
695 000 zł
9 392 zł za m²
3-pok 74 m²

Na sprzedaż piękne bezczynszowe dolne mieszkanie w zabudowie szeregowej (część skrajna lewa) o pow 74m dodatkowo z ogródkiem. Ul Baczyńskiego, spokojna okolica, 5 minut spacerem od centrum. Mieszkanie jest w bardzo dobrym stanie, zamieszkaliśmy w nim ledwo 3 lata temu, jesteśmy pierwszymi właścicielami. Wysoki standard wykończenia, ponieważ było to nasze mieszkanie marzeń na lata, ale po czasie okazało się, że potrzebujemy większego.

Otwórz mapę Mapa