302 obiekty

Wysokie 3 pokojowe z windą/Wola
Wysokie 3 pokojowe z windą/Wola ul. Eustachego Tyszkiewicza, Młynów, Wola, Warszawa, mazowieckie
895 000 zł
15 982 zł za m²
3-pok 56 m² 2/5 p

Takie jest mieszkanie na warszawskiej Woli - w jednej z najlepiej skomunikowanych części stolicy. To propozycja dla osób, które chcą żyć blisko centrum, korzystając jednocześnie z klimatu kamienicy i wygody miejskiej infrastruktury. Lokalizacja: Mieszkanie znajduje się w sercu Woli - dzielnicy, która dynamicznie się rozwija i zyskuje na prestiżu. W odległości kilku minut spacerem dostępne są linie tramwajowe, autobusy oraz metro, co zapewnia szybki dojazd do każdej części miasta. Bliskość centrum gwarantuje łatwy dostęp do biurowców, uczelni, sklepów i punktów usługowych. To miejsce idealne zarówno do życia, jak i jako inwestycja pod wynajem. Nieruchomość mieści się w kamienicy z 1956 roku - solidnej, z charakterem i wysokimi stropami, które nadają wnętrzom wyjątkowego klimatu. Budynek jest wyposażony w windę, co czyni codzienne użytkowanie wygodnym i komfortowym. Architektura lat 50. wciąż cieszy się dużym uznaniem - łączy prostotę i funkcjonalność z trwałością wykonania. Mieszkanie o powierzchni 56 m² usytuowane jest na 2. piętrze. Składa się z trzech pokoi, oddzielnej kuchni oraz łazienki. Funkcjonalny rozkład sprawia, że nieruchomość doskonale sprawdzi się zarówno dla rodziny, jak i jako mieszkanie inwestycyjne. To oferta dla osób, które poszukują mieszkania z klimatem w doskonałej lokalizacji - blisko centrum, ale w spokojniejszej części Woli. Idealne dla rodziny, inwestora szukającego mieszkania pod wynajem lub każdego, kto ceni miejski styl życia, dobrą komunikację i potencjał nieruchomości z historią. Ta nieruchomość łączy w sobie prestiż lokalizacji, wygodę codziennego życia oraz wysoki potencjał inwestycyjny. Mieszkania w tej części Warszawy szybko zyskują na wartości i cieszą się dużym zainteresowaniem zarówno wśród kupujących, jak i najemców.

Sprzedam mieszkanie na osiedlu Komforty 57m
Sprzedam mieszkanie na osiedlu Komforty 57m Mazowieckie, Rybienko Nowe
620 000 zł
10 877 zł za m²
3-pok 57 m² 4 p

Nowoczesne i przytulne mieszkanie 57 m² - w idealnej lokalizacji!przy ulicy pana Tadeusza 21 Szukasz miejsca, w którym od razu poczujesz się jak w domu? Mam dla Ciebie 3-pokojowe mieszkanie o powierzchni 57 m² - z dwiema sypialniami i jasnym salonem połączonym z aneksem kuchennym. Duże okna zapewniają świetne doświetlenie wnętrz, a przemyślany układ pomieszczeń sprawia, że mieszkanie jest niezwykle funkcjonalne. W okolicy znajdziesz sklepy, przedszkola, szkoły i tereny zielone. Idealne dla rodziny lub pod inwestycję.Do mieszkani przynależy komórka lokatorska.Więcej informacji udzielę pod numerem telefonu.

Jasne osobne 3 pokoje, Kw, metro
Jasne osobne 3 pokoje, Kw, metro ul. Skierniewicka, Czyste, Wola, Warszawa, mazowieckie
829 000 zł
15 073 zł za m²
3-pok 55 m² 10/10 p

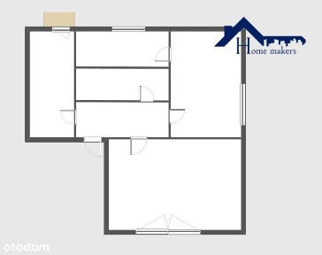
Na sprzedaż 3 pokojowe mieszkanie 55 m2, piętro 10/10 z windą, w budynku z 1976r., Wola Czyste. Mieszkanie do remontu lub odświeżenia, idealne dla rodziny lub pary, także inwestycyjnie pod wynajem. Mieszkanie to: * salon wyjściem na balkon; * sypialnia; * sypialnia; * osobna kuchnia z oknem: meble w zabudowie, lodówka, płyta gazowa, piekarnik, zmywarka; * łazienka: wanna, umywalka; * toaleta: wc; * przedpokój; * balkon. Dodatkowo komórka lokatorska 2,5 m2. Naziemnego miejsca postojowe, na zamkniętym parkingu, przed blokiem. Mieszkanie ciepłe, ciche i bardzo dobrze doświetlone. Piękny widok z okien na panoramę Warszawy. Możliwość wydzielenia czwartego pokoju w miejscu kuchni, po zrobieniu aneksu kuchennego w salonie. Czynsz administracyjny 1000 zł. Budynek znakomicie położony, w najbliższej okolicy pełna infrastruktura handlowo-usługowa: liczne sklepy, kawiarnie, apteki, przedszkole, szkoła podstawowa. Doskonały dostęp do komunikacji miejskiej, tylko 170 m do przystanków tramwajowych i autobusowych, 270 m do metra Płocka (M2). Blisko dużo terenów zielonych, skwery i parki. Mieszkanie to lokal mieszkalny stanowiący odrębną nieruchomość, jest założona księga wieczysta. Brak jakichkolwiek obciążeń w księdze wieczystej, wpisana komórka lokatorska, tylko jeden właściciel, możliwa szybka sprzedaż. Mieszkanie jest dostępne za gotówkę lub na kredyt, który bezpłatnie pomożemy uzyskać. Zapraszam do obejrzenia na miejscu, zadzwoń od razu i umów się na spotkanie! Oferta biura nieruchomości, więcej propozycji na naszej stronie topbrokers (kropka)pl

3 pokoje, Wola ul. Pustola
3 pokoje, Wola ul. Pustola ul. Pustola, Ulrychów, Wola, Warszawa, mazowieckie
799 000 zł
14 796 zł za m²
3-pok 54 m² 4/4 p

Mam przyjemność zaprezentować Państwu jasne, klimatyczne, trzypokojowe mieszkanie położone w korzystnej lokalizacji na warszawskiej Woli przy ul. Pustola 22. W skład nieruchomości (dokładnie 53,92m2) wchodzą 3 pokoje, widna i oddzielna kuchnia, łazienka z WC oraz przedpokój. Do lokalu przynależy piwnica. Nieruchomość położona jest w spokojnej, zielonej okolicy w odnowionym bloku zbudowanym w 1967 roku. Wokół budynku są liczne parkingi. W pobliżu znajduję się przystanek autobusowy, pływalnia, skwer Karaimski, szkoły podstawowe, przedszkole, liceum ogólnokształcące, sklepy spożywcze oraz punkty gastronomiczne. Największym atutem mieszkania pod względem lokalizacji jest bliskość do stacji metra Księcia Janusza - 750 metrów (8 minut pieszo lub 2 minuty autobusem) oraz Park Józefa Sowińskiego i Edwarda Szymańskiego - 5 minut pieszo. Lokal jest dwustronny, co zapewnia znakomitą cyrkulację powietrza, a słońce wpada do mieszkania przez cały dzień. Nieruchomość idealnie nadaje się dla rodziny lub pod inwestycję. Mieszkanie jest po remoncie. Spółdzielcze własnościowe prawo do lokalu z założoną Księgą Wieczystą, co umożliwia posiłkowanie się kredytem hipotecznym. Zapraszam na prezentację

3 pokoje, garderoba, dwie łazienki, Wola 0% prow.
3 pokoje, garderoba, dwie łazienki, Wola 0% prow. Odolany, Wola, Warszawa, mazowieckie
1 262 599 zł
16 613 zł za m²
3-pok 76 m² 7/16 p

Lokalizacja: Warszawa, Wola, ul Ordona Ceny od: 607 955 zł Powierzchnie : od 30 m2 do 132,89 m2 Termin oddania: IV kwartał 2027r. Osiedle i okolica - drzwi antywłamaniowe, wideodomofon, monitoring, ochrona, teren zamknięty - na terenie inwestycji powstanie 215 miejsc postojowych w garażu oraz 19 miejsc naziemnych (dodatkowo płatne) - - dostępne komórki lokatorskie Zapraszam do kontaktu po więcej szczegółów oraz rzuty dostępnych lokali Meritum Property Group sp. z o.o. 02-703 Warszawa, Bukowińska 24C Oferta wysłana z programu dla biur nieruchomości ASARI CRM ()

3 pokoje, osobna kuchnia, balkon 11,7 m²| Miasto Wola| Jana Kazimierza
3 pokoje, osobna kuchnia, balkon 11,7 m²| Miasto Wola| Jana Kazimierza ul. Jana Kazimierza, Odolany, Wola, Warszawa, mazowieckie
1 750 000 zł
24 648 zł za m²
3-pok 71 m² 4/6 p

Zapraszam do obejrzenia pięknego, przytulnego, przestronnego i bardzo funkcjonalnego apartamentu w samym sercu Woli. Apartament znajduje się na nowoczesnym osiedlu, z całodobową ochroną i monitoringiem, otoczony rewelacyjną infrastrukturą i w bliskiej odległości do centrum. Mieszkanie usytuowane jest na 4 piętrze, 6-piętrowego budynku. Jest dwustronne, z ekspozycją na wschód i zachód, co zapewnia naturalne światło przez cały dzień.

Trzypokojowe mieszkanie na Woli w nowym budynku.
Trzypokojowe mieszkanie na Woli w nowym budynku. ul. Jana Olbrachta, Ulrychów, Wola, Warszawa, mazowieckie
1 190 000 zł
17 500 zł za m²
3-pok 68 m² 5/6 p

Na sprzedaż - 3-pokojowe mieszkanie 68,4 m² | Warszawa, ul. Olbrachta 23 Na sprzedaż przestronne i funkcjonalne mieszkanie o powierzchni 68,4 m², zlokalizowane na 5. piętrze z 6 w nowoczesnym budynku dewelopera DOM Development. Lokal składa się z: Mieszkanie jest w układzie dwustronnym, bardzo dobrze doświetlone i ciche. Budynek znajduje się przy ul. Olbrachta 23, w świetnie skomunikowanej części Warszawy (Wola). W pobliżu pełna infrastruktura: sklepy, szkoły, parki oraz szybki dostęp do komunikacji miejskiej. Cena mieszkania: 1 190 000 PLN Możliwość dokupienia: Oferta wysłana z programu dla biur nieruchomości ASARI CRM ()

Piękny apartament na Woli *Klimatyzacja*Wyposażenie
Piękny apartament na Woli *Klimatyzacja*Wyposażenie ul. Marcina Kasprzaka, Czyste, Wola, Warszawa, mazowieckie
2 700 000 zł
33 333 zł za m²
3-pok 81 m² 1/3 p

Luksusowy apartament z pełnym wyposażeniem Rivera Maison w prestiżowym budynku Kasprzaka 7 Wyjątkowa propozycja dla osób, które cenią komfort, jakość i ponadczasową elegancję.

Przestronne M3 z 2 balkonami | Bliska Wola
Przestronne M3 z 2 balkonami | Bliska Wola ul. Marcina Kasprzaka, Odolany, Wola, Warszawa, mazowieckie
1 250 000 zł
19 841 zł za m²
3-pok 63 m² 2/8 p

Zapraszam do zapoznania się z wyjątkową ofertą 3-pokojowego mieszkania z 2 balkonami. ★ OPIS MIESZKANIA ★ Dwustronna ekspozycja okien gwarantuje bardzo dobre doświetlenie, poczucie przestrzeni i odpowiednią cyrkulację powietrza. W gorące letnie dni o komfort dba. Mieszkanie przeszło lekki lifting poprzez czyszczenie, odświeżenie i konserwację oraz malowanie ścian, ale każdy z pokoi można zaaranżować według własnych potrzeb i preferencji. - salon z balkonem - otwarta kuchnia w formie aneksu - sypialnia z balkonem - pokój/gabinet - łazienka z wanną i parawanem prysznicowym Do mieszkania przynależy (+50 000 zł) Osiedle jest doskonale skomunikowane z resztą Warszawy dzięki przystankom autobusowym, nowo budowanej linii tramwajowej oraz stacji 2 linii metra znajdującej się przy Rondzie Daszyńskiego. Osoby zmotoryzowane z pewnością docenią, która umożliwia sprawne przemieszczanie się po Warszawie. Sąsiedztwo ul. Jana Kazimierza spełnia koncepcję i zapewnia wszelką niezbędną do codziennego życia infrastrukturę. W spacerowej odległości znajdują się restauracje, sklepy (m. in. 2 Biedronki i liczne Żabki), przedszkola oraz żłobki, przychodnie, kawiarnie, apteki. Od CH Blue City, Wola Park lub Fort Wola dzieli nas kilku minutowa podróż autem. - Park Moczydło, Park Sowińskiego i Powstańców Warszawy. Idealne miejsce na chwilę relaksu, wyciszenia, bądź spacery z rodziną lub spacery z psim przyjacielem. Zarówno elewacja budynku, jak i części wspólne są bardzo dobrze utrzymane.

Doskonała lokalizacja 3-pokojowy apartament 105 m²
Doskonała lokalizacja 3-pokojowy apartament 105 m² ul. Łucka, Mirów, Wola, Warszawa, mazowieckie
1 770 000 zł
16 857 zł za m²
3-pok 105 m² 4/8 p

3-pokojowy apartament 105 m² ul. Łucka - centrum Warszawy, wysoki standard, garaż Na sprzedaż przestronny, 3-pokojowy apartament o powierzchni 105,2 m², położony w prestiżowej lokalizacji - przy ul. Łuckiej, tuż obok Hotelu Hilton i kompleksu Platinum Towers, w samym centrum Warszawy. Mieszkanie znajduje się w nowoczesnym budynku z recepcją i ochroną, idealnym zarówno do zamieszkania, jak i na cele biurowe. To idealna propozycja dla osób szukających dużego, komfortowego apartamentu w ścisłym centrum Warszawy. Mieszkanie świetnie sprawdzi się zarówno jako luksusowy lokal mieszkalny, jak i prestiżowe biuro. Zainteresowanych zapraszamy do kontaktu i na prezentację! Agent nieruchomości Nr. Licencji zawodowej 28546

Super mieszkanie Wolska 109 - 3 pok. 54 m. kw. / Super apt Wolska 109
Super mieszkanie Wolska 109 - 3 pok. 54 m. kw. / Super apt Wolska 109 Mazowieckie, Warszawa, Wola
950 000 zł
17 593 zł za m²
3-pok 54 m² 1 p

SPRZEDAM SUPER MIESZKANIE PRZY WOLSKIEJ 109 - 3 pokoje 54 m. kw. (zwrot z inwestycji 5% rocznie) Z agencjami nie współpracuję. LOKALIZACJA: Świetna! Osiedle Wolska - doskonałe połączenia - tramwaj/autobus 5 minut do Metro Płocka (10 minut pieszo), 15 minut do Metro Ratusz Arsenał, Metro R. Daszyńskiego, Dw. Centralny. Łatwy dojazd do tras szybkiego ruchu - 7, S8. W pobliżu: szkoły wyższe, podstawowe, przedszkola, parki. Zakupy w sklepach: Lidl, Rossman, Żabka, Biedronka. MIESZKANIE OPIS: Lokal na 1 piętrze przedwojennej kamienicy (cichy i ciepły budynek, winda). Kuchnia z salonem i dwa przestronne pokoje, łazienka, korytarz i loggia, łącznie 53 m. kw. Piwnica ok. 4 m. kw. Ekspozycja północ-południe z cichą stroną południową od podwórka. Wysokość 2,90 m. Mimo położenia przy ruchliwej ulicy Wolskiej, od podwórza cicho i zielono. Budynek w dobrym stanie, klatka schodowa po remoncie. STANDARD: Mieszkanie po generalnym remoncie, w pełni umeblowane, wysoki standard. Kuchnia i łazienka w pełni wyposażone w sprzęt AGD. W salonie kanapa, ława i TV, w pokojach: łóżko, sofa, szafy i szafki. Przedpokój i sypialnie wyposażone w pojemne szafy. DODATKOWE INFORMACJE: Strefa płatnego parkowania - niska opłata dla mieszkańców. - FOR SALE SUPER FLAT AT WOLSKA 109 - 3 rooms 54 sq. m. (return on investment 5% annually) I do not work with real estate agents. LOCATION: Great! Osiedle Wolska - excellent connections - by tram/bus 5 minutes to Metro Płocka (10 minutes by foot), 15 minutes to Metro Ratusz Arsenał, Metro R. Daszyńskiego, Central Station. Easy access to expressways - 7, S8. Nearby: universities, primary schools, kindergartens, parks. Shopping in stores: Lidl, Rossman, Żabka, Biedronka. APARTMENT DESCRIPTION The flat is on the first floor of a pre-war tenement (quiet and warm building, elevator). Kitchen with a living room and two spacious rooms, bathroom, corridor and loggia, 53 sq. m. in total. The basement of approx. 4 sq. m. North-south exposure with a quiet south side from the yard. Height 2.90 m. Despite the location at the busy Wolska street, from the yard is quiet and green. Building in a good condition, renovated staircase. STANDARD: The flat is after a general renovation, fully furnished, high standard. Kitchen and bathroom with household appliances. The living room has a sofa, a table and a TV, in the rooms: a bed, a sofa, wardrobes, and cabinets. Hall and bedrooms with spacious wardrobes. ADDITIONAL INFORMATION: Paid parking zone - low fees for inhabitants.

3 pokoje po remoncie | Wola - metro Księcia Janus
3 pokoje po remoncie | Wola - metro Księcia Janus ul. Małego Franka, Koło, Wola, Warszawa, mazowieckie
890 000 zł
17 800 zł za m²
3-pok 50 m² 3/3 p

| 3-pokojowe mieszkanie po generalnym remoncie | Warszawa - Wola | przy metrze Księcia Janusza Gotowe do wprowadzenia - bez nakładów, po generalnym remoncie! Na sprzedaż przestronne, w pełni wykończone mieszkanie o powierzchni 50 m², zlokalizowane w jednej z najbardziej pożądanych dzielnic Warszawy - na Woli, w bezpośrednim sąsiedztwie stacji metra Księcia Janusza. Lokal położony jest na 3. piętrze niskiego, kameralnego budynku i przeszedł generalny remont - wymieniono wszystkie instalacje: elektryczną, hydrauliczną oraz gazową. To idealna propozycja dla osób, które cenią komfort, estetykę i doskonałą lokalizację. Układ pomieszczeń Mieszkanie jest w pełni rozkładowe - każdy pokój ma osobne wejście, co zapewnia komfort i prywatność. Składa się z: Do mieszkania przynależy również piwnica. Standard wykończenia Mieszkanie po generalnym remoncie - wszystko nowe, urządzone w nowoczesnym stylu: Nie wymaga żadnych dodatkowych nakładów - wystarczy wnieść meble i zamieszkać! Lokalizacja i okolica Mieszkanie położone jest w zielonej, spokojnej części Woli, w pobliżu stacji metra Księcia Janusza (5 minut spacerem). Okolica zapewnia wszystko, co potrzebne do wygodnego życia: Najważniejsze informacje Dlaczego warto? Lokalizacja przy metrze - szybki dojazd do centrum Pełny remont - wszystko nowe Funkcjonalny, rozkładowy układ pomieszczeń Idealne dla rodziny, pary lub pod wynajem Gotowe do wprowadzenia Zadzwoń i umów się na prezentację! Takie mieszkania na Woli nie trafiają się często - nie przegap tej okazji!:DODATKOWE INFORMACJE | Rodzaj budynku: blok | Parking strzeżony (odległość w metrach) [m]: 190 | Głośność: ciche | Plac zabaw: TAK | Widok: na podwórko | Gaz: jest | Woda: ciepła - miejska | Dojazd: asfalt | Otoczenie: działki zabudowane | Ogrzewanie: miejskie | Internet: TAK | Telewizja kablowa: TAK | Nadaje się na biuro: TAK | Komunikacja publ.: metro, kolej, tramwaj, autobus miejski | Odległość do komunikacji publicznej [m]: 290 | Odl. do sklepu [m]: 58 | Odl. do szkoły [m]: 500 | Odl. do przedszkola [m]: 550 | Odl. do morza: 342 | Rozkład: trzystronne rozkładowe | Usytuowanie: trójstronne | Drzwi antywłamaniowe: TAK | Opłaty w czynszu: woda ciepła, sprzątanie, administracja, wywóz śmieci, fundusz remontowy, CO | Opłaty wg liczników: gaz, prąd | Rodzaj mieszkania: jednopoziomowe | Piwnica [m2]: 3 | Piwnica: TAK | Stan lokalu: Do wprowadzenia | Okna: PCV | Instalacje: wymienione | Balkon: jest | Liczba balkonów: 1 | Powierzchnia balkonów/tarasów [m2]: 1 | Powierzchnia użytkowa [m2]: 50 | Rok budowy: 1956 | Liczba pokoi: 3 | Wysokość pomieszczeń [m]: 2,6500 | Liczba sypialni: 3 | Powierzchnia pokoi [m2]: 39,5 | Podłogi pokoi: panele | Ściany pokoi: gładzie gipsowe | Wyposażenie pokoi: krzesła, stół, dywan, łóżko, lampa stojąca, komody, fotele, stolik RTV, komplet wypoczynkowy, kanapa | Wystawa okien - pokoje : Pd, Pn, Wsch | Typ kuchni: oddzielna | Rodzaj kuchni: z zabudową kuchenną | Powierzchnia kuchni [m2]: 4,5 | Podłoga kuchni: terakota | Wyposażenie kuchni: lodówko-zamrażalka, meble kuchenne na wymiar, MEBLE KUCHENNE W ZABUDOWIE, kuchnia gazowa, sprzęt AGD | Wystawa okien - kuchnia: Pd | Typ łazienki: razem z wc | Liczba łazienek: 1 | Powierzchnia łazienki [m2]: 2,5 | Glazura łazienki: glazura | Podłoga łazienki: terakota | Wyposażenie łazienki: WC, umywalka, lustro, pralka automatyczna, kabina prysznicowa | Ściany łazienki: glazura | Liczba WC: 1 | Powierzchnia WC: 2,5 | Glazura WC: glazura | Podłoga WC: terakota | Ściany WC: glazura | Liczba przedpokoi: 1 | Powierzchnia przedpokoi [m2]: 3,5 | Podłoga przedpokoi: gres | Ściany przedpokoi: gładzie gipsowe | : :LINK DO STRONY | : :KONTAKT DO AGENTA | Mariusz Turek |

Nowe 3 pok. apartament 57m2 Kolejowa
Nowe 3 pok. apartament 57m2 Kolejowa ul. Kolejowa, Czyste, Wola, Warszawa, mazowieckie
1 393 690 zł
24 451 zł za m²
3-pok 57 m² 1/7 p

UWAGA KUPUJACY NIE PŁACI PROWIZJI AGENCJI! KUPUJESZ W CENIE DEWELOPERA BEZ PODATKU PCC Apartament będzie wykończony pod klucz

Trzypokojowe z odzielną kuchnią.
Trzypokojowe z odzielną kuchnią. ul. Nowolipie, Nowolipki, Wola, Warszawa, mazowieckie
926 000 zł
15 966 zł za m²
3-pok 58 m² 4/4 p

Zapraszam do zapoznania się z ofertą trzypokojowego mieszkania na granicy Woli/Śródmieścia. Pokoje są oddzielne, ustawne i dobrze doświetlone. Na podłodze parkiet. Okna PCV. Kuchnia jest oddzielna, z oknem. Łazienka z wanną plus oddzielne WC. Mieszkanie jest do remontu. Do mieszkania przynależy piwnica. Budynek to kamienica z 1953 r. Bardzo dobra lokalizacja. Mieszkanie administracyjnie jest w dzielnicy Wola ale jest kilkadziesiąt metrów od Al. Jana Pawła II. Kilka minut piechotą do przystanków tramwajowego i autobusowego. Do stacji Metro Arsenał jeden przystanek lub kilkunastominutowy spacer. W sąsiedztwie sklepy, punkty usługowe, szkoła, przedszkole, apteka, itp. Prezentowane przez nas oferty nie stanowią oferty w rozumieniu Kodeksu Cywilnego. Dokładamy najwyższej staranności, aby informacje dotyczące oferowanych nieruchomości były możliwie dokładne, kompletne i aktualne. Ze względu na okoliczności, iż informacje te pochodzą od osób trzecich i część z nich nie zawsze daje się zweryfikować, POLIDMEX Nieruchomości nie ponosi odpowiedzialności za ich dokładność, kompletność i aktualność. Oferta wysłana z programu dla biur nieruchomości ASARI CRM ()

Eleganckie mieszkanie w kamienicy, 3 pokoje
Eleganckie mieszkanie w kamienicy, 3 pokoje ul. Miedziana, Mirów, Wola, Warszawa, mazowieckie
1 850 000 zł
23 718 zł za m²
3-pok 78 m² 3/4 p

Naprzeciw prestiżowych inwestycji M7 i Apartamentów Gutenberga, przy ul. Miedzianej, znajduje się eleganckie, przestronne mieszkanie zaprojektowane przez renomowanych architektów. To przestrzeń, która łączy w sobie ponadczasową elegancję, funkcjonalność i wyjątkowy klimat. Idealna propozycja dla osób ceniących wysoką jakość wykończenia oraz życie w jednej z najbardziej dynamicznych i prestiżowych części Warszawy. Wnętrze jest pełne naturalnego światła i przemyślanych rozwiązań. tworzą spójną całość z nowoczesnym designem, zapewniając komfort i estetykę na najwyższym poziomie. Mimo położenia w samym centrum, mieszkanie pozostaje spokojne i ciche - okna wychodzą na wewnętrzne, jasne podwórze, co zapewnia prywatność i komfort. Ulica Miedziana to jedno z najbardziej centralnych miejsc w Warszawie. W pobliżu znajdują się Fabryka Norblina, Plac Europejski, a także liczne restauracje, galerie sztuki i przestrzenie coworkingowe. To okolica, w której historia spotyka się z nowoczesnością, a miasto tętni życiem przez cały dzień. Zapraszam do kontaktu w celu uzyskania dodatkowych informacji i umówienia prezentacji mieszkania. Być może to właśnie Oferta wysłana z programu dla biur nieruchomości ASARI CRM ()

Top lokalizacja I 3 pokoje I Nowolipki
Top lokalizacja I 3 pokoje I Nowolipki al. Aleja Jana Pawła II, Nowolipki, Wola, Warszawa, mazowieckie
849 000 zł
16 980 zł za m²
3-pok 50 m² 1/10 p

3 pokoje, loggia, możliwy najem krótkoterminowy Mam przyjemność zaprezentować Państwu komfortowe i funkcjonalne mieszkanie o powierzchni 48 m², zlokalizowane na Muranowie, przy Al. Jana Pawła II - jednej z najbardziej lubianych części Warszawy. Idealne do zamieszkania lub jako inwestycja pod wynajem. • Lokalizacja - Muranów, róg ul. Miłej i al. Jana Pawła II, • Idealne pod najem krótkoterminowy (wysoki popyt w tej części miasta), • Dwustronne i ciche mieszkanie mimo centrum miasta (nowe 3-szybowe okna). • Salon z aneksem kuchennym i wyjściem na loggie, z widokiem na ciche patio osiedla, • 2 sypialnie (jedna z dużą szafą w zabudowie), • Łazienka z wanną i WC, • Przedpokój z dużą szafą w zabudowie. • Księga wieczysta - możliwość zakupu na kredyt, • Niski czynsz ok 750 zł - zawiera zaliczki na media, • Piwnica, • Miejsca parkingowe dostępne do wynajęcia, • Internet światłowodowy, • Ekspozycja okien: wschód - zachód, • Przystanki tramwajowe i autobusowe - 2 min spacerem, • Metro Ratusz Arsenał i Dworzec Gdański - ok. 10-15 min spacerem, • Pełna infrastruktura w bezpośrednim sąsiedztwie - liczne sklepy i restauracje wzdłuż pasażu przy al. Jana Pawła II, Arkadia, Klif, Hala Mirowska, apteki, usługi, siłownie, szkoły, tereny rekreacyjne, • Kilka minut spacerem do Parku Krasińskich, Parku Mirowskiego, skweru przy Muzeum Polin i historycznego Muranowa. Zapraszam do kontaktu i umówienia się na prezentację! Chętnie odpowiem na wszystkie pytania i pomogę w procesie zakupu - również w przypadku potrzeby sprzedaży innej nieruchomości lub uzyskania kredytu.

Luksusowy apartament 3 pokoje, 53,01m², Mennica
Luksusowy apartament 3 pokoje, 53,01m², Mennica ul. Waliców, Mirów, Wola, Warszawa, mazowieckie
1 855 350 zł
35 007 zł za m²
3-pok 53 m² 6/14 p

Luksusowy apartament 3 pokoje, 53,01m², Wola - ul. Waliców 11, Mennica Residence Na sprzedaż wyjątkowy apartament o powierzchni 53,01 m², położony na 6 piętrze prestiżowej inwestycji Mennica Residence przy ul. Waliców 11 w Warszawie. Z okien apartamentu rozpościera się spektakularny widok na panoramę miasta. LOKALIZACJA: Mennica Residence - ul. Waliców 11, Wola, Warszawa Apartament w Mennica Residence to wyjątkowa oferta dla osób poszukujących połączenia luksusu, przestrzeni i prestiżu w samym centrum Warszawy. Panoramiczne widoki, doskonała lokalizacja, najwyższa jakość wykończenia oraz dostęp do bogatej strefy rekreacyjnej czynią tę nieruchomość idealną zarówno dla wymagających klientów prywatnych, jak i inwestorów premium. Zapraszamy do kontaktu i umówienia prywatnej prezentacji! For sale is a unique 53,01 m² apartment located on the 6th floor of the prestigious Mennica Residence development at 11 Waliców Street in Warsaw. The apartment offers spectacular views of the city skyline and the City of Warsaw. LOCATION: Mennica Residence - Waliców Street 11, Wola, Warsaw An apartment at Mennica Residence is a unique opportunity for those seeking a combination of luxury, space, and prestige in the heart of Warsaw. Panoramic views, an excellent location, top-quality finishes, and access to a rich recreational area make this property ideal for both discerning private clients and premium investors. Please contact us and arrange a private viewing! Niniejsze ogłoszenie ma charakter informacyjny i nie stanowi oferty w rozumieniu art. 66 §1 Kodeksu cywilnego. Jako biuro nieruchomości pobieramy wynagrodzenie w formie prowizji. W celu uzyskania szczegółowych informacji zapraszamy do kontaktu. Oferta wysłana z programu dla biur nieruchomości ASARI CRM ()

Ekskluzywny Apartament 81m² | Towarowa Towers | M2
Ekskluzywny Apartament 81m² | Towarowa Towers | M2 ul. Prosta, Mirów, Wola, Warszawa, mazowieckie
2 990 000 zł
36 914 zł za m²
3-pok 81 m²

ENGLISH VERSION BELOW Ul. Prosta 69D, Warszawa Wola | 81 m² | 3 pokoje Zapraszam do zapoznania się z ofertą ekskluzywnego apartamentu położonego w prestiżowej inwestycji Towarowa Towers - nagrodzonych wieżowcach w sercu biznesowego centrum Warszawy.

Metro|Galeria Handlowa|Dwustronne|Balkon|
Metro|Galeria Handlowa|Dwustronne|Balkon| ul. Górczewska, Koło, Wola, Warszawa, mazowieckie
735 000 zł
14 700 zł za m²
3-pok 50 m² 1/3 p

Dwustronne Mieszkanie na Woli w bloku z 1961 roku 3-pokojowe mieszkanie o pow. 50m2 przy ul. Górczewskiej składające się z: Do mieszkania przynależy Duże możliwości aranżacji Nieruchomość ze względu na, oraz świetnie nadaję się pod inwestycję Lokal znajduję się na 1 piętrze w 3 piętrowym budynku W przedziale kilometra znajdują się d

OSTATNIE Piętro | Towarowa Square | Quiet luxury | Metro Rondo Dasz.
OSTATNIE Piętro | Towarowa Square | Quiet luxury | Metro Rondo Dasz. ul. Prosta, Czyste, Wola, Warszawa, mazowieckie
2 690 000 zł
37 887 zł za m²
3-pok 71 m² 9/9 p

Apartament będzie gotowy do zamieszkania w ciągu miesiąca, a zdjęcia przedstawiają nasz projekt w Towarowa Towers (to nie są wizualizacje). Zapraszamy do luksusowego apartamentu, w którym każdy dzień nabiera wyjątkowego charakteru.

Otwórz mapę Mapa