69 obiektów

Przestronne 3 Pokoje-Jar-Harmonia-Ogródek-Las
Przestronne 3 Pokoje-Jar-Harmonia-Ogródek-Las Wrzosy, Toruń, kujawsko-pomorskie
580 000 zł
11 154 zł za m²
3-pok 52 m²

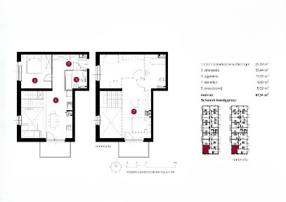
Prezentujemy 3-pokojowe mieszkanie w stanie deweloperskim o powierzchni 52,76 m², położone na parterze inwestycji Harmonia na toruńskim Osiedlu Jar. Budynek powstał w 2024 roku, zrealizowany przez cenioną firmę LEM-BUD, znaną z solidności, dbałości o szczegóły oraz nowoczesnych rozwiązań architektonicznych. Do lokalu przynależy To idealna, cenią zielone otoczenie i komfort mieszkania w nowoczesnym, dopracowanym osiedlu. EU - użytkową (kWh/m2*rok): 55.73; EK - końcową (kWh/m2*rok): 92.62; EP - nieodnawialną energię pierwotną (kWh/m2*rok): 81.47; EC02 - Wielkość emisji CO2 (t C02/m2*rok): 0.03; UOZE - Udział odnawialnych źródeł energii w zapotrzebowaniu na energię końcową [%]: 0.00; Niniejsza prezentacja oferty nie jest ofertą w rozumieniu Kodeksu Cywilnego i ma charakter wyłącznie informacyjny. Oferta wysłana z programu dla biur nieruchomości ASARI CRM ()

4 pok. z aneksem i dużym balkonem. Wołów ul. Inwalidów Wojennych
4 pok. z aneksem i dużym balkonem. Wołów ul. Inwalidów Wojennych ul. Inwalidów Wojennych, Wołów, wołowski, dolnośląskie
566 991 zł
7 364 zł za m²
4-pok 77 m² 1/3 p

Kup i zaoszczędź 2% - bez podatku PCC i bez żadnych dodatkowych opłat! Przedmiotem ogłoszenia jest 4-pokojowe mieszkanie o powierzchni 77,67 mkw położone na I piętrze budynku w inwestycji "Osiedle Przy Młynie" w Wołowie, ul. Inwalidów Wojennych.

4 pokoje/Obok przystanek/Blisko Galerii Copernicus
4 pokoje/Obok przystanek/Blisko Galerii Copernicus Wrzosy, Toruń, kujawsko-pomorskie
715 000 zł
10 515 zł za m²
4-pok 68 m² 1/7 p

Apartament zlokalizowany na Jakubskim Przedmieściu - zaledwie 2 km od toruńskiej Starówki w rewitalizowanej części miasta. - bezpośrednio od dewelopera, - bez prowizji, - bez podatku PCC, Apartament na nowej inwestycji o powierzchni 68,36 m2. Apartament znajduje się na 1/7 piętrze budynku. W budynku jest winda cichobieżna. Powierzchnia: 68,36 m² Liczba pokoi: 4 Cena Standardowa: 840 828 zł Termin oddania: I-II kwartał 2027 • 2 km do Rynku Nowomiejskiego • 9 minut do Rynku Staromiejskiego • 200 m do przystanku tramwajowego • 600 m do Dworca Wschodniego • 1 km do stacji kolejowej Toruń Wschodni • 15 minut pieszo do Parku Glazja • 2 km do przystanku plaża przy moście gen. Zawackiej • bezpośrednio obok sklepy, piekarnie, restauracje, • 4 min pieszo do Szkoły Podstawowej i przedszkola • Blisko do UMK - Wydziału Nauk o Polityce i Bezpieczeństwie • Nowoczesna architektura i wysoki standard wykończenia • Wysoki potencjał wynajmu - lokalizacja blisko Starówki, Wisły oraz uczelni przyciąga turystów, studentów i osoby pracujące w centrum • Sąsiedztwo Galerii Copernicus - 750 m • Zielona okolica - komfortowe miejsce do życia i wypoczynku • Atrakcyjna cena promocyjna - korzystny moment wejścia w inwestycję ZAINWESTUJ JUŻ TERAZ! Ograniczona liczba apartamentów! Dostępne lokale od 24 m² do 51 m² zadzwoń i wybierz idealny dla siebie! Jesteśmy dostępni 7 dni w tygodniu. Niniejsze ogłoszenie nie stanowi oferty handlowej w rozumieniu art. 66 1 Kodeksu Cywilnego. Biuro Nieruchomości View obsługuje cały proces zakupu, od rezerwacji po umowę końcową. Na każdym etapie służymy fachowym doradztwem i profesjonalną obsługą. Możliwość skorzystania z dodatkowych usług oferowanych przez biuro: usługi finansowania zakupu nieruchomości, ubezpieczenia, wykończenia pod klucz, odbiory nieruchomości, zarządzanie i wynajem. Biuro Nieruchomości VIEW 80-820 Gdańsk Chełm ul.Bernarda Milskiego 1 lok.10a tel.

Osiedle Maureska | mieszkanie 2-pok. | D.15
Osiedle Maureska | mieszkanie 2-pok. | D.15 Wrzosy, Toruń, kujawsko-pomorskie
507 677 zł
11 806 zł za m²
2-pok 43 m² 2/4 p

2-pokojowe mieszkanie numer D.15 na 2. piętrze w budynku D w Inwestycji Osiedle Maureska Dewelopera Maureska Osiedle Maureska - poznaj inwestycję

Sprzedam mieszkanie 39,6 m w Ośnie Lubuskim. Bezczynszowe
Sprzedam mieszkanie 39,6 m w Ośnie Lubuskim. Bezczynszowe Lubuskie, Ośno Lubuskie
280 000 zł
7 000 zł za m²
2-pok 40 m² 1 p

Sprzedam mieszkanie o powierzchni 39,6 m2 do którego przynależy piwnica, pomieszczenie gospodarcze, udział w strychu oraz podwórku. Do mieszkania przypisany jest również ogródek przy domu. Mieszkanie składa się z pokoju, salonu z aneksem kuchennym, łazienki i kotłowni. Piec na drzewo lub węgiel. Mieszkanie znajduje się na l piętrze kamienicy przy ul. Mickiewicza. Zapraszam do kontaktu oraz do obejrzenia mieszkania.

Parter z tarasem, garażem,zamieszkaj wśród zieleni i spokoju Wiechlice
Parter z tarasem, garażem,zamieszkaj wśród zieleni i spokoju Wiechlice Lubuskie, Wiechlice
420 000 zł
5 526 zł za m²
3-pok 76 m²

Na sprzedaż przestronne mieszkanie bezczynszowe (po kapitalnym remoncie) 76,46 m² w Wiechlicach (wieś) - parter, z tarasem, garażem i podwórkiem, w domu trzy lokalowym. To idealne miejsce dla osób, które cenią ciszę, przyrodę i piękne krajobrazy, a jednocześnie chcą mieszkać blisko miasta - do Szprotawy zaledwie ok. 3 km! W skład mieszkania wchodzą: -trzy ustawne pokoje, w tym przestronny salon oraz dwie sypialnie, -funkcjonalna, jasna kuchnia, -łazienka z toaletą, -duży przedpokój z możliwością wykonania zabudowy lub garderoby, -taras z bezpośrednim wyjściem na zewnątrz - idealne miejsce na poranną kawę, odpoczynek lub spotkania z bliskimi. -pomieszczecznie gospodarcze -centralne ogrzewanie, piec na eko groszek Mieszkanie jest gotowe do zamieszkania - przytulne, zadbane i bardzo ustawne. Do lokalu przynależy garaż, a podwórko daje dodatkową przestrzeń do relaksu i odpoczynku na świeżym powietrzu. Świetna propozycja dla rodziny lub jako inwestycja - pod hotel pracowniczy lub wynajem. W Wiechlicach dynamicznie rozwija się strefa ekonomiczna, dzięki czemu zapotrzebowanie na mieszkania stale rośnie. Cena: 420 000 zł Nie czekaj - zadzwoń i umów się To wyjątkowe miejsce, gdzie codziennie możesz cieszyć się zielenią, ciszą i spokojem

Twoje nowe mieszkanie w Rynku ! - Po remoncie, komfortowe 2 pokojowe.
Twoje nowe mieszkanie w Rynku ! - Po remoncie, komfortowe 2 pokojowe. Wołów, Szkolna 1
355 000 zł
9 342 zł za m²
2-pok 38 m²

Na sprzedaż przytulne mieszkanie zlokalizowane w samym Rynku w Wołowie. Przemyślany układ - 2 pokoje gotowe do zamieszkania. Mieszkanie zostało zaprojektowane z myślą o maksymalnym wykorzystaniu każdego metra, łącząc przytulność z nowoczesnym stylem: • Salon z aneksem kuchennym: Serce mieszkania. Jasna i przestronna strefa dzienna, idealna do odpoczynku i podejmowania gości. Kuchnia wyposażona w meble pod wymiar o wysokim połysku z eleganckimi drewnianymi blatami. • Przytulna sypialnia: Oddzielne pomieszczenie gwarantujące prywatność i ciszę. Idealnie ustawna, z dużym łóżkiem. Aktualnie jedna ściana stanowi pokoik dla niemowlaka, ale można ją przemalować i jest dodatkowe miejsce na komodę czy biurko. • Łazienka: Wykończona do codziennego użytkowania. • Funkcjonalny przedpokój: Z pojemną zabudową pod wymiar - wszystko ma swoje miejsce, co pozwala utrzymać nienaganny porządek od samego progu. Dodatkowe udogodnienia To mieszkanie oferuje więcej niż standardowy metraż: • Piwnica: Do lokalu przynależy prywatna piwnica - idealne miejsce na rowery, opony czy domowe przetwory. • Suszarnia: Mieszkańcy mają dostęp do wspólnej suszarni we wspólnocie, co jest ogromną wygodą i pozwala zaoszczędzić miejsce wewnątrz mieszkania. Standard: To mieszkanie przeszło generalny remont w 2021 roku, w tym roku część mebli była wymieniana i całe mieszkanie malowane. Ekonomia i Wygoda (Niski czynsz!) • Ogrzewanie gazowe w czynszu: Budynek posiada własny piec gazowy we wspólnocie - to bezpieczeństwo i stabilność kosztów. Mieszkanie jest bardzo ciepłe. • Parter: Idealne rozwiązanie dla osób starszych, rodzin z dziećmi czy jako inwestycja pod wynajem (brak barier architektonicznych). Lokalizacja: Serce Wołowa Mieszkanie w Rynku to styl życia. Wszystko masz na wyciągnięcie ręki: • Pyszna kawa, świeże pieczywo, restauracje i sklepy tuż za rogiem. • Urzędy, banki i punkty usługowe obok mieszkania. Wsparcie kredytowe: Dla Państwa wygody mogę polecić sprawdzonego i skutecznego doradcę kredytowego, który bezpłatnie pomoże zbadać zdolność i przeprowadzi przez proces finansowania zakupu. Dla kogo jest to mieszkanie? 1. Młodzi na start: Idealny "gotowiec" - wnosisz walizki i mieszkasz. 2. Seniorzy: Bezpieczny parter w centrum to gwarancja wygody. 3. Inwestorzy: Prestiżowa lokalizacja i wysoki standard to pewny najem od pierwszego dnia. Nie czekaj! Zadzwoń, umów się na prezentację i zapraszam na zakupu.

Gotowe 2 pokoje + GARAZ W CENIE/BOKS + 10min CENTRUM + Zobacz SAM
Gotowe 2 pokoje + GARAZ W CENIE/BOKS + 10min CENTRUM + Zobacz SAM Wrzosy, Toruń, kujawsko-pomorskie
380 000 zł
11 176 zł za m²
2-pok 34 m²

Prezentacja możliwa od poniedziałku do soboty, po wcześniejszym kontakcie telefonicznym lub mailowym, Możliwość zakupu mieszkania na kredyt lub za gotówkę Umów się na spotkanie ! Kup mieszkanie w najlepszej cenie!

OKAZJA! 2 poziomy 2 lub 3 pok 58m2 2 balkony| tanie MP w hali | GOTOWE
OKAZJA! 2 poziomy 2 lub 3 pok 58m2 2 balkony| tanie MP w hali | GOTOWE Wrzosy, Toruń, kujawsko-pomorskie
556 724 zł
9 767 zł za m²
2-pok 57 m² 2/2 p

Mieszkanie dwupoziomowe 2 lub 3 pokoje 57,27m2, znajdujące się na 2-3.piętrze. Dodatkowo - dwa balkony.

BLISKO NATURY! 2 pok 34m² | ogródek +taras | tramwaj 2 min | LAS
BLISKO NATURY! 2 pok 34m² | ogródek +taras | tramwaj 2 min | LAS Wrzosy, Toruń, kujawsko-pomorskie
384 252 zł
11 302 zł za m²
2-pok 34 m²

Obsługa codziennie do godz. 22! Również w niedzielę i święta! Mieszkanie od dewelopera☆ BRAK PROWIZJI

GOTOWE! 5 pok. | 2 Łazienki | 2 poziomy | 2 balkony | Tanie MP w hali
GOTOWE! 5 pok. | 2 Łazienki | 2 poziomy | 2 balkony | Tanie MP w hali Wrzosy, Toruń, kujawsko-pomorskie
676 292 zł
8 670 zł za m²
5-pok 78 m² 2/2 p

-> Obsługa codziennie do godz. 22! Również w niedzielę i święta! Mieszkanie od dewelopera -> BRAK PROWIZJI

2 POZIOMY! 4 pok 64m2 |2 BALKONY | tramwaj 1min| BLISKO natury| GOTOWE
2 POZIOMY! 4 pok 64m2 |2 BALKONY | tramwaj 1min| BLISKO natury| GOTOWE Wrzosy, Toruń, kujawsko-pomorskie
578 558 zł
9 040 zł za m²
4-pok 64 m² 2/2 p

Mieszkanie dwupoziomowe z rozkładem umożliwiającym aranżację aż 4 pokoi, o powierzchni 64,22 m2, znajdujące się na 2. piętrze nowego budynku. Dodatkowo 2 balkony.

3 pokoje, duży balkon, winda, dostępne od zaraz
3 pokoje, duży balkon, winda, dostępne od zaraz Wrzosy, Toruń, kujawsko-pomorskie
769 000 zł
11 145 zł za m²
3-pok 69 m² 2/2 p

Jeśli szukasz przestronnego mieszkania, do którego możesz wprowadzić się od razu - bez remontów, stresu i dodatkowych kosztów - ta oferta jest dla Ciebie. Przestronne, funkcjonalne 3-pokojowe mieszkanie położone na kameralnym, nowoczesnym osiedlu na Wrzosach II łączy komfort codziennego życia z doskonałą lokalizacją. To idealna propozycja dla rodziny, pary lub osób ceniących spokój, zieleń i szybki dostęp do centrum miasta. Mieszkanie położone jest w dzielnicy - na kameralnym, nowoczesnym osiedlu o niskiej zabudowie. To spokojna i bardzo dobrze rozwinięta część miasta, szczególnie ceniona przez rodziny oraz osoby szukające komfortu życia blisko centrum, ale z dala od jego zgiełku. · pełna infrastruktura w zasięgu kilku minut: sklepy, punkty usługowe, szkoły, przedszkola, żłobki, przychodnie itp. · sąsiedztwo terenów rekreacyjnych, las - w pobliżu, idealna na spacery, rower i rodzinny wypoczynek · szybki dojazd do Starówki - ok. · dogodna komunikacja miejska: w pobliżu · bliskość największych galerii handlowych w Toruniu: oraz Osiedle zadbane, z urządzoną zielenią, licznymi nasadzeniami drzew i krzewów oraz - zarówno osiedlowym, jak i nowym placem rekreacyjnym w bezpośrednim sąsiedztwie (drewniane elementy, ścieżki z przeszkodami dla dzieci, strefy odpoczynku dla całej rodziny). Liczne miejsca parkingowe wokół budynku - bez problemu zaparkujemy tu o każdej porze. · rok budowy: · materiał: · 2 piętra + · tylko - cisza, kameralność i prywatność · inwestycja renomowanego dewelopera, znanego z solidnego wykonania i dobrych lokalizacji Funkcjonalne, bardzo dobrze rozplanowane mieszkanie o powierzchni, położone na 2 piętrze -. · przestronny z pojemną szafą w zabudowie · ·, w jednej szafa typu Komandor · z wanną oraz wygodnym prysznicem typu walk-in, meble w zabudowie · - jasna, otwarta przestrzeń dzienna z wydzieloną strefą wypoczynku oraz jadalnią · kuchnia w stałej zabudowie, w pełni wyposażona (meble w stałej zabudowie, piekarnik, płyta grzewcza, mikrofalówka, zmywarka, okap, lodówka z zamrażalką) · z ekspozycją północną, wyposażony w rozwijaną markizę · okna PCV z · czynsz ok. (z zaliczkami na ogrzewanie, ciepłą i zimną wodę, śmieci, fundusz remontowy) · wystawa okien północ (sypialnie) - południe (salon) · światłowód ✔ mieszkanie, niewymagające dużych nakładów finansowych ✔ ✔ funkcjonalny rozkład - idealny dla rodziny ✔ w cenie ✔ możliwość dokupienia ✔ liczne miejsca parkingowe wokół budynku ✔ spokojne, zielone otoczenie przy jednoczesnej bliskości centrum Prezentacje odbywają się Jeśli zaproponowany termin nie będzie dogodny, istnieje oczywiście możliwość umówienia prezentacji W ramach współpracy możecie skorzystać Państwo z usług naszego analityka finansowego, który BEZPŁATNIE poprowadzi Państwa przez cały proces kredytowania. Uprzejmie informujemy, że usługa pośrednictwa jest usługą płatną w sytuacji zakupu nieruchomości. Prezentacje są bezpłatne. Przed prezentacją należy okazać się dowodem osobistym i podpisać umowę pośrednictwa. Niniejszy opis ma charakter informacyjny i nie stanowi oferty w rozumieniu Kodeksu Cywilnego. Oferta wysłana z programu dla biur nieruchomości ASARI CRM ()

3 pok. z aneksem i balkonem. Inwalidów Wojennych Wołów
3 pok. z aneksem i balkonem. Inwalidów Wojennych Wołów ul. Inwalidów Wojennych, Wołów, wołowski, dolnośląskie
481 916 zł
7 649 zł za m²
3-pok 63 m² 3/3 p

Przedmiotem ogłoszenia jest 3-pokojowe mieszkanie o powierzchni 63,41 mkw położone na III piętrze budynku w inwestycji "Osiedle Przy Młynie" w Wołowie, ul. Inwalidów Wojennych. Lokal składa się z następujących pomieszczeń:

Tylko 4500 zł za m2!Mieszkanie na parterze! Idealne dla rodziny!
Tylko 4500 zł za m2!Mieszkanie na parterze! Idealne dla rodziny! Stefana Żeromskiego, Żychlin, kutnowski, łódzkie
335 000 zł
4 467 zł za m²
4-pok 75 m²

Przedstawiamy Państwu ofertę sprzedaży przestronnego i funkcjonalnego mieszkania o powierzchni 75 m², położonego na parterze w bloku z lat 90., zlokalizowanego w Żychlinie. To doskonała propozycja dla rodzin szukających komfortowej przestrzeni oraz dla osób poszukujących wygodnego lokum z pełną infrastrukturą w zasięgu kilku kroków. Dane nieruchomości: • pomieszczenia: 4 pokoje, kuchnia, łazienka, WC, przedpokój • powierzchnia całkowita: 75 m² • piętro: parter • rok budowy: lata 90. • ogrzewanie: CO miejskie • instalacja: miedziana • okna: PCV • umeblowanie: tak • piwnica: tak • czynsz: ok. 1350zł • termin wydania: 1.01.2026 • forma własności: pełna własność Atuty nieruchomości: • parter - idealny dla rodzin z dziećmi, seniorów i osób szukających wygody • duży metraż - świetny układ dla rodzin • układ pomieszczeń zapewnia komfort strefy dziennej i wydzielonej strefy nocnej lub przestrzeni dla dzieci • mieszkanie umeblowane - gotowe do wprowadzenia • ciepłe, zadbane i dobrze doświetlone pomieszczenia • możliwość aranżacji według własnych potrzeb • spokojna okolica z pełną infrastrukturą wokół • wysoki potencjał inwestycyjny Lokalizacja: Mieszkanie znajduje się w Żychlinie - miejscowości świetnie skomunikowanej z pobliskimi miejscami pracy, w szczególności z Kutnowską Strefą Ekonomiczną. Dojazd „od drugiej strony” pozwala uniknąć korków, co czyni tę lokalizację wyjątkowo praktyczną dla osób pracujących w regionie. Mieszkanie znajduje się w bezpośrednim sąsiedztwie Szkoły Podstawowej Nr 2 w Żychlinie. Po zajęciach szkolnych dzieci mogą świetnie się bawić na placu zabaw Nivea, nowoczesnym i bezpiecznym, a także na ogrodzonym boisku. Mieszkanie w Żychlinie jest świetną alternatywą dla osób pracujących poza Kutnem, na Specjalnej Strefie Ekonomicznej w Kutnie lub w terenie. Za stosunkowo niską cenę za m2 - na poziomie ok 4500 zł, nabywca otrzymuje 75 m2 przestrzeni do życia na parterze, w bardzo dobrej lokalizacji. W najbliższym otoczeniu: • 15 m - plac zabaw przed blokiem • 170 m - Szkoła Podstawowa nr 2 im. Jana Pawła II • 200 m - Pepco, Netto, Rossmann • 100 m - liczne garaże murowane • 190 m - apteka • 350 m - Biedronka Lokalizacja zapewnia wszystko, co potrzebne do wygodnego życia - na wyciągnięcie ręki. Cena: 335 000 zł Nie zwlekaj - mieszkania o takim metrażu, standardzie i lokalizacji są bardzo poszukiwane! Zapewniamy: • wsparcie doświadczonego doradcy kredytowego • możliwość skorzystania z ekipy remontowej współpracującej z naszą firmą Zapraszam na prezentację: Aneta Nowicka

Jar | Watzenrodego | 2 Pokoje | 51,37m2
Jar | Watzenrodego | 2 Pokoje | 51,37m2 Wrzosy, Toruń, kujawsko-pomorskie
559 000 zł
10 961 zł za m²
2-pok 51 m² 2/3 p

JAR | WATZENRODEGO | 2 POKOJE | 51,37m2 Bez podatku PCC! Bez nakładów finansowych, gotowe do wprowadzenia. Na sprzedaż pięknie zaaranżowany lokal mieszkalny, zlokalizowany na Osiedlu Zielony Zakątek - JAR w Toruniu, oddany do użytkowania w 2025 roku. Wnętrze zaprojektowane przez projektantkę, z dużą dbałością o każdy detal.

Nowe 2-pokojowe mieszkanie JAR Heweliusza bud. A
Nowe 2-pokojowe mieszkanie JAR Heweliusza bud. A Wrzosy, Toruń, kujawsko-pomorskie
575 000 zł
13 068 zł za m²
2-pok 44 m² 2/2 p

Nowe 2-pokojowe mieszkanie JAR Heweliusza budynek A BEZ PODATKU PCC Przedstawiamy mieszkanie o pow. 44,27 m2 znajdujące się na 2 piętrze nowoczesnego bloku z windą od poziomu -1 wybudowanego przez. Prężnie rozwijające się osiedle z bogatą infrastrukturą i dużą ilością zieleni. ZAPRASZAM NA PREZENTACJĘ Agnieszka Bojanowska Nie Nr licencji: 27 985 Usługa pośrednictwa jest płatna w sytuacji zakupu nieruchomości. Prezentacje wszystkich nieruchomości są bezpłatne, jednak przed prezentacją należy podpisać umowę pośrednictwa. Treść niniejszego ogłoszenia nie stanowi oferty handlowej w rozumieniu przepisów Kodeksu Cywilnego. Dodatkowych informacji udzielę pod nr tel.

Apartamenty Brzoskwiniowa Etap 3 - mieszkanie A4
Apartamenty Brzoskwiniowa Etap 3 - mieszkanie A4 Wrzosy, Toruń, kujawsko-pomorskie
605 245 zł
11 639 zł za m²
3-pok 52 m² 2/2 p

3-pokojowe mieszkanie A4 o powierzchni 52,63 m2, na parterze w Inwestycji Apartamenty Brzoskwiniowa Etap 3, od dewelopera Fasterm Teren ogrodzony i monitorowany Podziemna hala garażowa Wyjątkowe otoczenie osiedla

Ekskluzywne mieszkanie 43,74 m² z ogródek Naturia
Ekskluzywne mieszkanie 43,74 m² z ogródek Naturia Wrzosy, Toruń, kujawsko-pomorskie
590 000 zł
13 721 zł za m²
2-pok 43 m²

Biuro pośrednictwa nieruchomości Blue Home z przyjemnością przedstawia niepowtarzalną ofertę sprzedaży przestronnego luksusowo wykończonego mieszkania 2-pokojowe z prywatnym ogródkiem, położone na parterze apartamentowca z 2020 roku, zrealizowanego przez renomowanego dewelopera Budlex. Nieruchomość znajduje się na nowoczesnym i zielonym osiedlu - jednej z najbardziej pożądanych lokalizacji w Toruniu.Mieszkanie zostało zaprojektowane z dbałością o każdy szczegół. Dominuje elegancka, a wszystkie elementy wyposażenia i wykończenia zostały wykonane z materiałów. Na całej powierzchni zastosowano, które nadają wnętrzom ekskluzywnego charakteru i wizualnie je powiększają. Cena: zł Dodatkowym atutem jest. Całość została oddana do użytku w 2024 roku - stan jest idealny. Osiedle Naturia (JAR) to spokojna i zielona przestrzeń, świetnie skomunikowana z resztą miasta. W bezpośrednim sąsiedztwie mieszkania znajdują się: To miejsce, które łączy wygodę miejskiego życia z komfortem i spokojem.

Przestrzeń i zieleń na wyciągnięcie ręki - Wrzosy
Przestrzeń i zieleń na wyciągnięcie ręki - Wrzosy Wrzosy, Toruń, kujawsko-pomorskie
699 000 zł
7 516 zł za m²
3-pok 93 m² 2/3 p

Przestrzeń i zieleń na wyciągnięcie ręki - Mieszkanie 3-pokojowe Wrzosy. Oferta dostępna tylko w Krupiński Nieruchomości. Pokazujemy dokładną lokalizację nieruchomości, zatem właściciele proszą o uszanowanie ich prywatności i kontakt bezpośrednio z naszym biurem. -3 pokoje -osobna kuchnia -spiżarnia -osobna łazienka i wc -II piętro -blok z cegły -przynależna piwnica -możliwość dokupienia murowanego garażu. 93-metrowe mieszkanie usytuowane jest na II piętrze w bloku wybudowanym z cegły w 1992 roku. - Zabudowane szafy zapewniają mnóstwo miejsca do przechowywania odzieży i obuwia. - Praktyczne rozwiązanie ułatwia utrzymanie porządku. ) - Duże, słoneczne pomieszczenie idealne do wypoczynku i spotkań z rodziną i przyjaciółmi. - Funkcjonalny układ zapewnia wygodę podczas gotowania. - Wyposażenie w niezbędne urządzenia ułatwia codzienne życie. - Idealne miejsca do przechowywania ułatwiające utrzymanie porządku w kuchni. - Przytulne i komfortowe miejsce do snu i wypoczynku. - Możliwość aranżacji zgodnie z własnymi potrzebami. - Praktyczne i komfortowe pomieszczenie z wanną. - Wyposażone w niezbędne urządzenia sanitarne. -Idealne miejsce do czytania książki, opalania się lub po prostu relaksu w otoczeniu natury. - Funkcjonalny rozkład pomieszczeń zapewnia komfortowe życie dla rodziny. - Duża ilość miejsca do przechowywania. - Bliskość terenów zielonych. Bliskość terenów zielonych to idealne miejsce dla osób kochających naturę. Mieszkanie w otoczeniu zieleni zapewnia ciszę i spokój, a jednocześnie bliskość wszystkich udogodnień. - Dobrze doświetlone mieszkanie (północno -południowe). - Cicha i spokojna okolica. - Możliwość dokupienia murowanego garażu - za dodatkowa opłatą 50 000,00 zł. - Przynależna piwnica o pow. 8.40 m2 w cenie mieszkania. - Ogólnodostępne miejsca parkingowe na osiedlu. Miesięczny czynsz administracyjny wynosi ok.1600 zł w tym ujęte zaliczki na wodę i ogrzewanie. Ciepłą wodę i ogrzewanie zapewnia sieć miejska. Kika minut drogi od bloku znajduje się Biedronka. Tuż pod blokiem znajduje się weterynarz. W pobliżu jest także myjnia samochodowa czy gabinet stomatologiczny. Wrzosy są dobrze skomunikowane z resztą miasta. Kursują tu autobusy, które zapewniają dogodny dojazd do centrum Torunia. Dostępne są również ścieżki rowerowe, które umożliwiają poruszanie się po osiedlu i okolicy na rowerze. Niedaleko znajduje się szkoła muzyczna oraz szkoła podstawowa. Wokół wiele miejsc do spacerowania oraz szybki dostęp do ścieżek rowerowych, którymi dotrzeć można do centrum miasta lub pojechać w stronę Barbarki. Spełni swojej marzenia o idealnym mieszkaniu! Umów się i zobacz mieszkanie na żywo! Szukasz nowej nieruchomości, a jeszcze nie sprzedałaś starej? Mogę Ci w tym sprawnie i profesjonalnie pomóc! Zadzwoń lub napisz do mnie i zapytaj o „Kup nowe, sprzedaj stare

Otwórz mapę Mapa