206 obiektów

Nowe 2 pokoje w zielonej okolicy
Nowe 2 pokoje w zielonej okolicy Stare Bielsko, Bielsko-Biała, śląskie
467 684 zł
11 692 zł za m²
2-pok 40 m² 2/3 p

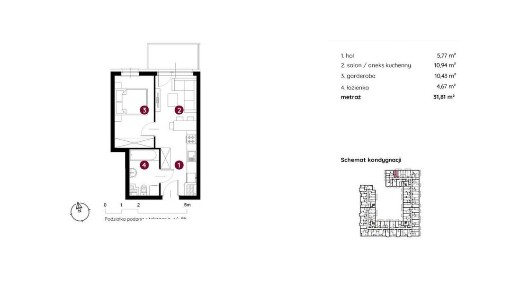
Zanurz się w wyjątkowej ofercie, która łączy nowoczesny styl i komfort w idealnej lokalizacji. To mieszkanie znajduje się w prestiżowym apartamentowcu na ul. Muszlowej, w Starym Bielsku. Dzięki bliskości kluczowych punktów usługowych i komunikacyjnych zyskujesz nie tylko idealną przestrzeń do życia, ale również wygodę codziennego funkcjonowania. Mieszkanie o powierzchni 40,58 m2 składa się z dwóch przestronnych pokoi oraz aneksu kuchennego. Przemyślany układ wnętrz daje Ci możliwość dowolnej aranżacji, która sprosta Twoim oczekiwaniom. Znajduje się na 2. piętrze trzypiętrowego budynku z 2025 roku, wyposażonego w windę, co gwarantuje łatwy dostęp dla każdego mieszkańca. Dodatkowo do dyspozycji balkon oraz piwnica zapewniająca dodatkowe miejsce do przechowywania. W ofercie znajdziesz innowacyjne rozwiązania podnoszące jakość życia, takie jak filtry antysmogowe oraz możliwość korzystania z urządzeń inteligentnego domu. Podłogowe ogrzewanie to komfort i oszczędność energii, a zastosowanie okien PCV to gwarancja dobrej izolacji termicznej. Kupując to mieszkanie, zyskujesz nie tylko komfortowe lokum, ale również wsparcie w uzyskaniu kredytu na najkorzystniejszych warunkach oraz dostęp do atrakcyjnych rabatów u dewelopera. Dodatkowo oferujemy bon na usługi firmy wykończeniowej, dzięki której szybko i profesjonalnie urządzisz swoje wnętrze. Skontaktuj się z nami! Chcesz dowiedzieć się więcej lub obejrzeć mieszkanie? Zadzwoń lub napisz. W ostatnim miesiącu pomogliśmy 5 parom znaleźć wymarzone mieszkania, chętnie pomożemy i Tobie. To jest Twoja szansa na idealne mieszkanie w Bielsku-Białej. Powyższa oferta ma charakter informacyjny i nie stanowi oferty handlowej w rozumieniu art. 66 1 Kodeksu Cywilnego. Notus Finanse S.A. Oferta wysłana z programu dla biur nieruchomości ASARI CRM ()

Mieszkanie, 41,34 m², Bielsko-Biała
Mieszkanie, 41,34 m², Bielsko-Biała Biała Śródmieście, Bielsko-Biała, śląskie
418 568 zł
10 209 zł za m²
2-pok 41 m² 1/3 p

Nowoczesne osiedle, idealna lokalizacja z widokiem na góry. Harmonia między spokojem natury, a dynamiką miejskiego życia. Inwestycja o zróżnicowanych metrażach mieszkań od jednego do pięciu pokoi i zróżnicowanych metrażach od 27 do 83 mkw.

Hulanka, 2 miejsca parkingowe, piwnica, 0 nakładów
Hulanka, 2 miejsca parkingowe, piwnica, 0 nakładów ul. Józefa Mireckiego, Aleksandrowice, Bielsko-Biała, śląskie
389 000 zł
10 514 zł za m²
2-pok 37 m²

Oferuję na sprzedaż wyjątkowe mieszkanie. Dlaczego wyjątkowe? Bo mimo, że ma zaledwie 37m2 to jest tak przemyślane pod względem projektowym, że pomieści 2 a nawet trzy osoby. Lokalizacyjnie położone na parterze w świetnie skomunikowanej części Bielska-Białej - Rondo Hulanka, przy ul. Mireckiego. Najważniejsze atuty: dwa ustawne pokoje, generalny remont kilka lat temu - wymienione wszystkie instalacje, ogrzewanie gazowe (kocioł Junkers), dwa miejsca parkingowe w cenie, piwnica 2,5 m², okna wychodzące NIE na stronę Hulanki - mieszkanie jest wyjątkowo ciche, słoneczne, jasne i zaskakująco przestronne, metraż 37 m² został zaprojektowany tak sprytnie i funkcjonalnie, że mieszkanie sprawia wrażenie znacznie większego, parter - ogromna wygoda i brak schodów. Rozkład: salon z częścią wypoczynkową, sypialnia z dużą zabudowaną szafą (łącznie trzy szafy w zabudowie), oddzielna kuchnia po remoncie, łazienka z prysznicem, korytarz z zabudową. Wyposażenie w cenie: Pozostają: zmywarka, piekarnik, indukcja, pralko-suszarka, meble wypoczynkowe, kompletna sypialnia. Mieszkanie nie wymaga żadnych nakładów finansowych. Koszty: czynsz przy 3 osobach: ok. 800 zł, dodatkowo: gaz + prąd. Lokalizacja Topowa część Bielska dla osób potrzebujących spokoju i bliskości miasta: 15 minut spacerem do ZWM i Rynku, -w pobliżu: przedszkola, szkoły, sklepy, przystanki, -szybki wyjazd na S52, - świetny dojazd do centrum. Dla kogo to mieszkanie będzie idealne? - dla singla - ciche, jasne, blisko wszystko; - na start - idealne jako pierwsze własne „M”, w pełni gotowe; - dla pary - dwa pokoje i świetny układ; - dla seniora - parter, cisza, blisko sklepy i komunikacja. Idealne mieszkanie dla osób, które chcą wejść i mieszkać bez remontów. Ciche, ciepłe i zadbane - gotowe do życia od pierwszego dnia. Kontakt: Rafał

2-pokojowe mieszkanie w bielskiej kamienicy!
2-pokojowe mieszkanie w bielskiej kamienicy! Śródmieście Bielsko, Bielsko-Biała, śląskie
609 000 zł
9 090 zł za m²
2-pok 67 m² 2/4 p

Mamy przyjemność zaprezentować przestronne 2-pokojowe mieszkanie na sprzedaż w centrum Bielska-Białej w dzielnicy Dolne Przedmieście zaledwie 170 metrów od rynku! Nieruchomość o powierzchni użytkowej ok. 69 m2 mieści się na drugim piętrze w czteropiętrowej kamienicy, a w jej skład wchodzi: Mieszkanie w wysokim standardzie, nie wymagające żadnych nakładów finansowych i jest Do mieszkania przynależy również została wyremontowana 2 lata temu. Z tego pomieszczenia mamy ze. Wszystkie okna i balkon znajdują się od strony dziedzińca, gdzie mamy parking dla mieszkańców. Plac przy kamienicy zamykany jest bramą na pilota dzięki czemu Całe mieszkanie ogrzewane jest poprzez piec 2-funkcyjny. Położone w centrum Bielska-Białej gwarantuje szybki dostęp do najważniejszych udogodnień takich jak przystanki komunikacji miejskiej, sklepy, szkoły, przedszkola, kawiarnie, targowisko, park im. Juliusza Słowackiego, rynek, Galeria Sfera i wiele innych! 425 zł/1 os. 497 zł/2 os. 569 zł/3 os. gaz, prąd. Pośrednik odpowiedzialny zawodowo za wykonanie umowy pośrednictwa: Dariusz Dzierżyński (licencja nr: 30832)

Funkcjonalne mieszkanie z balkonem
Funkcjonalne mieszkanie z balkonem ul. Księcia Przemysława, Osiedle Piastowskie, Bielsko-Biała, śląskie
309 000 zł
8 583 zł za m²
2-pok 36 m² 4/4 p

Mieszkanie przy ul. Księcia Przemysława to propozycja dla osób, które cenią wygodę oraz spokojne otoczenie. Lokal położony na ostatnim piętrze gwarantuje prywatność i znakomite doświetlenie przestrzeni. Wnętrze zostało zaprojektowane tak, aby maksymalnie wykorzystać każdy metr. Do dyspozycji jest funkcjonalny układ z balkonem i piwnicą. To idealna przestrzeń dla singla lub pary, szukających komfortowego miejsca do życia w dobrze skomunikowanej części miast. Do mieszkania prowadzi czysta i zadbana klatka schodowa, a samo usytuowanie na 4. piętrze czteropiętrowego bloku zapewnia ciszę oraz poczucie prywatności. Lokal składa się z dwóch dobrze doświetlonych pokoi, które mogą pełnić funkcję salonu z miejscem do wypoczynku oraz sypialni. Kuchnia jest oddzielna, co pozwala na wygodne przygotowywanie posiłków bez ingerencji w przestrzeń dzienną. Łazienka mieści zarówno niezbędne sanitariaty, jak i miejsce do przechowywania. W przedpokoju znajduje się dodatkowa przestrzeń na szafę, co ułatwia organizację codziennych rzeczy. Ogromnym atutem jest balkon, idealny na poranną kawę lub odpoczynek po pracy. Do mieszkania przynależy również piwnica, umożliwiająca przechowywanie sezonowych sprzętów, roweru lub kartonów z domowymi zapasami. Parking pod budynkiem gwarantuje komfort mieszkańcom, a w okolicy znajdują się sklepy, punkty usługowe oraz przystanki komunikacji miejskiej. Sprzęty AGD (lodówka, kuchenka gazowo-elektryczna, mikrofala wymienione 2 lata temu. Ogrzewanie miejskie, natomiast w łazience znajduje się piecyk przepływowy do ciepłej wody. Spółdzielnia mieszkaniowa 'STRZECHA'' Czynsz zawiera: utrzymanie i konserwacja nieruchomości oraz wokół bloku fundusz remontowy dostawa wody i odprowadzanie ścieków centralne ogrzewanie Mieszkanie znajduje się w spokojnej i dobrze skomunikowanej części Bielska-Białej. W pobliżu: sklepy, markety, punkty usługowe przystanki autobusowe - szybki dojazd do centrum tereny zielone i place zabaw - idealne dla osób ceniących aktywny wypoczynek Jeśli szukasz mieszkania do własnej aranżacji i chcesz zamieszkać w miejscu, które łączy spokój z wygodnym dostępem do miasta - nie zwlekaj. Skontaktuj się, aby umówić prezentację i przekonać się, jak wiele możliwości oferuje to przytulne mieszkanie. To może być idealna przestrzeń właśnie dla Ciebie! Rozważasz kredytowanie nieruchomości? Nasz doradca kredytowy porówna i dobierze finansowanie najlepiej dopasowane do Twoich potrzeb. Powyższa oferta objęta jest programem Współpracuję, co oznacza że jest udostępniona innym agencjom nieruchomości. Marta Szewczyk Tel:

2 pokojowe mieszkanie w centrum Bielska-Białej
2 pokojowe mieszkanie w centrum Bielska-Białej Biała Śródmieście, Bielsko-Biała, śląskie
395 000 zł
10 395 zł za m²
2-pok 38 m² 6/10 p

Na sprzedaż 2 pokojowe eleganckie, wykończone w nowoczesnym stylu mieszkanie o powierzchni 38 m², zlokalizowane w samym sercu Bielska-Białej, zaledwie 400 metrów od Rynku. Lokal z wyremontowanymi klatkami schodowymi i zadbaną przestrzenią wspólną. Mieszkanie przeszło generalny remont, podczas którego wymieniono wszystkie instalacje - elektryczną i wodno-kanalizacyjną. Brak gazu w lokalu to dodatkowy atut - zapewnia bezpieczeństwo i komfort.

Nowe mieszkanie z balkonem w Bielsko-Białej
Nowe mieszkanie z balkonem w Bielsko-Białej Komorowice Śląskie, Bielsko-Biała, śląskie
502 677 zł
11 969 zł za m²
2-pok 42 m²

Oferuję na sprzedaż nowe mieszkanie o powierzchni 42,42 m², usytuowane na parterze budynku, który jest w trakcie budowy. Mieszkanie składa się z 2 pokoi i posiada balkon, co zapewnia dodatkową przestrzeń. Zainstalowano nowoczesne okna plastikowe oraz system ogrzewania miejskiego. W budynku znajduje się także winda.

Śliczne mieszkanie po remoncie os Karpackie Bielsko-Biała
Śliczne mieszkanie po remoncie os Karpackie Bielsko-Biała ul. Morskie Oko, Osiedle Karpackie, Bielsko-Biała, śląskie
425 000 zł
8 019 zł za m²
2-pok 53 m² 3/10 p

Oferta prywatna. Na sprzedaż ładne mieszkanie 2-pokojowe o powierzchni 53,30 m², położone na 3. piętrze w 10-piętrowym bloku na Osiedlu Karpackim w Bielsku-Białej, przy ul. Morskie Oko.

NOWA Inwestycja przy Sferze|Umów spotkanie na niedzielę handlową
NOWA Inwestycja przy Sferze|Umów spotkanie na niedzielę handlową Komorowice Śląskie, Bielsko-Biała, śląskie
356 430 zł
11 498 zł za m²
2-pok 31 m² 2/4 p

BEZPOŚREDNIO OD DEWELOPERA - BEZ PROWIZJI, BEZ PODATKU OD CZYNNOŚCI CYWILNOPRAWNYCH, BEZ UKRYTYCH KOSZTÓW! Zakończenie budowy: I kwartał 2028 r. Lokalizacja

NOWY apartament z widokiem na góry ** DUŻY TARAS, GARAŻ, WINDA **
NOWY apartament z widokiem na góry ** DUŻY TARAS, GARAŻ, WINDA ** Stare Bielsko, Bielsko-Biała, śląskie
445 000 zł
11 410 zł za m²
2-pok 39 m²

NOWE MIESZKANIE Z WIDOKIEM NA GÓRY I DUŻYM TARASEM * OFERTA PRYWATNA - BEZ PROWIZJI * Sprzedam lokal mieszkalny o powierzchni 39 m2 z dużym zagospodarowanym tarasem o powierzchni 38 m2.

Komfortowe mieszkanie z WIDOKIEM NA GÓRY!
Komfortowe mieszkanie z WIDOKIEM NA GÓRY! ul. Karpacka, Kamienica, Bielsko-Biała, śląskie
465 408 zł
9 696 zł za m²
2-pok 48 m² 1/3 p

MIESZKANIA Z WIDOKIEM NA GÓRY! NOWA INWESTYCJA - 1 BUDYNEK - TYLKO 45 MIESZKAŃ

PROMOCJA MIESIĄCA! Przestronne 2 pokoje z Parkingiem|Zobacz na żywo
PROMOCJA MIESIĄCA! Przestronne 2 pokoje z Parkingiem|Zobacz na żywo Stare Bielsko, Bielsko-Biała, śląskie
421 100 zł
10 528 zł za m²
2-pok 40 m² 1/3 p

BEZPOŚREDNIO OD DEWELOPERA - BEZ PROWIZJI, BEZ PODATKU OD CZYNNOŚCI CYWILNOPRAWNYCH, BEZ UKRYTYCH KOSZTÓW! KLUCZE GOTOWE DO ODBIORU Lokalizacja

Nowe Kameralne 2 pokoje z ogródkiem blisko centrum
Nowe Kameralne 2 pokoje z ogródkiem blisko centrum Śródmieście Bielsko, Bielsko-Biała, śląskie
356 548 zł
10 187 zł za m²
2-pok 35 m² 2/3 p

Zamieszkaj w nowoczesnym i komfortowym apartamencie w otoczeniu natury! Widok na Beskidy, spacerowa okolica, blisko centrum! Bezpośredni zakup od dewelopera! Brak prowizji. Zadzwoń i poznaj szczegóły! W ofercie posiadamy również inne apartamenty już gotowe na tej jak i innych inwestycjach z całego Śląska i nie tylko. ⦁ komfortowe ⦁ metraże lokali ⦁ lokale na parterze posiadają a na piętrach przestronne ⦁ niska i atrakcyjna architektura budynków ⦁ mieszkania z dwustronną ekspozycją ⦁ niewielkie koszty eksploatacji ⦁ strefa rekreacyjna wraz z placem zabaw ⦁ miejski węzeł cieplny ⦁ stacja ładowania samochodów elektrycznych ⦁ - filtry antysmogowe zapewniające czyste powietrze wewnątrz lokalu ⦁ - zarządzaj mieszkaniem przez smartfon lub tablet ⦁ 5 lat gwarancji dewelopera ⦁ centrum Bielska-Białej - 5 minut samochodem ⦁ szybki dojazd do tras wylotowych z Bielska-Białej (S1, S52Kraków, Katowice, Żywiec) - 1km ⦁ przystanek autobusowy linii 22, 25 - 500 m ⦁ stacja kolejowa Bielsko-Biała Północ - 2,1 km ⦁ stacja kolejowa Bielsko-Biała Główna - 2,6 km ⦁ żłobki, przedszkola, szkoły - 2km ⦁ najbliższy sklep - 700 m ⦁ Centrum handlowe Sarni Stok - 1km ⦁ malownicze wzórze Trzy lipki - 400 m ⦁ Park Słowackiego - 2 km ⦁ Ośrodek rekreacyjno-narciarski - 10 min samochodem Nowoczesne kameralne osiedle w zielonej i spokojnej części miasta składające się z czterech niskich 3-piętrowych budynków. Komfortowe mieszkania liczące od 1 do 5 pokoi to świetny wybór dla rodzin z dziećmi, par, singli, seniorów czy inwestorów. Dostępne metraże lokali zaczynają się od 25,7 m2 do 79,55 m2. Mieszkania na parterze posiadają ogródek z wybrukowanym tarasem natomiast te na piętrach posiadają przestronne balkony. Na terenie osiedla przewidziano odpowiednią ilość miejsc parkingowych zewnętrznych oraz wewnętrznych w podziemnej hali garażowej. W budynku są szybkie i ciche windy w każdej klatce schodowej. Zaprojektowana została również strefa rekreacyjna dla mieszkańców wraz z placem zabaw dla najmłodszych. W okolicy rozciąga się malowniczy widok na górskie pasma Beskidu Małego, Beskidu Śląskiego, a nawet Tatr. Lokale wyposażono w pakiet ECO który zawiera między innymi pakiet antysmogowy który zapewni czyste powietrze wewnątrz mieszkania, system smart home który pozwoli zarządzać mieszkaniem z poziomu telefonu czy tabletu oraz stację ładowania pojazdów elektrycznych. Brak prowizji ! Brak podatku PCC 2%! Bezpłatna pomoc eksperta finansowego w uzyskaniu kredytu hipotecznego! Zdjęcia przykładowe jak może wyglądać Twoje wymarzone mieszkanie. Mieszkanie jest w stanie deweloperskim. Treść niniejszego ogłoszenia nie stanowi oferty handlowej w rozumieniu przepisów Kodeksu Cywilnego a dane w niej zawarte mają jedynie charakter informacyjny i mogą podlegać aktualizacji. Oferta wysłana z programu dla biur nieruchomości ASARI CRM ()

Bielsko - Centrum - bardzo dobra lokalizacja
Bielsko - Centrum - bardzo dobra lokalizacja Biała Krakowska, Bielsko-Biała, śląskie
310 000 zł
8 378 zł za m²
2-pok 37 m² 2/4 p

BIELSKO-CENTRUM - bardzo dobra lokalizacja, spokojna, boczna jednokierunkowa ulica, w pobliżu sklepy, przystanek autobusowy, US, ZUS, Park Miejski, niedaleko do dworca PKP i PKS. Parking zamykany szlabanem dla mieszkańców budynku. Mieszkanie 2-pokojowe o pow.37mkw na II piętrze w IV-piętrowym bloku. Mieszkanie bez balkonu. Do mieszkania przynależy piwnica. Wejście do mieszkania przez zewnętrzną zamykaną loggię (dla dwóch mieszkań). mieszkanie odświeżone, dobry standard wykończenia. meble kuchenne w zabudowie. przedpokój, 2 pokoje ( wejście z pokoju dziennego do sypialni), kuchnia z oknem, łazienka z WC.czynsz do Sp. Mieszkaniowej 611,50zł/m-c dla 2-osób w tym CO, woda, wywóz śmieci, sprzątanie klatki schodowej, opłata zarządcy, fundusz remontowy itp) + gaz i energia płatną wg. zużycia - łazienka - kafelki, sanitariaty, kabina prysznicowa, ciepła woda z gazowego piecyka łazienkowego Junkers, - kuchnia - nowe meble kuchenne, lodówka, - podłogi - odnowione parkiety, - ściany - gładzie gipsowe, malowane, - okna - pcv, - ogrzewanie - co-miejskie. Pośrednik odpowiedzialny zawodowo za wykonanie umowy pośrednictwa: Andrzej Kocel (licencja nr: 732)-Powyższy opis nie stanowi oferty handlowej w rozumieniu ART.66 KC, a dane w nim zawarte mają charakter informacyjny.

Słoneczne 2 pokoje na 1 piętrze w niskim bloku
Słoneczne 2 pokoje na 1 piętrze w niskim bloku Osiedle Wojska Polskiego, Bielsko-Biała, śląskie
325 000 zł
7 927 zł za m²
2-pok 41 m² 1/4 p

PREZENTUJEMY NA SPRZEDAŻ FUNKCJONALNE E I W PEŁNI WYPOSAŻONE 2 POKOJOWE MIESZKANIE NA OSIEDLU WOJSKA POLSKIEGO. NIERUCHOMOŚĆ ZLOKALIZOWANA JEST NA NAJBARDZIEJ POŻĄDANYM 1 PIĘTRZE W NISKIM BLOKU W OTOCZENIU ZIELENI. JEŚLI SZUKASZ NIERUCHOMOŚCI O FUNKCJONALNYM ROZKŁADZIE, CENISZ KOMFORT ŻYCIA I JEDNOCZEŚNIE POTRZEBUJESZ BŁYSKAWICZNEGO DOSTĘPU DO PEŁNEJ INFRASTRUKTURY MIEJSKIEJ TO TA OFERTA ŁĄCZY TE ZALETY. * mieszkanie nie wymaga większych nakładów finansowych, jest w pełni wyposażone * cena obejmuje meble oraz sprzęty AGD widoczne na zdjęciach * świetna lokalizacja - docenisz spokój i bliskość natury. 400m do przystanku MZK, sklepów, szkoły. Spacerowy dystans do Aeroklubu. * ekspozycja dużych okien zapewnia mnóstwo dziennego światła * brak jakichkolwiek problemów z parkowaniem * niskie koszty eksploatacyjne i przemyślany rozkład gwarantuje maksymalne wykorzystanie przestrzeni, idealnie nadając się zarówno dla singla, pary, jak i pod inwestycję Lokal usytuowany jest na najbardziej pożądanym 1 PIĘTRZE w niskim ocieplonym bloku z dużym parkingiem i mnóstwem zieleni Prezentowane mieszkanie posiada 2 pokoje i 41 m2 powierzchni + piwnica 3,54m2 Parking pod blokiem wyłącznie dla mieszkańców tego adresu Mieszkanie posiada bardzo funkcjonalny rozkład, jest ciepłe i słoneczne. Nieruchomość składa się z: * pokoju dziennego z aneksem kuchennym * sypialni z dużą szafą w zabudowie * wyremontowanej łazienki z wanną * przedpokoju do odświeżenia według indywidualnych potrzeb na podłogach panele, płytki, na ścianach gładzie - kolor będzie wymagał odświeżenia. Niektóre fronty dolnych szafek będą do wymiany. Okna duże PCV Czynsz ok 640 + prąd i gaz według zużycia Sam budynek został ocieplony, klatka schodowa czysta i zadbana. Zapraszamy na prezentację! Więcej ofert na stronie naszego biura Fox Nieruchomości (Bielsko-Biała) Gwarantujemy bezpieczeństwo transakcji oraz kompleksowo pomagamy w uzyskaniu KREDYTU HIPOTECZNEGO. Pośrednik odpowiedzialny zawodowo za wykonanie umowy pośrednictwa: (licencja nr: 27586)-Po więcej ofert zapraszamy na naszą stronę Fox Nieruchomości Bielsko

Komfortowe mieszkanie blisko centrum! - BEZ PROWIZJI!
Komfortowe mieszkanie blisko centrum! - BEZ PROWIZJI! ul. Michała Grażyńskiego, Komorowice Śląskie, Bielsko-Biała, śląskie
407 600 zł
10 451 zł za m²
2-pok 39 m² 1/4 p

NIE POBIERAM PROWIZJI ! PODATEK PCC = 0 ZŁ Blisko tętniącego życiem centrum i w otoczeniu beskidzkich szlaków powstaje nowoczesna zabudowa, która pozwala korzystać z najlepszych atutów Bielska-Białej - miejskiej energii oraz inspirującej, górskiej scenerii. W sercu Dolnego Przedmieścia, tuż przy rzece Białej, zaplanowano kameralny, czteropiętrowy budynek z 230 funkcjonalnymi mieszkaniami o zróżnicowanych metrażach - Dostępne są układy od kompaktowych kawalerek po przestronne lokale czteropokojowe, a wybrane mieszkania oferują nawet dwa balkony, loggie lub tarasy z ogródkami o powierzchni do 152 m².

Mieszkanie do remontu, 2 pokoje, piwnica
Mieszkanie do remontu, 2 pokoje, piwnica ul. Biała Przemsza, Niwka, Sosnowiec, śląskie
209 900 zł
4 998 zł za m²
2-pok 42 m² 4/4 p

Na sprzedaż, 2-pokojowe mieszkanie o powierzchni 42,45 m² z piwnicą 3,33 m² w cenie, usytuowane na 4 piętrze w ocieplonym bloku z 1970r. przy ul. Biała Przemsza w Sosnowcu. Świetna lokalizacja w otoczeniu tereny zielone, plac zabaw, sklepy, przystanki komunikacji miejskiej. Mieszkanie do remontu. Jeśli marzysz o mieszkaniu, w pełni zaaranżowanym przez Siebie - zapraszam do kontaktu. Układ pomieszczeń zapewnia komfort i funkcjonalność. Mieszkanie składa się z: - Dwóch przestronnych pokoi. - Przedpokoju z wejściem do łazienki, kuchni i pokoju. - Oddzielnej jasnej kuchni. - Funkcjonalnej łazienki z toaletą. - Balkonu Główne atuty: - Możliwość aranżacji mieszkania w pełni po swojemu. Lokalizacja: - Spokojne sąsiedztwo. - Plac zabaw. - Wiele usług i sklepów - Szybki i wygodny wjazd na S1 i A4 Opłaty: - Czynsz administracyjny wynosi około 500 zł. Masz dodatkowe pytania, chcesz zapytać o szczegóły i umówić się na oglądanie mieszkania? Jestem do Twojej dyspozycji od 8:00 do 23:00, 7 dni w tygodniu. Zapraszam do kontaktu. ☎Karol Gaj ☎Tel: Skontaktuj się ☎Akro House Nieruchomości. Zapewnię Ci profesjonalne wsparcie i bezpieczeństwo w całym procesie zakupu. Zadbam o wszystko co niezbędne, abyś stał się właścicielem wymarzonej nieruchomości. Zapewniam obsługę notarialną, a także pomogę w uzyskaniu kredytu na najlepszych warunkach.

Widokowe 43,7m2 2 pok. Po Remoncie, Bez Gazu!
Widokowe 43,7m2 2 pok. Po Remoncie, Bez Gazu! ul. Sternicza, Osiedle Beskidzkie, Bielsko-Biała, śląskie
435 000 zł
10 116 zł za m²
2-pok 43 m² 9/10 p

Funkcjonalne, dwupokojowe mieszkanie 43,7 m² na Osiedlu Beskidzkim Lokalizacja: Bielsko-Biała, ul. Sternicza Cena: 435 000 zł Powierzchnia: 43,7 m² (9 954 zł/m²) Parking: miejsce postojowe ogólnodostępne Stan prawny: spółdzielcze własnościowe prawo do lokalu : ok. 850 zł (w tym m.in woda, ogrzewanie, opłaty administracyjne) przystanek autobusowy - 200 m, sklep - 600 m, przedszkole - 500 m, szkoła podstawowa - 850 m. szkoła średnia -

Świetnie skomunikowane mieszkanie, okazja inwest!
Świetnie skomunikowane mieszkanie, okazja inwest! Biała Śródmieście, Bielsko-Biała, śląskie
371 790 zł
8 262 zł za m²
2-pok 45 m² 3/3 p

Świetnie skomunikowane mieszkanie, także okazja inwestycyjnaPrezentowane mieszkanie o powierzchni 45,90 m2 jest doskonale skomunikowane. Mieści się 300 m od dworca PKP Bielsko-Biała Głowna, jednak w miejscu osłoniętym od zgiełku ulicy, na ul. Traugutta zaraz przy ul. Piastowskiej.przystanek autobusowy 90 m, dworzec autobusowy 150 m, sklep Społem stoiska warzywne i 90 m, kościół 140 m, galeria SFERA 1 kPrzedszkole nr 7 - 700 m Bielska Szkoła Przemysłowa 400 m Liceum im. Kopernika 800 m, Artystyczna Szkoła Podstawowa i Liceum Ogólnokształcące 950 m Zespół Szkół Juliana Tuwima 1,3 kmPark Słowackiego 500 m Teatr Lalek Banialuka 600 m Dom Kultury 600 m Liczne restauracje i sklepy w odległości pieszej. Lokalizacja sprawia, że jest to Jednocześnie jest to miejsce cieszące się dużym zainteresowaniem jako Mieszkanie o powierzchni 45,90 m2 mieści się na kameralnym osiedlu wzniesionym z cegły w latach 60-tych. Jest usytuowane na trzecim piętrze i składa się z salonu połączonego z otwartą kuchnią, dużej sypialni, łazienki oraz przedpokoju. Okna salonu wraz z otwartą kuchnią wychodząc na zielony skwer i są skierowane na południowy-zachód. Duża sypialnia z możliwością pomieszczenia garderoby z ekspozycją północno-wschodnią.Do mieszkania przynależy piwnica o powierzchni 6,40 m2.Lokal posiada wymienione okna PCV, nowe instalacje elektryczne, wodno-kanalizacyjne i gazowe. Ogrzewanie jest miejskie, a ciepła woda z pieca gazowego. Na ścianach gładzie gipsowe.Wokół budynku dużo ogólnodostępnych miejsc parkingowych.Koszty stałe na rzecz Wspólnoty: 125 zł + 137 zł Fundusz Remontowy. Dodatkowo opłata za śmieci 39 zł / os i woda oraz ogrzewanie wg zużycia. Dotychczasowe zaliczki na ogrzewanie wynosiły ok. 400 zł miesięcznie.Powyższy opis nie stanowi oferty handlowej w rozumieniu art. 66 Kodeksu Cywilnego, a dane w nim zawarte mają charakter informacyjny.Pośrednik odpowiedzialny zawodowo za wykonanie umowy pośrednictwa: Izabela Wysocka (licencja nr: 22677)

Mieszkanie z widokiem, do wprowadzenia!
Mieszkanie z widokiem, do wprowadzenia! Osiedle Kopernika, Bielsko-Biała, śląskie
329 000 zł
9 139 zł za m²
2-pok 36 m² 3/10 p

Mieszkanie idealne do wprowadzenia lub na inwestycję. Mieszkanie składa się z dużego pokoju dziennego z wyjściem na balkon, sypialni, oddzielnej, widnej kuchni, dużej łazienki z wanną i wc oraz małego przedpokoju z szafą wnękową. Z balkonu od strony Pd-Wsch, rozpościera się przepiękny widok na góry i zieleń! Mieszkanie po remoncie. W całym mieszkaniu były wymienione instalacje wod-kan, częściowo elektryczna, podwieszane sufity, kilka lat temu panele. W sypialni dodatkowo balkon francuski. Lokal mieszkalny do wprowadzenia bez dużych nakładów finansowych. Czynsz na 1 osobę ok.670 zł. W budynku jest winda. POLECAMY-Zapewniamy kompleksową obsługę transakcji, pomagamy w uzyskaniu kredytu hipotecznego. Zapraszamy na prezentację!Opis oferty sporządzany jest na podstawie weryfikacji nieruchomości oraz informacji uzyskanych od właściciela, ma charakter wyłacznie informacyjny i może podlegać aktualizacji.Niniejsze ogłoszenie stanowi zaproszenie do zawarcia umowy zgodnie z art. 71 Kodeksu Cywilnego i nie stanowi oferty określonej w art. 66 i następnych Kodeksu Cywilnego.

Otwórz mapę Mapa