20 razy więcej ogłoszeń od właścicieli

Zbieramy ogłoszenia z największych portali

Pośrednika odróżniamy od właściciela po numerze telefonu

Pokazujemy jak zmieniła się cena

Usuwamy zduplikowane ogłoszenia

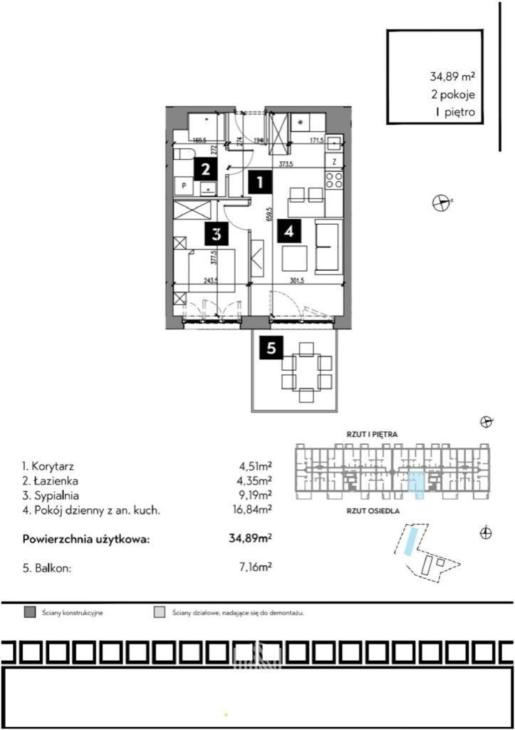
2-pokojowe mieszkanie 34,89 m²

Muchobór Mały, Fabryczna, Wrocław, dolnośląskie
  • Obiekt PL-1356160275
  • dodany:
zdjęcie - 2-pokojowe mieszkanie 34,89 m² zdjęcie - 2-pokojowe mieszkanie 34,89 m² zdjęcie - 2-pokojowe mieszkanie 34,89 m²
  • W pełny rozmiar
  • Wyszukać podobne
zdjęcie - 2-pokojowe mieszkanie 34,89 m² zdjęcie - 2-pokojowe mieszkanie 34,89 m² zdjęcie - 2-pokojowe mieszkanie 34,89 m²

Nowe, przytulne 2-pokojowe mieszkanie 34,89 m² - idealne na start lub inwestycję! Szukasz przestrzeni, która już od progu daje poczucie komfortu i nowoczesnego stylu? To 2-pokojowe mieszkanie o powierzchni 34,89 m² to świetny wybór dla osób, które cenią funkcjonalny układ, wysoki standard i doskonałą lokalizację we Wrocławiu.Przemyślany projekt wnętrza sprawia, że mieszkanie jest jasne, ustawne i bardzo praktyczne. W środku czekają na Ciebie: To miejsce daje pełną swobodę aranżacji i możliwość stworzenia wnętrza dokładnie takiego, jakiego potrzebujesz.To mieszkanie daje Ci pełną swobodę stworzenia własnej, wyjątkowej przestrzeni - dokładnie takiej, jakiej potrzebujesz.Osiedle łączy spokojny charakter nowej zabudowy z szybkim dostępem do najważniejszych punktów miasta. W kilka minut pieszo dotrzesz do: Dojazd do centrum jest wygodny i szybki - to świetna propozycja zarówno do zamieszkania, jak i pod wynajem.Mieszkanie znajduje się w nowym, eleganckim budynku wyposażonym w windę oraz halę garażową. Do dyspozycji mieszkańców są m.in.: Dodatkowo możesz wybrać opcje takie jak czy, aby dopasować mieszkanie do swojego stylu życia.

Lokalizacja na mapie, ciekawe miejsca i trasy

Obiekty w pobliżu

Muchobór Mały, Fabryczna, Wrocław, dolnośląskie
dodać do ulubionych Przytulne 3 pokoje | W cenie - ogródek działkowy
  • 560 000 zł
  • 47 m²
Muchobór Mały, Fabryczna, Wrocław, dolnośląskie
ul. Opolska, Księże, Krzyki, Wrocław, dolnośląskie
dodać do ulubionych Nowoczesne 2-pokojowe mieszkanie z balkonem
  • 565 000 zł
  • 38 m²
ul. Opolska, Księże, Krzyki, Wrocław, dolnośląskie
Muchobór Mały, Fabryczna, Wrocław, dolnośląskie
dodać do ulubionych 2 pokoje/Balkon/Wykończone pod klucz/23% VAT
  • 483 000 zł
  • 37 m²
Muchobór Mały, Fabryczna, Wrocław, dolnośląskie
ul. Strzegomska, Muchobór Mały, Fabryczna, Wrocław, dolnośląskie
dodać do ulubionych Strzegomska| 2 Pokoje + Gabinet | Balkon | Garaż
  • 595 000 zł
  • 50 m²
ul. Strzegomska, Muchobór Mały, Fabryczna, Wrocław, dolnośląskie